第一部分 全装修工程管理流程简介
1、目的

明确项目全装修工程管理的标准化工作流程;
控制项目全装修工程管理各阶段的工作内容要点、细节;
保证工程质量的全过程监督、检查和检验
2、流程内容
2.1、流程关键路径


2.2、流程框架内容介绍
全装修管理流程图

2.3、流程执行重点

流程执行重点——前期

流程执行重点——样板
样板先行:

土建与精装修移交样板
明确施工范围及移交标准,移交界面划分明确;

工序样板——石膏板吊顶工序样板

工序样板——PVC吊顶工序样板

工序样板——墙面批灰乳胶漆工序样板

工序样板——顶面批灰乳胶漆工序样板

工序样板——卫生间防水工序样板

工序样板——厨卫间墙地砖工序样板

工序样板——阳台防水工序样板

工序样板——卫生间门槛石工序样板

工序样板——木地板工序样板

工序样板——木地板成品保护样板

工序样板——户内门基层工序样板

工序样板——安全文明规范样板

工序样板——集中加工和分类堆放样板

工序样板——工程管理动作样板

工序样板——可视化管理样板

交付样板——天棚、墙面涂料

交付样板——客厅、卧室地面强化地板

交付样板——阳台地砖

交付样板——卫生间、厨房墙砖铺贴

交付样板——厨房、卫生间吊顶安装

交付样板——橱柜、台盆、吊柜

交付样板——部品部件安装

流程执行重点——施工管理重点

第二部分 全装修阶段性管控要点
1、精装设计阶段

2、施工准备阶段

3、施工阶段

施工阶段——控制要点流程



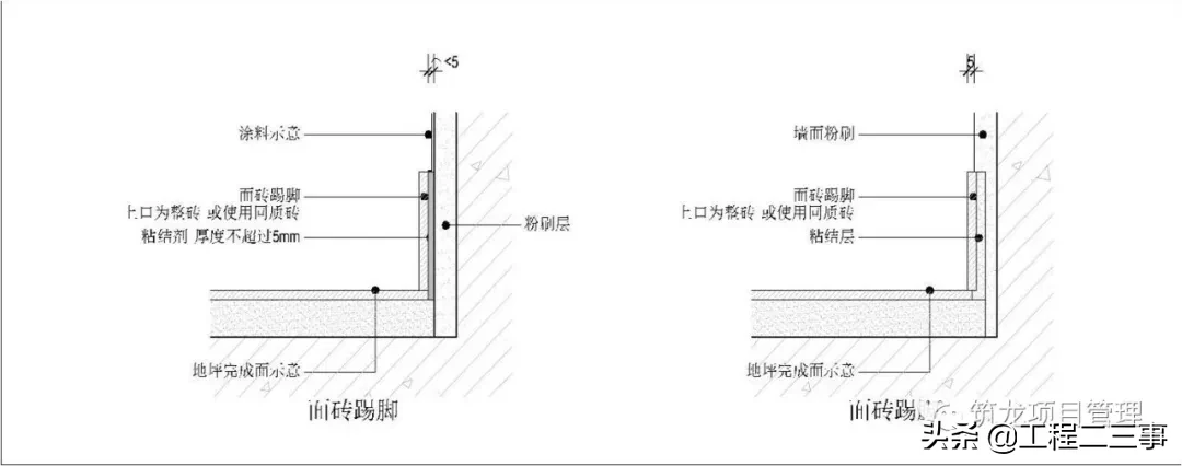
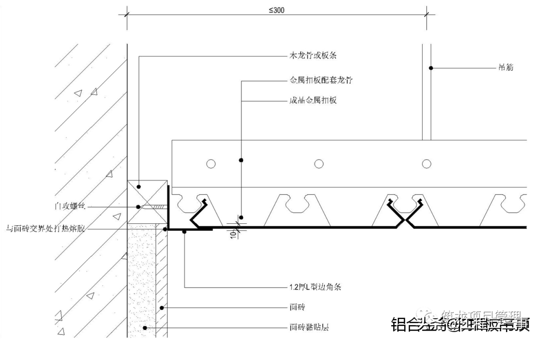
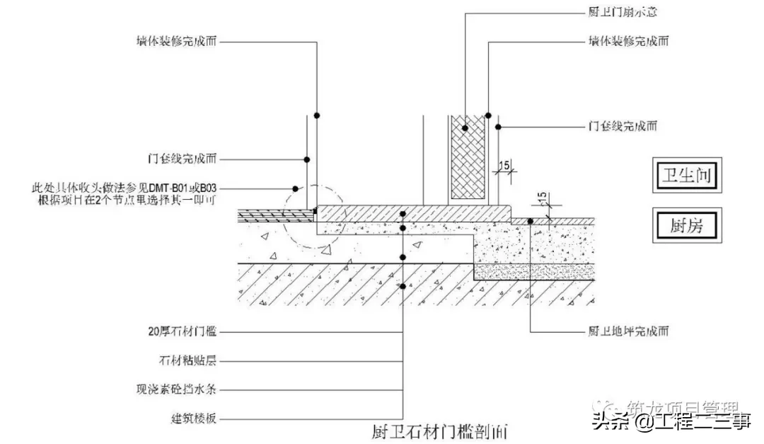
施工阶段——部分节点构造





4、交付验收阶段

第三部分 常见缺陷的规避
3.1、土建与精装修交接阶段





3.2、安全文明、土建成品保护阶段





3.3、施工阶段
施工阶段——放线


施工阶段——厨房

施工阶段——卫生间


施工阶段——客厅


施工阶段——吊顶、木基层


施工阶段——墙、天面涂料、墙纸



施工阶段——门、地板、收纳柜




3.4、成品保护阶段





原创文章,作者:LCYEGL,如若转载,请注明出处:https://www.beidanyezhu.com/a/2068.html
微信扫一扫