

源于创意·专于设计
项目名称 | 私人办公会所
项目面积 | 220平方米
项目类型 | 办公室设计
项目位置 | 广西 · 南宁
设计风格 | 现代轻奢
———————
本次的案例主要打造一个高端的私人办公空间,主要用于接待洽谈、生活娱乐以及个人办公,整体风格围绕现代轻奢风格设计,旨意通过高端的办公空间展现个人不凡的成就和品味。
BACKGROUND
项目背景

项目现场△
办公会所的委托方是来自广西南宁的某房产企业的老板,打从公司创立初期到至今为止,业主本人一直与员工在300多平的办公室中奋斗,但是因为公司的生意越来越好,越来越壮大,每天需要接待的客户和朋友也越来越多,有时候到访人数太多,安排不过来,只能安排在员工办公区等待,而谈论的声音也极大地影响到了员工的办公效率。
为了不影响员工的办公效率,业主本人打算重新打造一个专属的私人办公空间,融合生活、娱乐、接待和办公等四个使用功能,一方面不影响自己家员工,一方面是尊重每一位前来拜访的客户与朋友。

项目现场△
办公室刚确定下来,业主第一时间联系了我们,前往项目现场后,我们为业主提供了多种风格 的办公室设计案例,有极简、有现代、有工业、有中式等等风格,每一个风格都不同的特点,也诠释着不同的情感。业主最先对我们的设计作品表示认可,随后明确了办公室以现代风格为主的设计需求。
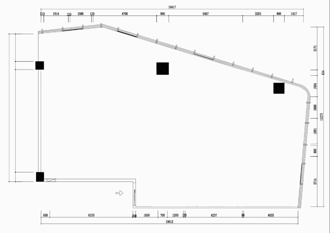
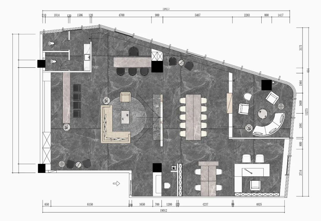
PLAN DESIGN
平面布置图

空间主要包括前台、秘书办公区、董事长办公区、接待区会议区、休闲区、品茶区、水吧以及洗手间等八个功能区域。
经过测量,办公室套内设计面积大约220个平方,户型结构可以说用不规则来形容,功能布局存在着一定的布局难度,但好在户型够大,功能区域较少,极大程度上降低了布局的难度。

空间主要是娱乐和办公两个使用功能,因此我们采用分割的手法,把平面分成左右两个部分,办公整体在右边,娱乐整体在左边,两个使用功能分开使用,互不影响。
DECORATION MATERIAL
装修材质

材质是风格体现的关键所在,我通过阿玛尼米黄和爱马仕灰两种大理石的配合来塑造空间的成熟稳重的形象,再运用微水泥和白色的洞洞板来的组合来点缀空间,让空间更具现代高端的风味。
▽
DESIGN EFFECT
最终效果









设计总结 summary
多种使用属性的空间,可以根据不同使用的属性来划分空间的结构,但是要考虑功能之间存在的意义,即使是不同的属性的功能区域,只要是组合在一起就能发挥某些价值,那就根据价值体现来划分布局结构。
V A N Z S P A C E D E S I G N
/
主编 |Huang & Liu 设计 | Vanz
万致空间设计(简称:VANZ),源于2008年,于2010年在深圳成立,公司注册资金1000万元。在蓬勃发展的11年时间中,万致积累了丰富的室内设计经验,擅长于去尊重使用者本身的功能、情感需求,运用室内空间与情感的融合,实现空间价值最大化。服务范围:商业空间设计、住宅空间设计,软装设计、室内装修。
声明:本文内容属万致设计所有,禁止盗用!
原创文章,作者:OTQPAD,如若转载,请注明出处:https://www.beidanyezhu.com/a/92777.html
微信扫一扫