小区名称:庙李家园
建筑面积:135平
项目性质:三室两厅
装修风格:现代简约
套餐造价:14.00万
工程造价:14.00万
联系咨询:点击文章底部☟“了解更多”☟
庙李家园135平三室装修设计,现代风格,没有那些纷繁冗杂的设计,在低调的外表下也体现出了高级的感觉,同时注重生活的质量,内在也是相当重要的。赏析不一样的婚房布局

郑州安置房135平改造出的品位与浪漫,沉浸不一样的领域——入户门走道

郑州安置房135平改造出的品位与浪漫,沉浸不一样的领域————客厅沙发背景墙

郑州安置房135平改造出的品位与浪漫,沉浸不一样的领域————客厅多功能桌与阳台设计

郑州安置房135平改造出的品位与浪漫,沉浸不一样的领域———休闲区改造全景

郑州安置房135平改造出的品位与浪漫,沉浸不一样的领域———休闲区与西厨设计

郑州安置房135平改造出的品位与浪漫,沉浸不一样的领域———客卧衣柜设计

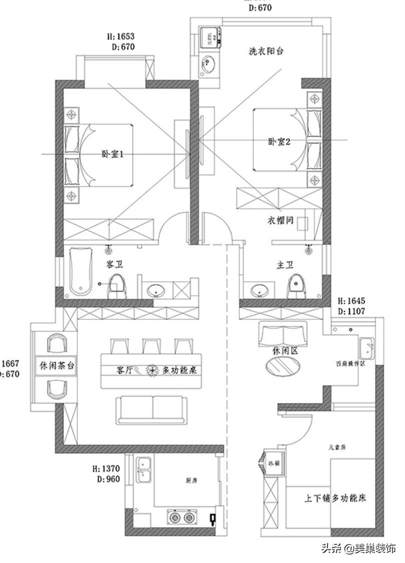
郑州安置房135平改造出的品位与浪漫,沉浸不一样的领域———平面布局方案设计

郑州安置房135平改造出的品位与浪漫,沉浸不一样的领域———主卧效果图
点击☟☟“了解更多”,30秒极速报价,也可以点击小编头像
☟☟☟看看您家毛坯房装修需要多少钱☟☟☟
原创文章,作者:BHJYJN,如若转载,请注明出处:https://www.beidanyezhu.com/a/93138.html
微信扫一扫