你正打算农地自建别墅吗?
或是与身为普通上班族的我一样,只是想满足一窥高端住宅的好奇心?
先不管是哪一种想法,今天分享的案例都值得好好欣赏!

▲ 图片来源/ pinterest / Design Milk
因为这次除了将分享2个别墅案例的装修特点,还搜罗了深受欧美屋主青睐的”现代风格”别墅的外观图,让我们从建筑的外形,好好感受这些建物的设计之美;因为或许当中的某一款,就是你未来装修别墅的范本。现在,一起来瞧瞧吧!
西欧 / 极简积木别墅
Western Europe / villa
坐标 :比利时 / 邦海登面积 :378㎡格局 : 2层/ 3室3厅1厨2卫

图片来源/ ArchDaily/ © Tim Van de Velde
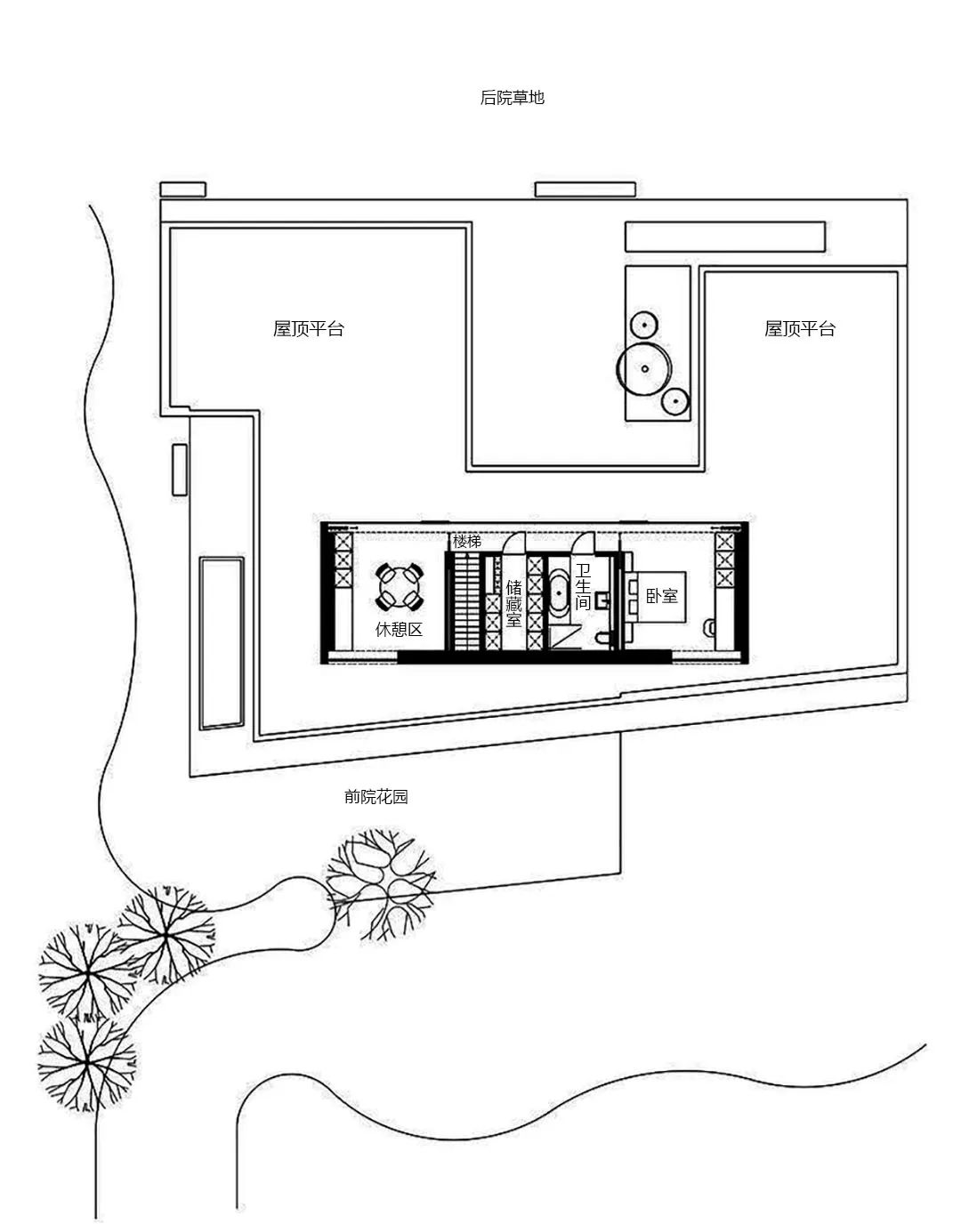
▲ 一层

图片来源/ ArchDaily/ © Tim Van de Velde
▲ 二层
设计亮点
别墅前方紧邻着一条大马路,后面则有一片宽广的草地;因此设计上,便将主要的视觉景观设定在后方,并特别采用”U形”布局,以及搭配使用玻璃隔断,让屋主一家人能以最大的程度体验被绿意围绕的感受。
积木堆叠,塑造简约外观
现代简约风格的前提下,设计师采用类似积木堆叠的设计,营造出极简的外观。其中,一层空间以混凝土打造,赋予支撑底座的功能;二层则以木工框架为主,为整栋建筑注入轻盈的效果。

▲ 图片来源/ ArchDaily/ © Tim Van de Velde

▲ 图片来源/ ArchDaily/ © Tim Van de Velde
开放与封闭的交错设计
针对紧邻大马路的缺点,设计师在门面这一边采用封闭式规划,大幅度降低车辆可能带来的噪音及视线干扰。其次,为了避免全封闭导致室内过于阴暗及压迫,局部改装玻璃隔断,也让厨房这处空间变得明亮,并得以欣赏街道景观。

▲ 图片来源/ ArchDaily/ © Tim Van de Velde

图片来源/ ArchDaily/ © Tim Van de Velde
▲ 从厨房眺望街道景致
运用落地玻璃,引景入室
后花园是一大片广阔的草地及林木,为了让这份宁静、舒适的自然景致充分被利用,布局规划采用”U形”,以争取更多的观景空间,另再搭配落地玻璃,达到引景入室的效果。
另外贴心的是,为了维护主卧室的隐私,部分墙面采取不透明设计,能有效阻隔来自起居区的目光。

▲ 图片来源/ ArchDaily/ © Tim Van de Velde

图片来源/ ArchDaily/ © Tim Van de Velde
▲ 起居区与睡眠区的部分墙面采取封闭装修
收整空间线条,勾勒干净氛围
呼应整体风格,室内装修也以收整空间线条为主,搭配白色为基调的色彩,营造出干净氛围;而且这么做的另一个优点就是利于自然光影投射在白墙上,并随着时间变化为空间增添层次感。

▲ 图片来源/ ArchDaily/ © Tim Van de Velde

▲ 图片来源/ ArchDaily/ © Tim Van de Velde

▲ 图片来源/ ArchDaily/ © Tim Van de Velde
暖色灯光,平添温润气息
为了营造简约高端的氛围,采取无主灯设计,而照明需求则改用嵌入式的筒灯、射灯及氛围灯为主,并选择暖色灯光,赋予空间温润氛围,进而成为夜里的一幅美丽风景。

▲ 图片来源/ ArchDaily/ © Tim Van de Velde

▲ 图片来源/ ArchDaily/ © Tim Van de Velde
南美 / 热带景观别墅
South America / villa
座标 :巴西 / 新汉堡面积 :512㎡格局 :3层/ 5室2厅1厨5卫1泳池

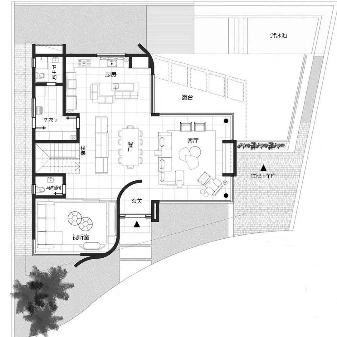
图片来源/ ArchDaily/ © Marcelo Donadussi
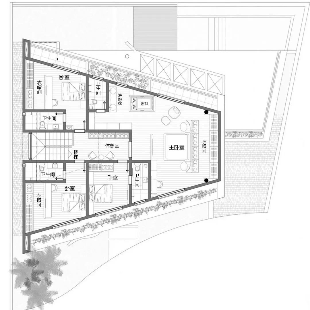
▲ 一层

图片来源/ ArchDaily/ © Marcelo Donadussi
▲ 二层
设计亮点
位于坡地上的这栋三层建筑(地上二层、地下一层),在现代风格的基调下,结合当地的热带风情,勾勒出舒适的自然氛围;另搭配大片玻璃门窗,让位于高处的住宅,能够尽览户外风光。
混搭绿植的设计
混凝土为基础的建筑,搭配运用木材、涂料及产自当地的片麻岩石材,塑造出简约又不失温度的造型,再辅以混搭大量的绿植,让整体环境充满热带的度假风情。

▲ 图片来源/ ArchDaily/ © Marcelo Donadussi

▲ 图片来源/ ArchDaily/ © Marcelo Donadussi
具备引导及遮挡功能的玄关隔断
一进门,视线就被一堵混凝土的”弧形隔断”给吸引;弯曲的墙面不仅引导进入起居区,而且也为餐厨区带来隐蔽性,避免”开门见光”的状况。

▲ 图片来源/ ArchDaily/ © Marcelo Donadussi

▲ 图片来源/ ArchDaily/ © Marcelo Donadussi
运用石材及铁件,增添低奢氛围
延续简约的设计手法,室内空间也避免繁复的线条,并通过开放式布局,让环境显得宽敞;其次在装饰上,包括电视柜、厨台、家具等局部使用石材、铁件装修,增添低奢气息。

▲ 图片来源/ ArchDaily/ © Marcelo Donadussi

▲ 图片来源/ ArchDaily/ © Marcelo Donadussi

▲ 图片来源/ ArchDaily/ © Marcelo Donadussi
落地玻璃门窗,尽览城市风光
为了充分发挥居高临下优势,后方墙面大量使用落地门窗装修,借此取得最大的视觉景观,呈现被美景环绕的效果。除此之外,室外泳池也采取”无边际”设计,戏水时也能享有漂亮的景色。

▲ 图片来源/ ArchDaily/ © Marcelo Donadussi

▲ 图片来源/ ArchDaily/ © Marcelo Donadussi
图赏 / 现代风格别墅
以上2套装修案例解析,是否让你对高端时尚的别墅更有好奇心呢?不啰唆,紧接着分享20款”现代风格”别墅的外观图,提供大家在装修时参考!
美国 / 迈阿密

▲ 图片来源/ HOOG.design / © Kris Tamburello
美国 / 休斯敦

▲ 图片来源/ Houzz / © 2Scale Architects
美国 / 洛杉矶

▲ 图片来源/ Houzz / © Abramson Architects
美国 / 西雅图

▲ 图片来源/ ONE KINDESIGN/ © Benjamin Benschneider
美国 / 丹佛

▲ 图片来源/ Houzz / © Daniel O’Connor
美国 / 奥斯汀

▲ 图片来源/ Houzz / © Dick Clark + Associates
新加坡 / 新加坡

▲ 图片来源/ Houzz
美国 / 奥兰多

▲ 图片来源/ Houzz
加拿大 / 魁北克

▲ 图片来源/ paulbernier.com / © James Brittain
西班牙 / 马尼尔瓦

▲ 图片来源/ © JamesEdition
法国 / 马赛

▲ 图片来源/ Casalibrary / © Jean-Michel Sordello
美国 / 达拉斯

▲ 图片来源/ Houzz / © John Lively & Associates
希腊 / 科斯塔‧纳瓦里诺

▲ 图片来源/ © K-STUDIO
德国 / 多尔马根

▲ 图片来源/ HomeAdore.com/ © Lioba Schneider
美国 / 迈阿密

▲ 图片来源/ Houzz / © Lori Hamilton
加拿大 / 埃德蒙顿

▲ 图片来源/ Houzz / © Merle Prosofsky
墨西哥 / 哈拉帕

▲ 图片来源/ Amazing Architecture/ © Naser Nader Ibrahim
科威特 / AL-ARDIYA

▲ 图片来源/ ArchDaily / © Nelson Garrido
美国 / 丹佛

▲ 图片来源/ Houzz / © Progetti Design Studio
加拿大 / 温哥华

▲ 图片来源/ Houzz / © splyce design
别墅的装修风格不止一种,但呈现简约、干净又摩登气息的现代风格,的确深受全球屋主的青睐,而上述这几个案例,都是很受欢迎的设计,提供大家参考。
解析100+台式风设计要点
22年以短视频说给你听,预计更新至15辑!
同场加映
太美!杭州 250㎡空中花园别墅,简洁高级,美出新高度
晾衣不用阳台!日本主妇11招室内晾衣诀窍,雨天也快干又方便
原创文章,作者:BGRHPG,如若转载,请注明出处:https://www.beidanyezhu.com/a/94091.html
微信扫一扫