今日分享装修主题:一家三口新房,花35W装修现代简约风格,坚持电视墙不做造型
大家可以看看属于他们一家三口的新房,前后花了35W装修现代简约风格。虽然定位简单,考虑到家里小孩,更考虑到自己家的需求,所以全屋装修所使用的材料都比较环保。很多人都不做了电视墙,但是屋主在装修的时候坚持客厅电视 背景墙不做造型,直接刷了乳胶漆而已,也很好看。可能很多人都很喜欢这样家里不做电视墙的效果,带大家一起来看看。
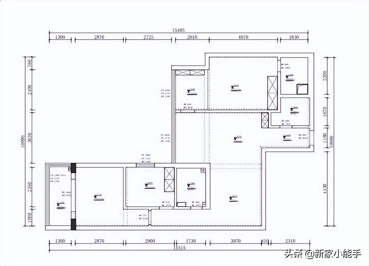
户型图

这是原始户型图,属于“手枪”型户型了,户型主要缺点如下:
第一,采光不充足,尤其是厕所没有窗户。
第二、不能做开放式厨房。
第三、整个空间储物空间不足。

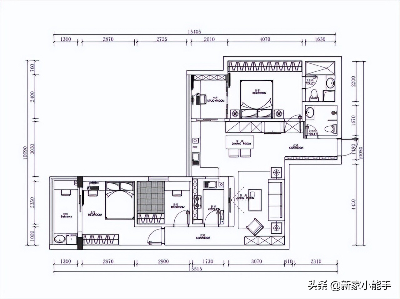
这是根据需求,考虑到全屋规划出来的家具平面布置图,主要变动亮点如下:
第一,利用入户玄关设计了储物柜,可以增加收纳。
第二、餐厅设计卡座,并且预留位置可以放冰箱。
第三、把其中一个阳台作为书房,另外一个作为生活阳台。
第四、厨房设计了中西厨,更合理把空间利用起来,满足烹饪区域。
第五、保留家里三个房间,并且做了收纳。
玄关

从入户门进来拥有独立的入户玄关,根据玄关空间设计了一个上下两层带换鞋凳,可以非常方便坐着换穿鞋子。鞋柜安装了长条的拉手,视觉上显得比较好看,打开柜门的时候会方便很多。最低下留空位置,可以放一些常穿的鞋子,很实用。

鞋柜都中下都安装了灯带,可以起到增加照明的作用,很实用。家里如果也喜欢这样的鞋柜,可以参考!

入户玄关还有一个小细节,设计了灯带,特别有设计感。说实在话的,第一次见这样的设计,还是比较喜欢的。
客厅

客厅顶面设计了无主灯,不过安装了吊顶,很有空间感。站在这个角度,左侧是沙发茶几,右边是电视墙,可以看到,电视墙没有做一点造型,非常极简,看着很舒服!


客厅电视背景墙坚持不做一点造型,直接刷了灰色的乳胶漆。电视柜是悬挂起来的,到时候地面做保洁的时候方便很多。而且尺寸足够大的电视机,直接悬挂起来,更安全,也更节省一些空间。坐在沙发与家人一起看看电视或者聊聊天,都很舒服。

客厅布置了灰色沙发,包括茶几都是偏灰色,搭配起来很协调。这种颜色的话,非常耐脏。到时候,墙上可以悬挂一些装饰画,效果会更完美。最起码看着,不会让人觉得单调呀。

沙发旁边的位置刚好可以布置了扫地机器人,家里有了扫地机器人,做保洁的时候会方便很多,可以适当解放自己的双手,还是蛮不错的呢。而且这种扫地机器人,可以自动充电,自动洗抹布,特别智能。对于我们年轻人来说,扫地机器人是不可缺少的一部分。

分析户型的时候也跟大家说了,需要更多的储物空间,刚好客厅这边区域为了不浪费,设计了一个非常实用的储物柜。以后搬进来入住了,很多东西都可以方便收纳起来,觉得还是蛮不错的呢。
餐厅


餐厅设计了非常实用的卡座,既可以方便坐着用餐,而且还可以提供大量的储物空间,显得很大气。对于家里需求这样的储物空间,设计卡座,真的太实用了。而且卡座搭配方形餐桌,特别合适呢。灰色的岩板材质,其实给人一种大理石的感觉,非常耐脏。

餐厅设计卡座的时候,还预留了刚好的位置可以放冰箱,嵌入式的冰箱,显得很有设计感。一般这样的设计,要准备知道家里冰箱的具体尺寸哈。
厨房

这边是西厨,定制了一排的橱柜,可以增加大量的储物空间,还可以当吧台使用,没有任何影响。靠窗位置,把窗帘收起来的话,采光会非常充足,光线很好。

安装了360°可伸缩的黑色水龙头,一般来说,更多人喜欢这种黑色的款式,给人一种比较稳重,大气感。同时,颜值很高。可伸缩出来,洗东西的时候会方便很多,特别棒。


这边是东厨了,布局合理,形成了“洗、切、炒”的顺序,大小位置合适,操作起来很顺手。定制了原木色的橱柜,做工与质量都还不错,安装了石英石的台面,比较耐脏呢。厨房空间不大,但是在这样的厨房做饭菜,都很有心情呀。
主卧


主卧空间其实也合适了,布置了一张双人大床,搭配了蓝色的床上用品,给人的感觉很舒适,也很漂亮。顶面也是无主灯的设计,让人一看到这样的卧室,就很喜欢,睡在床上,太幸福啦!

定制了一排的衣柜,可以增加大量的储物空间,这样布局,对于主卧来说,刚合适。安装了轨道灯,晚上照明亮度足够,非常柔和,不刺眼哈。地面选择铺木地板,没有瓷砖那种冷冰冰的感觉!
主卫


主卧拥有独立的卫生间,使用会方便很多。其实做了干湿分离,但是并没有把全部的角度看出来。墙上空间安装了置物架,很实用!
次卧


次卧其实与主卧差不多一样的效果,不过空间很小,布置了一张单人床,旁边的位置还可以布置书桌柜,到时候可以非常方便家里小孩写作业或者看书呢。床头背景墙刷了蓝色的乳胶漆,很漂亮!


次卧没有与阳台打通,但是显得空间也很宽敞,采光与通风都没有任何影响。衣柜直接到顶,储物空间其实也足够了哈,没有任何影响!
生活阳台


阳台作为生活区,一边定制了储物柜的同时,旁边的位置可以放洗衣机和烘干机,大小位置合适。并且还有洗衣柜,在这里不管是手洗还是机洗,都方便很多,没有任何影响。
书房


书房空间特别小,其实是规划了主卧的一些空间,可以有一个独立书房,在这里可以方便办公或者看书,不会受到家人影响,很实用。对于家里有需要这样的办公空间,很有必要这样设计呀!
公卫


公卫其实没有做干湿分离,但是不影响使用,显得空间宽敞一些。安装了马桶,一家人都满意哈!

利用墙上的位置安装了免打孔的置物架,可以非常方便把一些洗浴用品收纳起来。也是选择安装了黑色的花洒,很喜欢这种款式。
前后花了35W装修的现代简约风格,坚持不做电视墙,真的太喜欢啦,真心希望以后我家也能装出这样的效果呢。
原创文章,作者:CELOFY,如若转载,请注明出处:https://www.beidanyezhu.com/a/94340.html
微信扫一扫