空间扩容,一向是装修的重点,至于做法,各有巧妙不同;
其中,采用”复式”设计的巧思,近年来越来越受到小户型屋主青睐!

▲ 图片来源/ Pinterest @ HONOLULU Magazine
但,为什么复式楼设计会被吹捧呢?
因为,它将过往难以运用的层高,透过打造复层,把内部楼面一分为二,
凭空增加了一块楼板面积,为小家实实在在挣到了空间,
达成了”五脏俱全”的生活功能。

▲ 图片来源/ Pinterest
究竟,小户型复式公寓该如何规划才能漂亮又实用?还有哪些创意值得借鉴?透过下列五个案例,一窥当中的奥妙!
01 ) 18㎡ 单身公寓 / 五脏俱全的小宅
坐标:鹿特丹
层高:4.2m
风格:现代风
亮点:复合式设计,创造完整功能

▲ 图片来源/ Wouter van der Sar
设计亮点
虽然是单人居住,但屋主仍希望拥有完善的生活机能,意思是除了卧室,包括客厅、厨房、餐厅、书房、卫生间及收纳空间缺一不可。

▲ 图片来源/ Wouter van der Sar
由于面积不足,许多功能都必须采用”复合式”设计来达成;比如一进门的水槽区,就巧妙利用一块吊挂的板子,界定厨房及卫生间的场域,同时满足清洁的需求。其中,带镜子的那一侧属于卫浴空间,而带有黑板的这一侧,则属于厨房水槽。

▲ 图片来源/ Wouter van der Sar
除此之外,以飘窗设计取代客厅沙发及书桌,而前往二层的楼梯,同时也是收纳量充足的衣柜、储物柜。另外,橱柜结合电器柜功能,并贴心在搁板下方嵌入灯条,保持厨房区的明亮度。

▲ 图片来源/ Wouter van der Sar

▲ 图片来源/ Wouter van der Sar
复式层规划在离地三米处,让下方空间不至于显得压迫,同时二层楼板不做满,维持部分场域原有的层高,让光线、空气得以自由流通,舒适感不减。

▲ 图片来源/ Wouter van der Sar

▲ 图片来源/ Wouter van der Sar
02 ) 46㎡ 美式家居 / 混搭东方气息
坐标:纽约
层高:4m
风格:混搭风
亮点:复式楼刻意不做满,空间通透

▲ 图片来源/ Curbed NY
设计亮点
本案因为受限于狭长的空间布局,因此采用开放式设计,去除空间里不必要的隔断墙,让来自前方窗户的自然光线得此深入室内。

▲ 图片来源/ Curbed NY
而且特别的是,为了保持空间的通透感,复层只规划在起居室上方,而且也只取用局部的层高空间,刻意不将第二层地板做满,让仅4米高的环境不会因为打造了复式楼,导致第一层空间变得压迫。

▲ 图片来源/ Curbed NY
所以有趣的是,当屋主通过楼梯走上位于二层的卧室时,一侧能俯瞰起居区(客厅),另一侧则能观看厨房、办公区。

▲ 图片来源/ Curbed NY
起居区与厨房通过不同的地板材质界定场域,同时因应狭长布局,厨房采靠墙一字型设计,至于另一侧则巧妙规划了小型办公区。另外,空间里点缀中式柜体、画作,让美式家居里带点神秘的东方风情,别有一番韵味!

▲ 图片来源/ Curbed NY
03 ) 46㎡ 六口之家 / 榨出四室二厅
坐标:台北
层高:4m
风格:北欧风
亮点:运用复式层额外增加33㎡空间

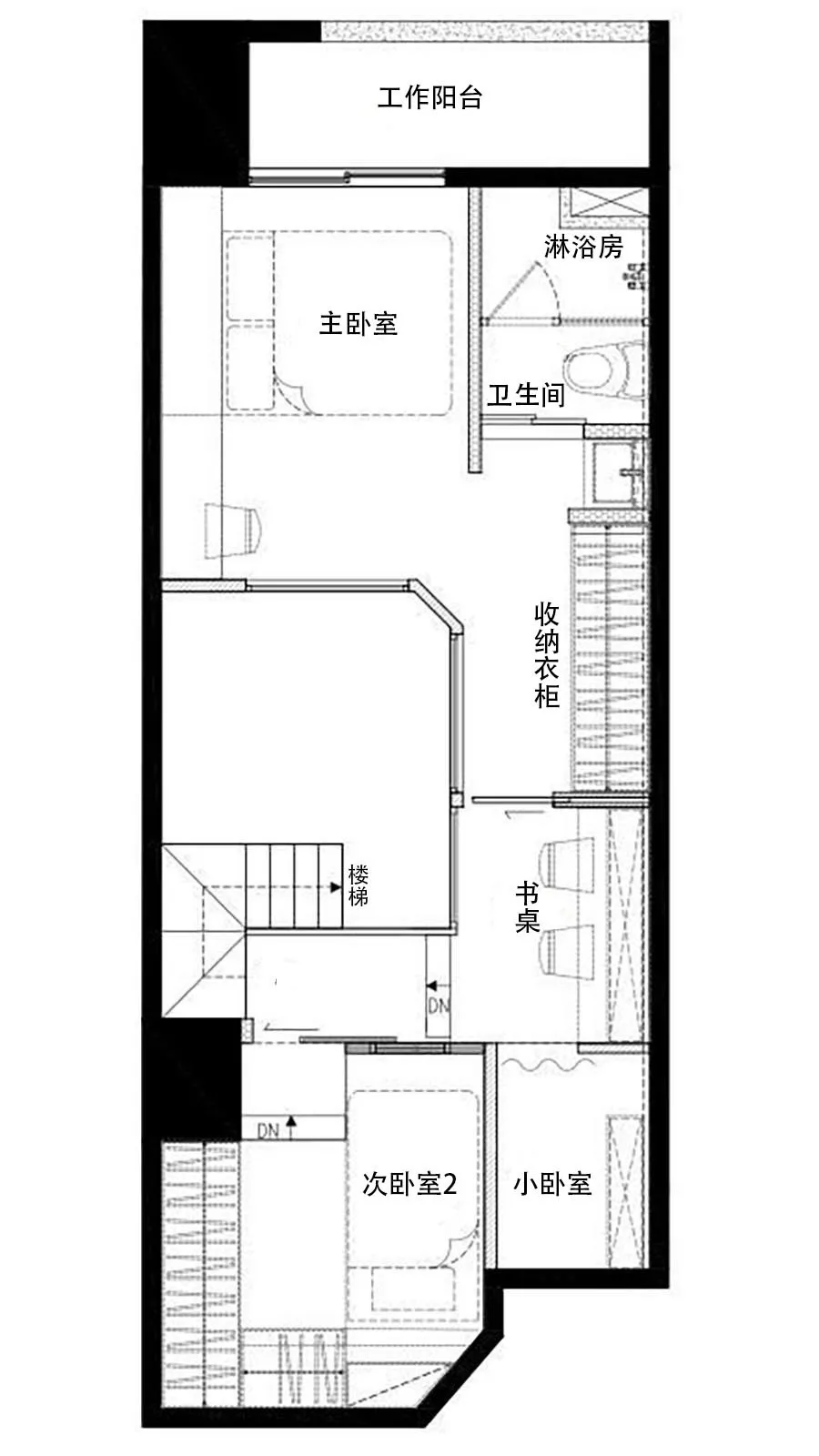
▲ 第一层户型图(图片来源/ 耀昀创意设计)

▲ 第二层户型图(图片来源/ 耀昀创意设计)
设计亮点
您没看错,46平米的小宅居然能容纳六人!而方法就是利用复式楼规划,借着4米的层高规划第二层空间,并顺势增加33平米面积,打造出四室、二厅、二卫及书房的布局。

▲ 图片来源/ 耀昀创意设计
为了满足四室配置,给予齐全的生活功能,适度缩小每个场域比例、以最基础的使用为主,并简化空间脉络,避免浪费。尤其减少单一柜体的零碎陈列,将收纳柜沿着柱体结构或墙线打造,实用之余也避免小户型出现壅挤混乱感。

▲ 图片来源/ 耀昀创意设计

▲ 图片来源/ 耀昀创意设计
其次,因应采光需求及营造舒适性,特别善用通透材质及无障碍动线,引入最大光线;因此二层空间大量以铁工及玻璃为主,并采内窗设计、不妨碍光线穿透。

▲ 图片来源/ 耀昀创意设计

▲ 图片来源/ 耀昀创意设计
二层除了规划三室,还运用廊道打造收纳柜及书桌。另外,因应家中小男孩的需求,将次卧及书房之间的角落空间规划为多功能室(小卧室),小朋友能在此休憩玩耍,而且从主卧就能一眼就见孩子的动静。

▲ 图片来源/ 耀昀创意设计

▲ 图片来源/ 耀昀创意设计
04 ) 64㎡ 北欧风格宅 / 老仓库变黑白时尚
坐标:斯德哥尔摩
层高:4.5m
风格:北欧风
亮点:空间布局完整,还多了办公区

▲ 第一层户型图(图片来源/ PLANETE DECO a homes world)

▲ 第二层户型图(图片来源/ PLANETE DECO a homes world)
设计亮点
改造前,这个空间原本是位于瑞典斯德哥尔摩的一个老旧仓库,所以具备层高4.5米的优势,而且整个空间布局也相当方正,因此虽然仅有64平方米,通过复式设计增加使用面积,也能完善规划基本的生活功能。

▲ 图片来源/ PLANETE DECO a homes world
其次,本案还有一大优势:拥有三面偌大的落地门窗,能引进充沛的自然采光,加上纯白用色及减少隔断墙的设计,有效达到放大视觉空间的效果。

▲ 图片来源/ PLANETE DECO a homes world
一层规划了客厅、厨房、餐厅及卫生间;其中,设计师为了保持空间的通透感,餐桌改用飘板方式,透过桌板下方的镂空设计,减少视线障碍。

▲ 图片来源/ PLANETE DECO a homes world

▲ 图片来源/ PLANETE DECO a homes world
复式层采取U形布局,保持起居区的挑高、宽敞度。螺旋梯连接一、二层,小巧设计有助于节省空间。上楼后先到办公、阅读区,背后的墙面规划书柜,提供做为放置文件、书籍之用。

▲ 图片来源/ PLANETE DECO a homes world
穿过二层的廊道即抵达卧室;为了营造相对低调、纾缓的睡眠空间,此处刻意采用深色的饰面板装修墙面。至于衣物收纳,则设计在二层的廊道上,靠墙规划着一整排的收纳柜。

▲ 图片来源/ PLANETE DECO a homes world

▲ 图片来源/ PLANETE DECO a homes world
05 ) 65㎡ 老屋新装 / 工业建筑变美宅
坐标:斯德哥尔摩
层高:5m
风格:混搭风
亮点:三进布局,打造梦寐以求的衣帽间

▲ 第一层户型图(图片来源/ Entrance)

▲ 第二层户型图(图片来源/ Entrance)
设计亮点
具有岁月痕迹的红砖墙,记载着这套公寓的历史;它原本属于瑞典大城的工业建筑,改造前空间里有裸露的横梁,铜管及砖头,但透过装修化解了杂乱氛围,达到空间立面整齐的效果,并刻意保留砖墙成为装饰的一部分,赋予老屋新装。

▲ 图片来源/ Entrance

▲ 图片来源/ Entrance
由于空间为狭长布局,面宽也不算太大,因此在设计上采用”三进”概念,也就是从入户开始,分为三区并依序安排玄关及盥洗区间、餐厨区、起居区(客厅),且不设隔断墙,一来让光线得以深入室内,二是缓解视觉的局促感。

▲ 图片来源/ Entrance

▲ 图片来源/ Entrance
私领域规划在二层(复式层),挑选玻璃材质当做卧室的围篱墙,同样有引光入室的效果;且不同于一层的白色调,睡眠区改用有助于平静情绪功效的蓝色为主,搭配黑色软包床头,舒适性不言而喻。

▲ 图片来源/ Entrance

▲ 图片来源/ Entrance
特别的是,多数小户型不敢奢望的衣帽间,本案因为打造了复式楼,所以能在卧室旁规划了一间U型布局的衣帽间;不过,由于属于封闭式空间,因此延用公共场域的白色调,让环境看起来比较不拥挤。

▲ 图片来源/ Entrance

▲ 图片来源/ Entrance
注意事项
复式楼装修有不少优点,不过在改造前,有几件事一定要注意,
以免花钱又不实用,会得不偿失的!
一定符合当地法令,且经过物业同意。室内净高不能低于3.6m,否则免谈。复层地板应采用钢铁结构,提升稳固性。运用通透建材及设计,维持舒适性。复层地板不做满,一层空间不压迫。
小户型的每平米都珍贵,更要好好善用以发挥最大的功效;
因此,如果条件许可,适度的运用复式设计不失为好方法,
不仅完善了生活使用功能,也能让小宅变小豪宅!
——————————————————-
搜寻﹝Myhome设计家﹞可以看更多装修资讯
#复式# #小户型装修# #室内设计# #家居设计# #跃层#
原创文章,作者:BKLZLC,如若转载,请注明出处:https://www.beidanyezhu.com/a/94388.html
微信扫一扫