虽说给新房布局规划,实用性是最基础的,但对于大户型来说,通常还是会“浪费”一点面积的。也就是说在新房面积大的情况下,很多人会为了提高空间感,而采用留空的方式来设计,从而打造出宽阔舒适的生活空间。尤其是那种属于大平层户型的新房,根本就不需要考虑最基本的功能需求。
不过本期带来的这套案例,在规划布局上,却和我们常见的处理手法完全不一样。即便在家里只有三口人居住的情况下,屋主也同样没有浪费一点空间,反而还新房规划的非常实用。同时,在空间色调搭配上,也表现出了足够的温暖。
原始结构图

新房建筑面积180㎡,四室两厅三卫的户型结构,也就是我们俗称的大平层。屋主对于新房的期待,由于家里的孩子才刚满一周,所以在空间色彩搭配上,既要表现出丰富性,也要营造出家的温暖感。
而在布局规划上,虽说暂时用不到那么多房间,但也要将所有的空间都利用起来。尤其是在家里有小小孩的情况下,更要体现出人性化设计。
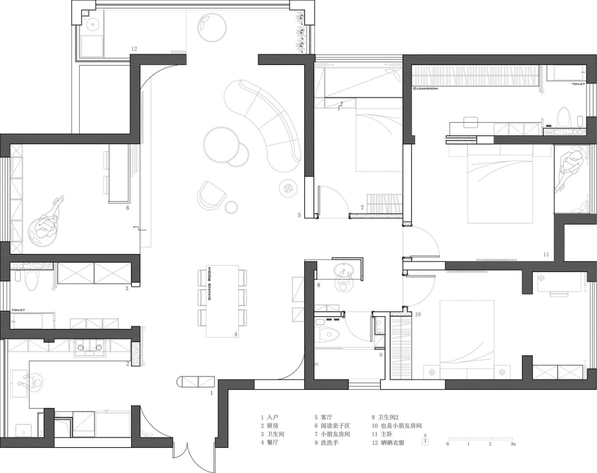
平面方案图

结合屋主夫妇的需求,结构改造这块也是比较大的。
1、进门对面增加玄关隔断功能,让屋主入户后有一个缓冲区,并解决客餐厅的隐私性。
2、客厅旁边的房间做成半开放式亲子区,方便屋主与孩子的互动。
3、为了空间的动线更加流畅,以及避免孩子磕碰,客餐厅做了大量的弧形设计。
4、餐厅旁边的卫生间仅保留马桶及台盆功能,剩余的空间则作为储物柜功能。
5、在房间分配上,则采用了多功能主卧、次卧、儿童房来规划的。
玄关

进门对面的玄关采用了鞋柜来做隔断,既解决了鞋子的收纳需求,也起到了入户缓冲的作用。同时,在玄关细节的处理上也非常人性化,比如给地面铺上地板,大大提高了孩子玩耍时的舒适性。
再比如将玄关鞋柜的侧面做成弧形,则避免了尖角可能会造成的磕碰影响,也提高了空间的流畅性。而在安装柜子时与墙体预留出一点缝隙,则是为了避免两者相交处会发生开裂问题。当然,有了缝隙也让空间表现的更加灵动了。

进门左手边的内陷空间,则是在拆掉之后,在转角处配置了一组三角换鞋凳,从而保证使用时的舒适性。当然,也兼具了一点收纳功能。
餐厅

餐厅的整体布局算是比较简单的,只配置了一张六人餐桌,并采用了居中的方式来摆放,以提高空间动线的自由性。而当酒柜采用悬挂的方式来安装后,整个餐厅空间又表现得相当轻盈,给人一种十分宽敞的空间感。

餐厅看向厨卫视角,有个细节设计挺不错的。就是厨房与卫生间的门洞,采用了对称式的弧形来处理,从而表现出了大门洞的视觉感。而单扇移门的配置,则方便了屋主在生活时,根据使用需求,给这两个空间做封闭处理。
卫生间一

厨房旁边这个卫生间,仅保留了最基本的马桶及台盆功能,也就是当家里来客时,为亲戚朋友准备的,从而让空间更加的干净卫生。卫生间的外面则做满了柜子,以解决家里的杂物收纳需求,非常实用。
客厅

来到客厅,除了阳台门洞做了弧形设计,电视墙的转角以及吊顶也都做了弧形设计,从而让空间表现的更加统一和谐。

电视墙并没有做单独的造型设计,只配置了一台电视机,来保证最基本的视听功能。以榻榻米的结构将旁边的亲子区整体抬高,并配置移门隔断,既让该区域有了收纳功能,也拥有了隐私性。而将电视柜延伸至亲子区,也解决了台阶踏步的功能。

沙发墙的设计比较常规,利用木饰面做满装饰,可以表现出不错的圆润效果,并和整体做到了融合。而一幅超大的装饰画,则起到了点缀空间的作用,且和旁边的餐厅墙面起到了对称呼应作用。
卫生间二

餐厅旁边的卫生间,由于紧邻三间卧室,所以极大的方便了屋主夫妇生活使用。考虑到台盆区做了独立设计,将儿童房的门洞做了隐形处理后,视觉上也不会显得太突兀。
主卧室

主卧的色彩搭配延续了外面的处理,以绿、粉、白、灰色来组合,看起来既丰富也十分的温暖。原有的飘窗台则设计成了柜子功能,也算是比较实用的处理方式了。
衣帽间

主卫在功能布局上和外面的卫生间差不多,内部仅保留马桶及台盆功能,外部则做成了柜子及书桌,从而解决衣物收纳以及女主梳妆需求。
儿童房

考虑到孩子还比较小,所以儿童房基本上是以次卧的方式来布局的。不过给床头墙面包上不规则的软包后,看起来却显得十分有特点。
客房

客房的功能主要以预留为主,所以在布局规划上,仅仅是在临窗的位置做了地面台高,并配置了一组书柜,从而让空间更加的灵动。
本案最大的特点,应该就是在设计布局上,并没有刻意的表现出大平层该有的空间感,而全是以实用的角度来考虑的。比如在家里只有三口人的情况下,还配置四个房间以及三个卫生间,自己还是第一次见到。不知道你们对此怎么看呢?
原创文章,作者:VUTHFM,如若转载,请注明出处:https://www.beidanyezhu.com/a/94826.html
微信扫一扫