说到当下最火的装修风格,除了现代极简之外,就是日式原木风了。不同于北欧原木风,所主张的“少即是多”,讲究功能至上;日式原木风则追求“侘寂与空”,强调自然主义。换句话来说就是,一个内敛真实,一个张力丰富。
本期就给大家带来一套以日式原木风为主的装修案例,大量原木材质的运用,一进门就引起强烈的舒适感,仿佛处处都透着一抹生活美学。
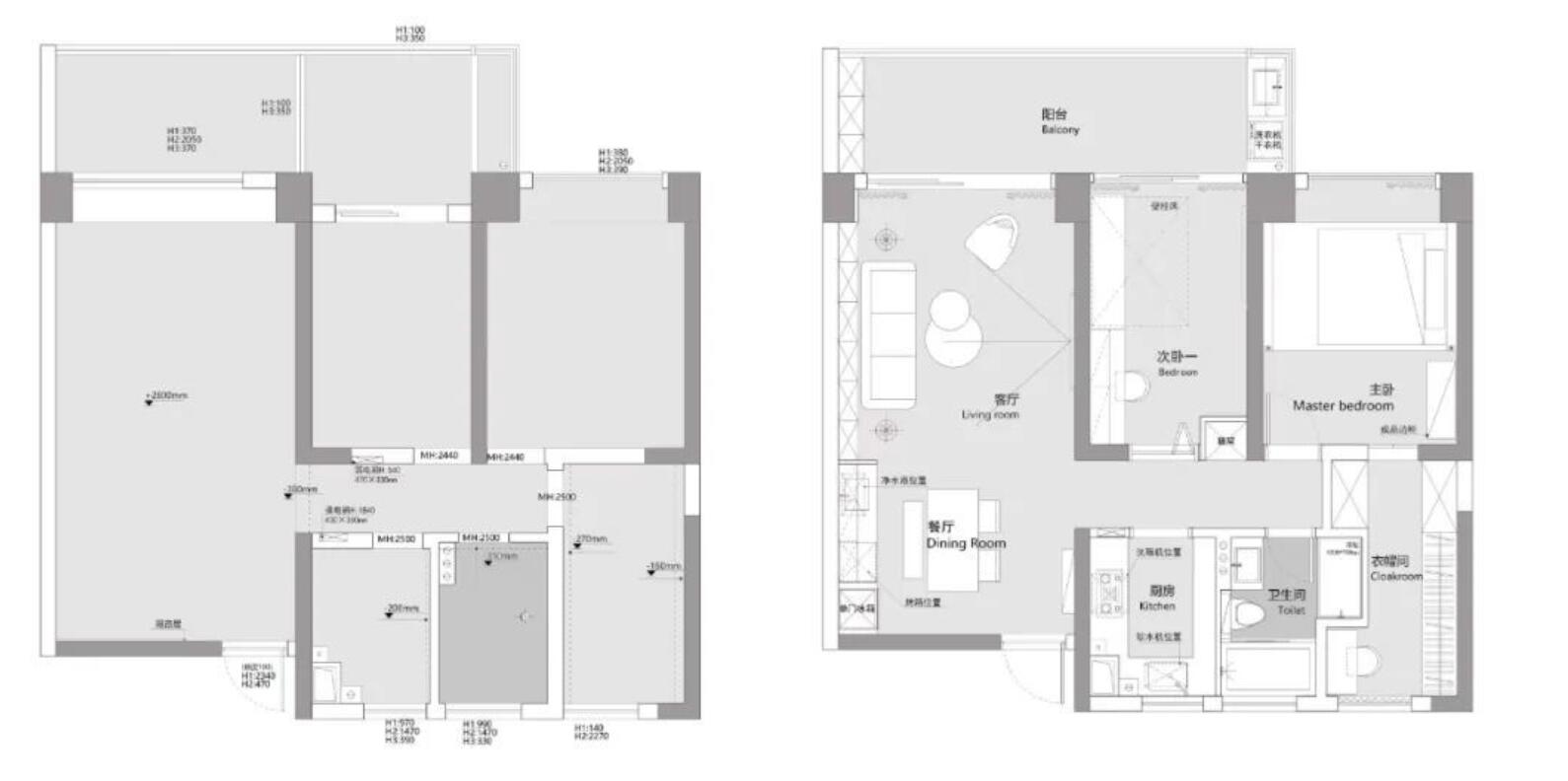
平面户型图

本案来自杭州,面积89㎡,三室两厅的格局。由于家里平时只有两个人居住,所以在空间改造上,是以两室两厅的功能性来做优化的,具体改动如下。
1、北面小房间纳入主卧,并作为衣帽间来使用。
2、书房采用折叠门隔断,为过道引光,并延伸出一个宠舍的空间。
3、卫生间向衣帽间扩大,延伸出一个浴缸空间。
4、南阳台打通,并兼具家政与休闲的功能。
入户

进门就对着餐厅,考虑到家里没有合适的鞋柜空间,就在进门右边增加了一组成品的鞋柜。虽说储物能力有所欠缺,但日常的收纳需求,还是可以满足的。而为了让空间保持统一的基调,原有的猪肝色大门,也重新更换了原木饰面的大门。
餐厅

餐厅最大的亮点,就是大面积的木饰面吊顶设计了,既与空间内的其它材质做到了统一、呼应,也在视觉上引起了强烈的舒适。再搭配上黄铜色与木质结合的吊灯,不仅彰显出了浓厚的自然韵味,也有了一些小小的精致性。
1.8米长的餐桌居中摆放,可以让生活使用动线十分舒适,并且还可以用来办公,方便日常的互动交流。而餐椅与长凳的结合,也在视觉上造就了一种不对称的美感。

餐厅侧面增加西厨区,巧妙延伸了厨房的功能性。比如饮水、烘焙等,都会十分方便。同时,还解决了冰箱的空间需求,从而极大缓解了厨房的空间压力。

客厅

餐厅看向客厅视角,墙顶面以大面积留白为主,既营造出了干净、整洁的空间氛围感,又与餐厅顶面的木饰面,形成了秩序上的平衡。
在空间改造这块,由于南阳台面积比较大,所以移门就正常安装了,以提高室内的隔音隔热效果。不过给移门安装上纵向的百叶窗帘后,却也让室内的氛围感更加温柔、舒适了。

沙发墙设计了整体收纳柜,并通过隔层与抽屉,融合了收纳与展示的功能。这样一来,不仅将黑色的皮面沙发,衬托得更显质感,也让空间充满了自然、清新的气息。当然,最重要的还是空间的收纳能力,得到了很大的提升。

电视墙留白,最大限度地弱化空间的复杂感。原木饰面的电视柜,少量的绿植,再搭配上装饰画、壁钟,既呼应了空间主题,又在强化空间氛围感的同时,带来了一抹生机。

客厅看向餐厅视角,虽说户型面积并不大,但一体化的空间布局,却也营造出了开阔的视觉表现。尤其是统一的原木元素运用,更是赋予了空间一抹素净的暖意。

过道

为解决过道的采光问题,书房做了折叠移门隔断。这样一来,还让空间实现了自由开合,使生活动线更加舒适。而折叠门的旁边,则设计了一个内嵌式的宠舍,由于紧邻卫生间,所以打理起来也会特别方便。
书房

书房延伸了空间的主基调,并以多功能间来定位的。比如办公、休闲、音乐、储物等等。同时,展开衣柜里的墨菲床,还可以作为客房来使用。

主卧室

不同的常规的主卧室,这里则临窗设计了日式地台,并用木饰面做了围合式处理。这样一来,既节省了空间面积,在灯光的衬托下,也让睡眠氛围更加舒适、安宁了。

衣帽间

当北面的小房间纳入主卧之后,则是作为衣帽间来使用的。通往内部的门采用隐形的方式,与墙体保持工整,既保持了空间的美观,也提高了空间的私密性。

衣帽间采用多种隔层结构设计,可以满足不同的收纳需求。内部临窗处增加书桌,不管是用来梳妆,还是用来临时办公,都特别方便。
厨房

厨房在原有的空间基础上,向旁边的卫生间扩大了一点。虽说还是无法设计标准的U形橱柜,但在左侧橱柜有40cm深度的情况下,却也极大缓解了操作空间的压力。而白色的小墙砖搭配上原木色的柜门,也在明亮的氛围中,透露出了生活的烟火气。
卫生间

为满足不同的使用需求,卫生间则向衣帽间做了扩大处理,以延伸出一块浴缸的空间。这样一来,无论是日常淋浴,还是泡澡休闲,都得到了满足。

整个案例看下来,整体还是挺平淡的,但也恰恰是这种平淡的表现,蕴含了日式风格的内敛与空寂,从而给人一种最舒适最自然的生活感受。
图源:TK设计
原创文章,作者:XHKDQH,如若转载,请注明出处:https://www.beidanyezhu.com/a/96139.html
微信扫一扫