如今的90后夫妻,有一部分是奉行享乐主义,做起丁克一族,只在乎眼前的快乐,以自己为中心,过着没有孩子拘束的生活,不理会世俗人的眼光。
这对90后夫妻就是其中之一,他们的48㎡一居室的原木风格的小家火了,因超多的收纳空间和卫生间玻璃间隔,实在令人羡慕,全屋色调舒适温馨,大套房的布局实用又好看,真喜欢。
本期罗工带大家看看这套纯享乐主义的房子。
这套房子的原始布局是2房1厅的格局,因为是小户型,基本上室内所有的空间都不算大,特别是其中一个小房间和卫生间特别小,很难去满足这对小夫妻对生活品质的要求。
▲原始平面图
夫妻俩对于房子有自己初步的想法:全屋只需要保留一个房间;足够多的收纳空间,因为他们的衣服和用品都很多;在有限的空间下,要尽量保证空间的宽敞,不要显得过于局促。
▲房子现场
平时男业主都比较忙,装修的事情都是交由女主人全权负责,跟设计师详细说出自己的想法后,在现场进行实地的测量之后,设计师在平面设计中,提出一个大胆而实用的方案。
▲平面布置图
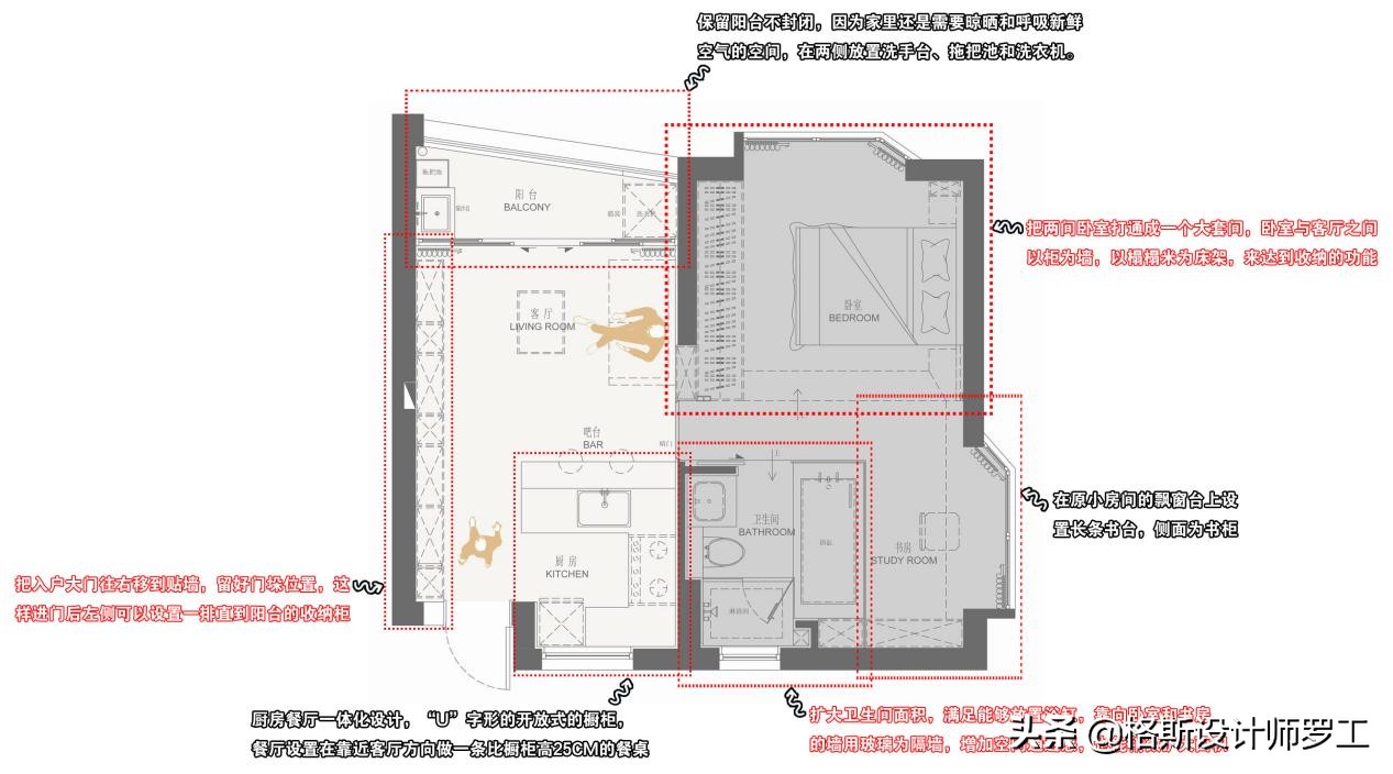
设计师把室内能拆的墙体都拆除,重新规划布局各个功能空间,当然承重墙要保留,安全才是最重要的。因为墙体一般都有12CM厚,厚的有18CM,毕竟小户型要寸土必争啊,这样就可以多出一些空间来。
●把入户大门往右移到贴墙,留好门垛位置,这样进门后左侧可以设置一排直到阳台的收纳柜;
●厨房餐厅一体化设计,“U”字形的开放式的橱柜,餐厅设置在靠近客厅方向做一条比橱柜高25CM的餐桌。
●保留阳台不封闭,因为家里还是需要晾晒和呼吸新鲜空气的空间,在两侧放置洗手台、拖把池和洗衣机。
●把两间卧室打通成一个大套间,卧室与客厅之间以柜为墙,以榻榻米为床架,来达到收纳的功能。
●在原小房间的飘窗台上设置长条书台,侧面为书柜。
●扩大卫生间面积,满足能够放置浴缸,靠向卧室和书房的墙用玻璃为隔墙,增加空间通透感,也能稍微扩大面积。
▲施工过程
方案确定好后,经过近3个月时间装修,在这个过程中,设计师和施工人员等很严谨和专业,使得房子顺利完工。
玄关
▲玄关
一进门玄关的左侧是一排柜子,功能的不同相应做了不同的设计,首先是一个40CM宽的落地柜,放置一个雨具和换季的鞋子,接着是悬空30CM做抽屉,左侧是到顶的柜子,放置当季的鞋子,右侧是换鞋凳,其背面是洞洞板,可以根据自己需求调整位置,可以挂些包包、围巾和锁匙等物品。
开放式厨房
▲开放式厨房
厨房和玄关的地面运用了两种不同色调的条形地砖,通过不规则的铺排,使得地面与众不同,特别有设计感。
▲厨房细节
厨房选用了集成灶,比较节省空间,黑色的岩板台面配上深灰色的门板和白色条形瓷砖,在灯光的照射下,显得十分的有格调。吊柜左侧留出一格做层柜,用来摆放一些经常用的东西,也让整体看上去没有那么单调。
餐厅
▲客厅望向餐厅厨房
餐厅与厨房连在一起,设置一张1米高的长桌与橱柜拼排,形成一个高低落差来区分空间。餐桌底的左侧留30CM宽做收纳层柜,摆放一些用餐的物品。正对餐桌顶上3盏小吊灯,在用餐时可以提供一些氛围。
▲长条餐桌
餐桌台面跟橱柜一样是黑色岩板,一直延伸到厨房,搭配原木色的柜体,温馨而沉稳。
客厅
▲客厅
客厅设计很简洁,地面满铺木纹砖,无主灯的白色天花,为了让空间更高些,没有再封板装嵌入式灯具,而是采用了明装式的射灯,黑色的方形灯看起来也相当简约,跟整体空间很搭配。因为电视墙做了收纳柜,取消了电视机改为投影幕,在天花预留一个凹槽安放,平时把它收在里面,不影响视觉效果。
▲客厅全景
客厅的收纳空间让女主人十分满意,右侧满墙的收纳柜不会显得很突兀,柜子从换鞋凳为界,下方是原木色的柜子,有抽屉、有柜门能满足不同功能的收纳;上方是白色柜门,在右侧1.6米高挑空做了一个层柜,用以摆放装饰品,配上光源,使得收纳柜活跃起来,不会显得单调,也达到了效果;
▲客厅收纳柜
这排收纳柜还隐藏了一个功能,把客厅的挂式空调收到柜内,再通过百叶出风,这样既满足了使用,也不影响整体效果。
▲客厅沙发背景墙
沙发背景墙右侧有一个装饰柜与房间的门一体设计,隐藏式的房门关起来时,就是一面木饰面墙,相当简洁。
卧室
▲卧室
卧室色调以原木色和浅灰色为调,整体氛围温馨舒适,由于室内净空有3米高,从卧室门侧开始做两级地台,每级的侧面做抽屉和平台区域做收纳柜,床靠背和床头柜跟榻榻米一起设计,从而达到统一和谐的效果;床尾是满墙的衣柜,一门到顶的柜门,简洁大气。
▲卧室局部
书房
▲书房&卫生间
书房和卫生间位置卧室进门后的右侧,书桌设置在飘窗之上,由于卫生间没有窗户,两者之间的间墙用黑色玻璃分隔,一来可以增加光线,二来增强空间的通透感,让卧室看起来更开阔。
▲书房
原木色加白色搭配的书桌延续了整体色调,由于男主人平时需要在家处理工作文件,宽阔的书桌让工作更顺心。
▲书房局部
书桌右侧是满墙的书柜,黑色玻璃柜门加上柜体的暗藏光源,柜顶也是把挂式空调收在柜体内,整体效果时尚简洁。
卫生间
▲卫生间全景
卫生间色调以黑白色为主,浴缸、洗手台、马桶、淋浴间等功能一应俱全,以洗手台高度为界,下方为黑色大理石,上方为白色马赛克。浴缸和淋浴间交接处用砖砌了“L”字形墙,面向浴缸和淋浴间形成两个壁龛,解决了收纳的问题。
▲卫生间
马桶选用了挂壁式,款式时尚,把水箱隐藏起来形成一个平台,连接着洗手台的台面,平时可以摆放物品,
▲入墙式水龙头
洗手台水龙头选用了黑色入墙式水龙头,搭配白色马赛克,整体显得很简洁,也方便平时清理。
▲淋浴间细节
淋浴间地面中间一块灰黑色拉槽的防滑大理石,四周是白色大理石凹下去1.5CM,正对花洒中间的下方设置一个隐藏式的地漏,呈现出十分高档的效果。
写在最后,这套48㎡的原木风格一居室房子,收纳空间超多,整体温馨舒适,小夫妻在这过着让人羡慕的生活。
原创文章,作者:EZTGHP,如若转载,请注明出处:https://www.beidanyezhu.com/a/96201.html
赞 (0)
小户型硬核装修(装修图小户型)
上一篇
2025-07-16
28岁女孩的38(个人工作室装修效果图)
下一篇
2025-07-16

微信扫一扫