我们一说到香港,除了住房问题外,令人震惊的就是香港的房价了。现在香港房价至少为9万/㎡ ,这让很多年轻人在谈论“买房”这个词时,感受到巨大的压力。
香港的房价比黄金都还贵,想要通过自身的努力在香港买一套属于自己的房子,是非常难的。
然而,本期这位30岁的年轻人做到了!虽然这是一套面积只有26平方米的公寓,但买下来相当于310万元人民币,这让很多网友感叹:这也太贵了吧,不理解!我们一起来看看这套房吧。

布局
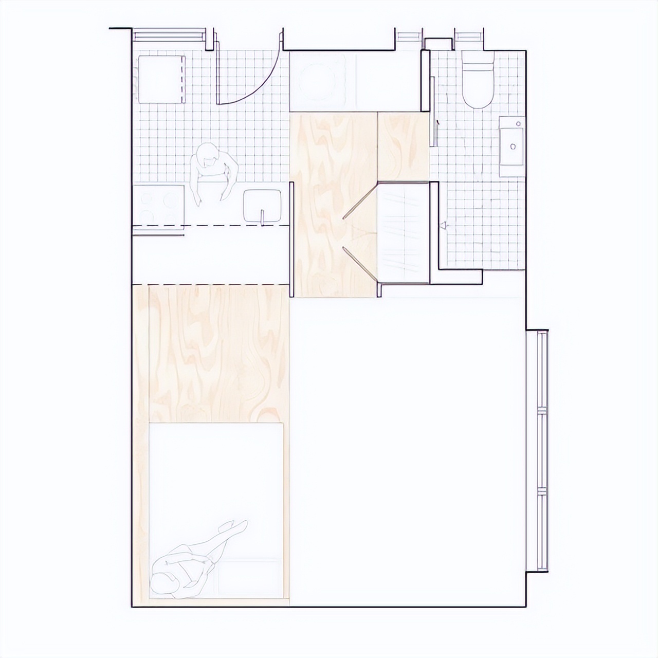
从平面户型图中,我们可以看出空间虽然很小,但布局却非常合理。打开房门,就是一个玄关区域,具有玄关+厨房的双重功能。
玄关尽头的右手边,就是卫生间,再往里走,就是橱柜和多功能卧室区。接下来,小编就带领大家一起看看这位男青年温馨舒适的小家吧。

框架
作为一套独居的公寓,设计师更加注重模板的设计,采用胶合板+钢筋+木材,巧妙地将玄关、厨房、客厅、卫生间等区域分隔开来。
一个近1.8米长的柜台,可以很好地满足小型家电的摆放和日常储物的需要。

入户
这是一套二手房,位于香港市的中心。从图中你可以看到,入户口的外面,已经显得有点斑驳和古旧了。就连原来的红色门框,也会有些掉色。
或许很多人会问:难道这就是一套价值310万的房子吗?为啥它跟三四线城市的廉租房一样。
那是因为你不了解香港的房价,距离市中心越近,房价就越高。

玄关
玄关的设计实际上是一条T形走廊,原本就不大的房间,玄关的设计自然就不会太大。幸运的是,设计非常到位,室内每1平方米的面积都得到了极致的利用,丝毫没有浪费。
玄关前面是厨房的水槽,在香港疫情很严重的时候,你可以在回家的第一时间洗手消毒。玄关左边其实是一个简单的门廊柜,可以很好地用来满足日常的储物需求。

厨房
进门以后就是厨房区域,地板是通铺酒红色的瓷砖,这使得进屋后感觉更高级。同时整个厨房以黑色调为主,更具视觉个性氛围。
我们透过厨房前面的小玻璃窗,就能看到卧室了。

卧室
整个卧室空间实际上是一个多功能的空间,主要由一个组合式的框架组成。过道旁边是一个大型衣柜设计,一些日常杂物以及屋主人的衣物都可以收纳在里面。
再配上深色系的复合木地板,以及原木风格的大床和壁柜,让看起来不大的空间,在空间容纳上显得特别强大。

书房
设计师在书房里设计了一扇非常大的窗户,采光效果达到最佳,这也是整个房间里唯一的采光来源。一组木质书桌再加上黑色铁艺座椅,成为了一个舒适的办公区。
整个多功能区坚持小空间的改造原则,剔除了不必要的元素和材质,注重简约的氛围,让空间居住氛围感更加鲜明。

客厅
客厅主要是一整套定制的木质榻榻米,从榻榻米沙发延伸到天花板,在墙壁上还设计了一个壁柜,可以用来满足日常的储物需求。
这款极具动感的榻榻米,代替了传统沙发,也具有了更多功能,比如它能充当卧室或者是客厅。

卧室
当你想躺下来休息或者想睡觉的时候,可以把榻榻米沙发上的坐垫和方桌都放在床底下,然后搬出床垫,这里就成为了一张超大的床。
在“客厅”与“卧室”之间,实现了空间的自由转换,设计非常新颖,可以堪称是小公寓装修的样本。

卫生间
卫生间地面跟墙面是通铺酒红色的瓷砖,营造出了独特的空间氛围。卫生间设有一组白色洗漱台、墙排式马桶以及独立的淋浴区,空间虽小,功能却很齐全。
后记
参观了这位香港男青年的独居公寓后,我相信很多人都会感觉不可思议,在香港花310万人民币买一套26平方米的公寓,居住起来真的会很开心吗?
事实上对于香港的年轻人而言,能拥有一套属于自己的房子,是一件多么令人幸福的事情。更不用说这所房子的设计是合理的,空间利用到极致,一丝都没有浪费。
它兼备了客厅、厨房、卧室、书房等区域。虽然房子面积只有26㎡ ,可功能却非常齐全,可谓是小户型装修的典范!
原创文章,作者:PQMDWT,如若转载,请注明出处:https://www.beidanyezhu.com/a/96206.html
微信扫一扫