
北京中关村茶室项目
简介&需求

该项目属于旧店面改造项目。业主将室内设计和装修施工一并委托给我们,目的在于将原本的咖啡厅改造成室内风格考究的新中式茶室。
业主的要求是将室内设计尽量做到高端、精致,满足日常店面运营和接待的需求,由于项目场地的房租昂贵,因此业主要求尽量快地完成室内设计阶段,争取时间尽早开工。
平面布置

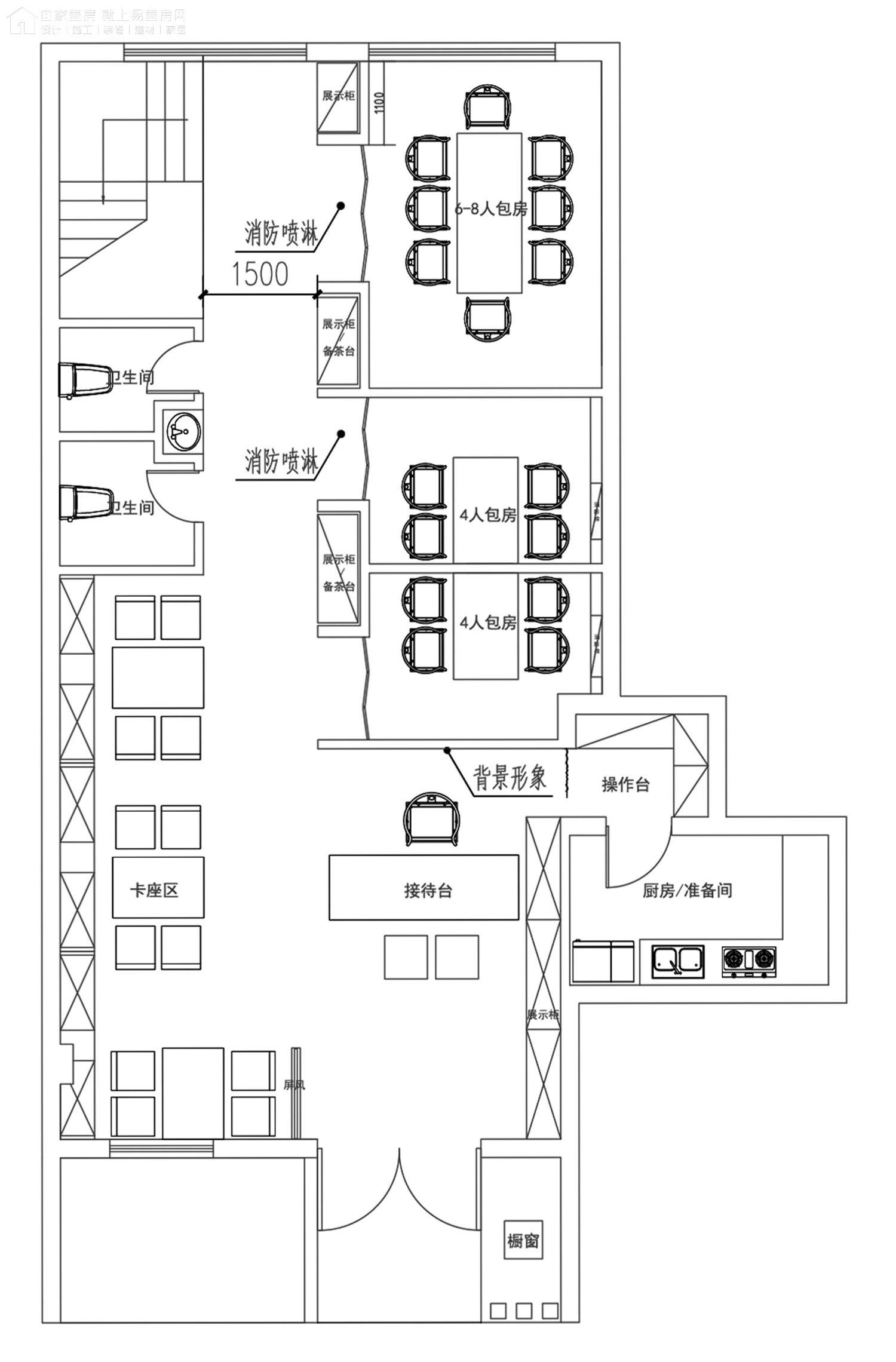
△一层平面布置
一层主要包括接待区、卡座区、包间区、准备间和两个卫生间。
为了满足日常的营业和接待需要,设计师对原本一层全部通透的开放空间重新进行了划分,将前台和卡座区划分于同一开放区域,在前台后方则通过隔断划分出三个包间,使得一层的空间属性更为丰富。
设计师将一层空间的整体动线设计得非常合理,使得角落处楼梯的形式感降到了最低,整体视觉上的过渡空间非常连贯。

△地下一层平面布置
地下一层空间的划分则较为简单,楼梯旁的一大块区域主要用于团体活动承办,并通过隔断、屏风的灵活设计连通贵宾室,以便人数较多时,可腾出更多活动空间。
办公室的设计主要为满足业主的日常工作使用,而东侧单独包间的设计则是作为一层3个包间的备用和补充空间,可以满足不时之需。
效果概述

△一层前台&卡座空间
一层入门后,映入眼帘的就是吧台和卡座的公共空间,吧台被设计为多功能接待台,既可以作为商务功能使用,也可以作为体验区接待客人。
吧台的背景墙通过竖条木格栅加圆形的展示LOGO彰显茶室非凡的中式韵味,突出茶馆品牌。两侧墙面的陈列柜则用于摆放茶室的各种商品和收藏品,收纳与展示功能非常丰富,满足了茶室的展销需求。
为了分隔接待区与卡座区,设计师在门口左侧设计了半透明纱面纹理木隔断,由于纱面材质特性,增加了卡座区的朦胧感,同时木隔断材质与柜体材质保持一致,也很好地融入了整体风格。
卡座区的整体风格相对简约,设计师着重通过灯具和桌椅等家具摆放分隔了卡座区域。地面采用清水混凝土抛光打磨处理,呈现回归自然地效果;天花板裸顶的工业风设计,中和了过于雅致的墙面,让人在室内不至于太过压抑,更能感到放松。

△一层4人包间
一层包间的设计相比卡座的公共区域更为精细和雅致。相比公共卡座区,包间的墙面通过米黄色麻纹壁纸让中式韵味更进一步地得以突出,木质格栅门的设计也更偏向于古风的形式;同时,包间的桌椅全部采用了实木的古风家具,造价不菲,墙面的装饰品也采用了货真价实的高级画作,成为了整体空间的点睛之笔。


△一层6~8人包间
相比4人的小包间,6人大包间虽然在整体设计上一脉相承,但在视觉上的冲击力却更强了一些。这主要得益于灯饰和木格吊顶在相对比较大一些的空间里带来的张力;同时墙面的画作装饰也更饱满,使得其在整体视觉上的效果更佳。


△一层走廊&楼梯空间
一层走廊位置的包间隔断门以及墙面的设计沿用了吧台背景墙的设计风格,使走廊的视觉与吧台区域保持了良好的连贯性。
同时,设计师在每个包间门间隔的部位设计了展示台,下方则通过柜子或抽屉负责茶具和日常营业用具的收纳功能。一体化的设计让走廊的装饰与实用功能兼具。
楼梯空间则通过透明的玻璃改善了狭小转角处的延伸感,使我们在视觉感官上不至于感到太过拥挤和紧迫;转角处的上方则设计了墙面装饰,改善了视觉的单调感,同时也让这一空间整体风格更符合中式的主题。

△地下一层公共大厅
地下一层楼梯旁边这一空间中的中式元素相对较少,桌椅也与一层的卡座区有所区别,并通过幕帘与东侧过道以及南侧贵宾室分隔。
由于该空间主要作为承接团体活动的功能分区,考虑到活动中带来的嘈杂和人员流动,因此整体布置尽量做到了简洁,布置间隔也相对更加宽敞,确保了视觉上的安静和动线预留空间的充足;同时,为了增强多媒体活动功能,墙面的字画装饰在最终装修时也改为了大屏幕。
另外,由于考虑到地下一层的收纳空间非常有限,设计师还在楼梯下方设计了收纳间并将其隐藏于整体的墙面风格中。

△地下一层办公室
地下一层的贵宾室作为多功能空间,必要时需让出用作北侧大厅的补充空间,因此设计师尽量将这一空间的布置做到最为简单,方便家具的移动。
办公室主要用于业主的日常办公,因此设计也并不繁琐,将墙面收纳架、背景画以及吊灯作为主要装饰,同样与地下一层的整体空间风格保持了一致。

△地下一层6~8人包间
地下一层包间主要作为一层包间的补充和备用,由于没有吊顶设计的必要,因此设计师在这一空间的设计风格上与一层做了区分,将更多的设计放在了墙面上。墙面装饰呼应一层包间门的竖条纹理,同时通过装饰画与背景造型效果增强了空间整体的中式情调。
装修实拍

△一层前台背景墙



△一层陈列架


△一层走廊





△各个包间

△地下一层公共大厅

△楼梯转角
原创文章,作者:MCTWGR,如若转载,请注明出处:https://www.beidanyezhu.com/a/97041.html
微信扫一扫