说到当下最火的装修风格,除了极简风之外,就属原木风了。甚至可以不夸张地说,哪怕居住10年,也不会出现审美疲劳的情况。当然,这两种风格也不完全冲突,以混搭的方式结合,效果出来也依然很棒。
像下面这位屋主在装修时,就是以原木极简风来定位的。相较于单一的风格,不仅让空间做到了简洁、温暖,视觉上也十分有层次。同时,合理的布局规划,也真的做到了越住越舒适,非常值得大家来借鉴。
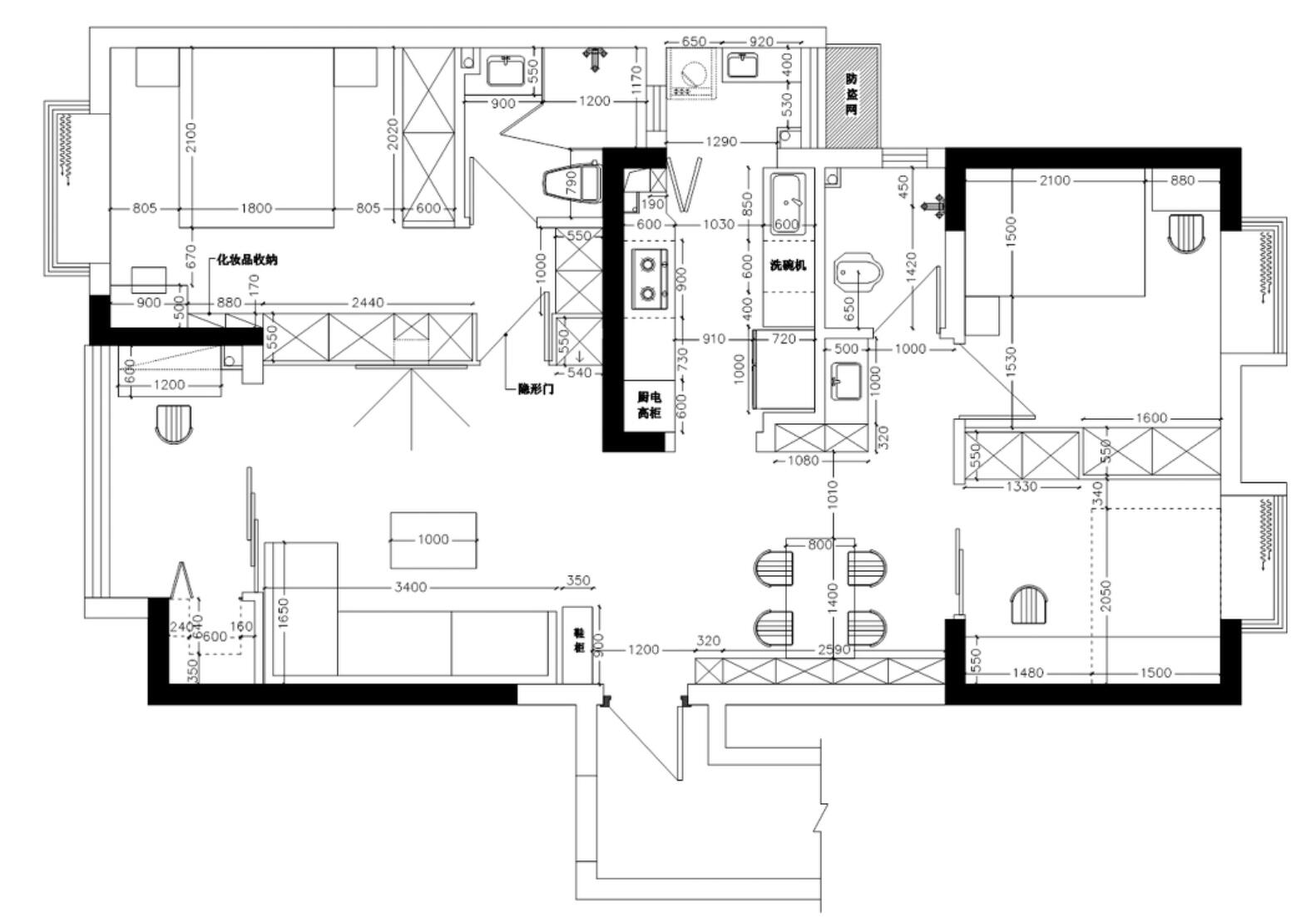
原始结构图

新房使用面积92㎡,三室两厅两卫的格局,屋主是一对小夫妻。从原户型结构来看,问题还是比较多的。比如空间不够工整、客餐厅不够通透、以及缺少合适的储物区等等。
虽说家里目前只有两个人居住,但屋主夫妇对生活的考虑,却十分长远。尤其是储物空间规划这块,更是希望能多多益善,以彻底保证在后期生活中够用。
平面方案图

结合屋主的需求,以及现有的空间情况,布局改造如下
1、主卧向客厅扩大,为内部多延伸出两组衣柜,提高空间的收纳能力。
2、阳台做开放式设计,并利用夹角空间,规划出一块洗衣区,以减少空间的复杂性。
3、将次卧与书房之间的墙体拆掉,并采用两组“Z”形柜体隔断,分别满足各空间的收纳。
4、书房采用玻璃隔断,让客餐厅实现真正的南北通透。
5、利用厨房与卫生间的墙体空间,为餐厅规划出一组储物柜。
玄关

原户型并没有一个真正意义上的玄关,不过分别在入户门两边设计一组储物柜,并给地面铺上一块地毯后,却也加深了落尘区的存在。
左边高柜,可以用来收纳衣帽及换季的鞋子;右边矮柜可以用来收纳日常的鞋子。这样一来,不仅在收纳上做到了合理分类,也为沙发区起到了一定的遮挡作用,从而让空间更有安全感。
客厅

玄关看向客厅视角,墙面留白,顶面做无主灯设计,并通过两组线性轨道灯来照明,既彰显出了简约、利落,又弱化了空间的复杂。同时,光线也更加均匀了。而当阳台采用开放式设计后,也瞬间让空间通透了许多。

电视墙不做过多的设计,直接用木饰面和格栅来处理,不仅呼应了空间主题,还强化了温润的质感。同时,还让旁边的主卧门实现了隐形,使墙面更加整体统一。而旁边的一组开放式隔层柜,则在提供收纳的同时,也兼具了很不错的装饰效果。


阳台一侧增加书桌柜,不管是用来阅读,还是用来办公,都非常实用。而给阳台安装上竖向的百叶窗帘,也在阳光的衬托下,让室内有了一抹光影的变化。

L形的转角沙发、原木材质的茶几、以及三幅抽象装饰画配置,既凸显出了温柔与舒适,又让空间饱满了许多,从而让大白墙不再显得那么单调。

餐厅

来到餐厅,整体延续了客厅的设计手法,让空间与空间之间有了呼应。而为了让空间实现南北通透的结构,给书房安装上长虹玻璃隔断。不仅仅拓展了空间,也实现了自由开合。同时,还为餐厅起到了补光的作用。

整面墙的餐边柜设计,除了为空间提供了大量的收纳能力之外;中间镂空位置暗藏上灯光后,展示效果也十分不错。再搭配上顶上的小吊灯,立马就将整个餐厅氛围烘托得十分温馨。
厨房

厨房处于入户第一视角,为了美化,直接选择半帘来隔断,立马就彰显出了一抹生活的烟火气,并且还起到了节省空间的作用。

厨房内部采用双排一字型的橱柜布局,并搭配上吊柜,既让空间面积得到了充分利用,也预留出了舒适的转身空间。考虑到空间采光条件比较一般,整体以灰、白、原木色来搭配,在灯光的衬托下,也让空间亮度有了质的提高。而外面则是一块独立的家政区。
卫生间

主卫同样是以灰白调来定位的,看起来既干净又整洁。而给空间配置上智能马桶、独立的淋浴间,悬挂式的台盆,也间接性提高了生活的品质。
主卧室

主卧延续了外面的留白,再搭配上原木风的家具,简约又不失温馨。顶面采用无主灯设计,并在房间四个角安装上明装筒灯,除了可以让灯光氛围更有层次感之外,也点缀出了休闲、舒适的睡眠环境。


为最大化提高空间的收纳能力,除了床头侧面正常设计了一组衣柜之外,还利用客厅的空间,规划出了一组内嵌式大衣柜。这样后期不管是父母过来居住,还是有了孩子,都能满足日常的收纳需求。
书房

书房的储物能力同样很强大,比如左侧利用墙体空间设计的一组储物柜;右边整面墙的功能柜,都兼具了强大的收纳功能。同时,隐形的墨菲床设计,又让空间有了更多的变化。

整个案例看下来,我算是明白原木风为何会这么火了。看似简单,但骨子里都透着实用、温馨。也不得不佩服屋主给家里打满柜子的装修思路,因为就长期生活来看,储物收纳的确是每个家庭最头疼的问题。所以提前规划好,也真的很有必要。
图源:摇光
原创文章,作者:DPGXYQ,如若转载,请注明出处:https://www.beidanyezhu.com/a/97094.html
微信扫一扫