不管是大户型,还是小户型,当家里的格局出现过道后,装修时总会让人十分的烦恼。因为过道一般都是作为主通道存在,在改造时受到了局限性非常大。可若不做改造,不仅会浪费面积,还会影响空间动线体验。那么针对这种情况,我们该怎么办呢?
本案屋主家的设计思路就很棒,通过合理的改造,不仅弱化了过道的狭长,还延伸出了一个衣帽间,从而让使用面积得到了充分利用。所以大家若也苦于这个问题没有办法解决的话,完全可以来参考一下。
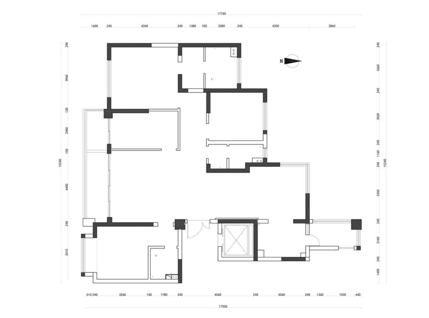
原始结构图

新房建面196㎡,坐标上海,四室两厅三卫的格局,屋主是一对90后小夫妻,原户型使用面积分配相当不合理,比如客厅过大,走道狭长,厨卫过小等等。不过最让屋主夫妇接受不了的,还是主卫门对着床。因此,整个空间布局改造也非常大。
平面方案图

空间布局改造如下
1、厨房做开放式,并将外面的小阳台纳入进来,提高使用面积。
2.、重新定位南边小卧室结构,并向客厅、过道延伸,这样一来解决了过道的狭长,也让使用面积分配更加合理了。
3、调整主卧、主卫的门洞位置,在优化空间动线的情况下,解决主卫门对着床的尴尬。
4、北卧室同样做门洞位置调整处理,以提高客卫的使用面积。
入户

当南边小卧室结构重新调整,并采用格栅移门之后,立马就解决了原过道的狭长,并且还将过道的面积给充分利用了起来。同时,大面积的原木材质运用,也为空间奠定了日式小清新的基调,从而让居住空间充满治愈气息。

入户墙面以灰色的艺术漆为主,既可以与空间基调融为一体,也在静谧的氛围中,凸显出了一抹禅意。而鞋柜则是以悬挂的方式,设计在了入户门旁边,解决了日常的收纳需求。
电视背景墙同样采用了原木来处理,考虑到次卧门洞在这里,所以采用整体外凸的方式设计造型,不仅让电视机实现了内嵌,还让次卧门实现了隐形。同时,也加深了空间层次。
客厅

沙发背景墙设计非常巧妙,左为采用格栅来做隔断,不仅丰富了视觉,也和过道处的格栅移门做到了对称。而给顶部造型侧面安装上木饰面,也起到了拉伸层次的作用。

为了让客厅有一个更好的隔音隔热效果,阳台并没有做开放式设计,不过白色窗纱配置,却也为空间增添了一抹飘逸。再搭配上灰色沙发,整个空间骨子里都透着一抹安逸与舒适。

客厅看向餐厅视角,过道墙面包上与地板一样颜色的木板,可以让空间更加统一。当然,像这种减少留白的处理方式,不仅起到了丰富空间的作用,还让空间动线有了一定的延伸性。
餐厅

餐厅区域非常方正,所以配置一张原木圆桌,不仅保证了视觉比例,还让空间做到了雅俗有度,从而尽显居住者的气质。

厨房

厨房算是家里的一个重点设计,一是屋主对厨房的需求率比较高,二是原空间非常紧凑。因此,在布局改造上,将外面的生活阳台纳入进来,也有效缓解了空间压力。同时,整面墙的高柜设计,也让冰箱、微波炉等电器实现了内嵌。这样在保证空间工整性的前提下,也丰富了功能性。

功能间

南边小卧室重新规划之后,是以功能间来定位的。比如将中间区域整体抬高,就让屋主有了一块冥想、放空之地。再比如侧面整面墙的书架设计,就带来了大量的收纳功能。当然,外面阳台临窗设计的隔板,也延伸出了一块办公区。

衣帽间

由于功能间向过道扩大了,所以利用过道的空间来设计衣柜,不仅做到了合理化布局,还为主卧延伸出了一个衣帽间,从而解决了大量储物收纳的需求。
主卧室

功能间看向主卧视角,为了让空间看起来更加工整,以及为了提高主卧的私密性,采用与柜体颜色一样的材质来定制木门,既起到了拉伸空间的作用,也实现了隐形门设计。
主卫生间

主卫以灰色调来定位,看似有一点深沉,但搭配上暖色的灯光后,却也很好地做到了平衡。而在空间布局上,也融合了浴缸、淋浴等功能,最大化地提高生活舒适度。

客卫生间

客卫最大的亮点设计,应该就是淋浴间的壁龛设计了,看似占用了很多空间,但实际上却是利用死角空间来设计的,所以对原空间体验并没有丝毫的影响。
次卧室

次卧是为父母预留的房间,整体以墨绿色为基调,看起来既复古又静谧。而为了提高生活的便捷性,次卧里的卫生间也正常保留了下来。
纵观整个案例,最值得借鉴的还是空间布局思路,既巧妙又让空间面积合理化了。不知道你们家的过道,都是怎么处理的呢?
图源:积目创想
原创文章,作者:YYQDNC,如若转载,请注明出处:https://www.beidanyezhu.com/a/97408.html
微信扫一扫