如果说拥有一套房子是许多人的梦想的话,那么拥有一套别墅大概是所有人的梦想,住在开阔的家里,享受曼妙的生活,这样的惬意,想想就觉得愉悦不已。
等到买别墅了,要学南京@伍先生的装修,220㎡轻奢混搭风,入户的第一刻,就被迷住了。

▼ 设计理念
本案坐落南京,屋主@伍先生是一位公司总裁,在自己别墅装修上,他不希望它界定在一个风格中,更希望别墅风格能和家人的审美融为一体。
因此在别墅设计中,以混搭风为主,考量了每个家人的喜好。没想到装修后的效果,却显得时尚又高级,一起随我来看看。

▼负一层休闲区
女主人喜欢瑜伽,更渴望自然之调。因此在负一层的休闲区设计之中,设计师规划了一个私密的休闲区,这里既是一个可以喝茶看花草的地方, 又是属于女主人练习瑜伽的地方。
席地而坐,放慢呼吸,随着植物的灵动感,练习瑜伽,这样的空间氛围,静谧而又舒适。

而天井上方的日光缓缓洒落在休闲区内,在这里可以安静地生活,在瑜伽动作的呼吸之间,放松自我。

▼客厅
在客厅设计之中,@伍先生更希望高挑空的格局,但相比于奢侈开阔的客厅,女主人和儿女们更希望温馨舒适的客厅。
因此在讨论之后,本案客厅舍弃了高挑空的格局设计,转而以平和稳重的传统客厅为主。只是在你点缀上,融合了岩石板的灰色,再搭配银杏黄的点缀,整个客厅空间温润曼妙,犹如岁月静好的模样。

相比于气派庄重的风格,这一家人更希望客厅日常更为舒适的自在,因此在风格设计上,以欧式的轻奢,再加上北欧风的素雅,最后再融汇了大理石元素,让厅堂之间,处处都展现着曼妙温馨的日常。


▼无主灯
在岩石灰的背景墙上,银杏叶成排成列,组成了一派飞落的模样,颇具一派意境之美,叫人心生愉悦感。
并且为了沿袭这一份意境感,夫妻二人决定摒弃“水晶吊灯”,转而以无主灯式的设计,让空间更显简约美,而射灯式的采光设计,也显得更为干净清爽。

▼餐厨
从客厅走进餐厨区域,可以从轻奢之美,转向另一种淡雅之美。餐厅与厨房被布置在一个区域,并且考虑到中式烹饪,餐厨之间,以一道玻璃推拉门进行隔断。
同时餐厨区域的设计,沿袭了客厅的灰调,在墙纸和配色上显得更为混搭,比如湖蓝色的层次墙纸,以及一组大理石隔断,都让餐厅更显高级感。

▼餐厅
在餐厅的设计之中,除了日常温情感的营造之外,设计师还融入了一丝艺术氛围,比如充满抽象意蕴和挂画,还有水晶吊灯的点缀。
看似毫无关联的混搭点缀,却让餐厅更有一派别墅的气派风范。

▼门厅
在门厅的设计之中,则显露一派小家碧玉的气质之感。一侧设置了入户玄关鞋柜,另一侧则是属于老人房的储物柜。
值得一提的是,为了方便家里父母的生活,老人房被设置在了一层空间,与后院进行了连通设计,让家里的父母生活日常更显惬意舒适。

▼休闲厅
除了客厅空间的设计,设计师还加入了一组休闲厅空间设计,一组藏蓝色的沙发+欧式风的挂画,还有原木风的地板,让整个空间散发着恰到好处的温馨感。

而休闲厅的另一侧,则加入了一组波西米亚风的“墙挂”,藏蓝色的纹样,还有从天花板上垂落而下的白纱。
让整个休闲区散发着恬淡温柔的气韵,这里也可以充当女主人练习瑜伽的场所。

▼主卧
步入主卧空间之中,可见一派典雅精致之感,因为夫妻二人更希望自己的卧室舒适感十足,因此取消了吊灯设计。
只以射灯来采光,流动的光线犹如星辰一般,点点星光熠熠,让日常居住氛围更显宜人之美。


主卧靠窗的位置,还打造了一个休闲区域+梳妆台,光线柔和温暖,让女主人每天都可以梳妆打扮。

▼女儿房
女儿房的设计之中,则显露了一派少女的梦幻感,以欧式大床+墙纸+梳妆台为主题的空间,满足少女对“公主房”的一切幻想。
甚至靠窗位置还加入了一组储物式的飘窗设计,显得梦幻又美好。

▼过道
即便是小小的过道空间,都经由巧思设计,一幅黑白风的挂画,还有金属感十足的案几,以及相框和花朵的点缀,让家每一个细节,都拥有美感。

▼平面设计图

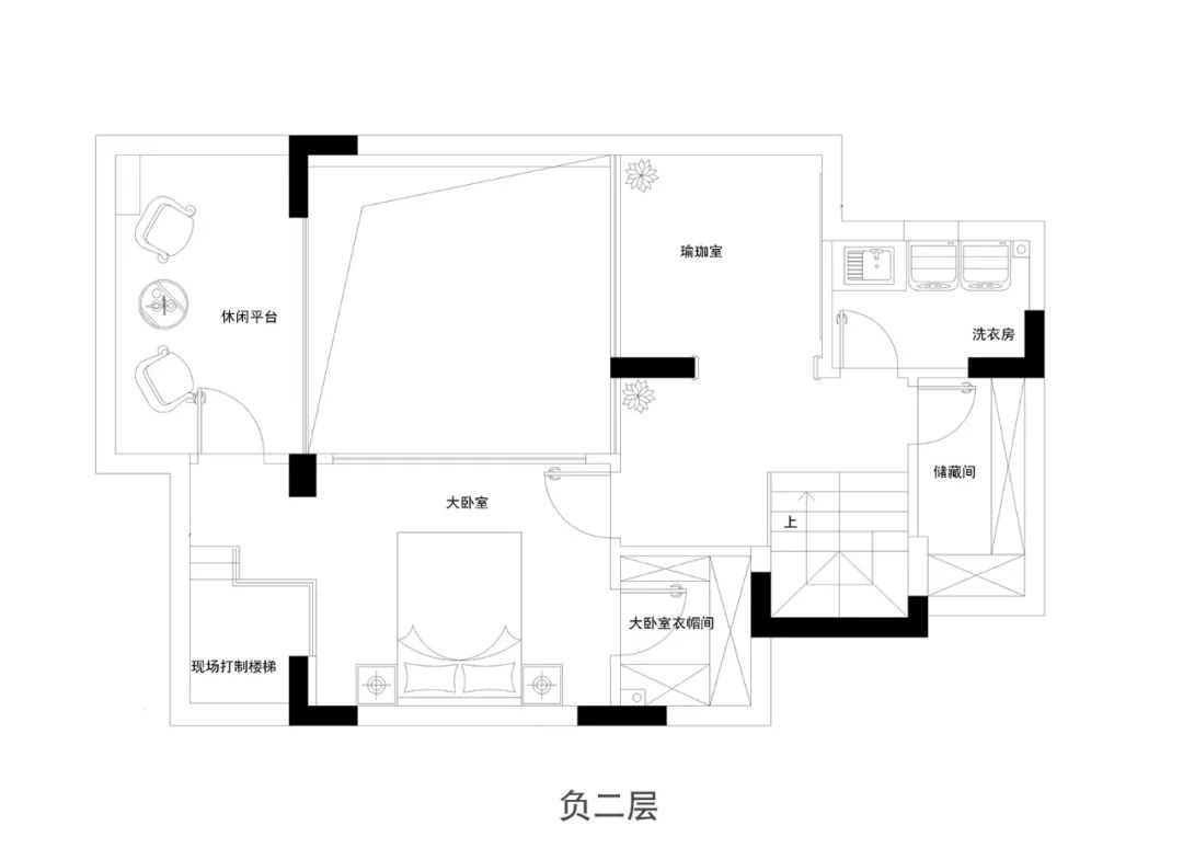
别墅-负二层

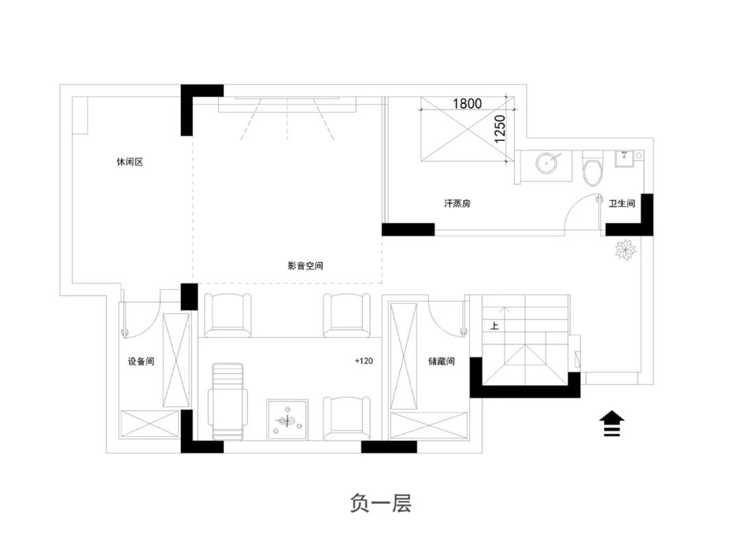
别墅-负一层

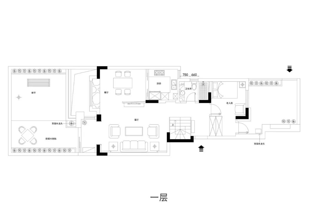
别墅-一层

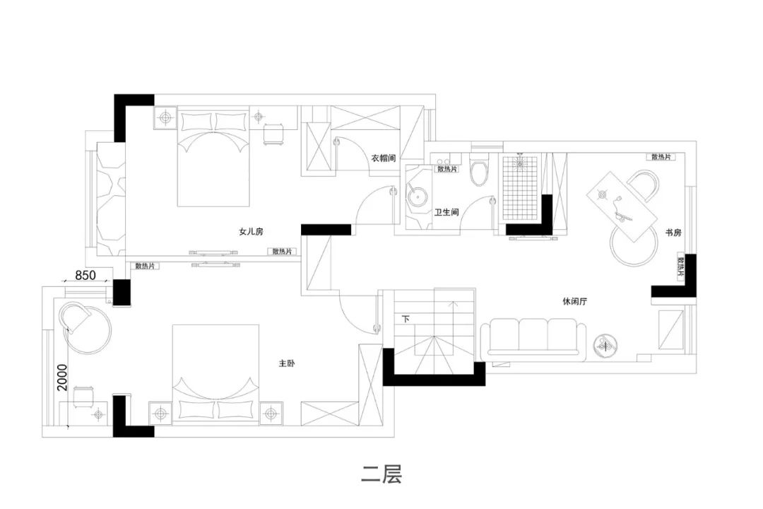
别墅-二层
原创文章,作者:SQGWOD,如若转载,请注明出处:https://www.beidanyezhu.com/a/98501.html
微信扫一扫