在某个下午,接到了一个电话,是一位阿姨打过来的,问是不是在天津电视台家居大变身节目里的特邀设计师,我说是,她说太好了,终于找到了你们了。同一时刻,便收到了节目负责人的微信,告诉我有一位观众打电话到电视台,点名要找思量空间团队,让我联系一下。于是,思量空间团队,便和这位陌生的阿姨产生了交集,我们相约在思量的工作室,思量团队和阿姨的缘分就这样开始了。
在这里非常感谢天津家居大变身栏目组对思量团队的支持与肯定,让这个装修故事有了开始。
本案的业主是一对60+的老夫妇,而在装修设计上却也有独到的见解。阿姨和叔叔希望房子能够时尚前卫,因为房子也有20年的房龄了,整体都很破旧。全部拆除翻新。整体风格要黑白灰现代简约风。能遇到这样思想前卫的叔叔阿姨我们也是很开心,方案一拍即合,经过设计团队与施工团队对项目的配合,终于效果落地!
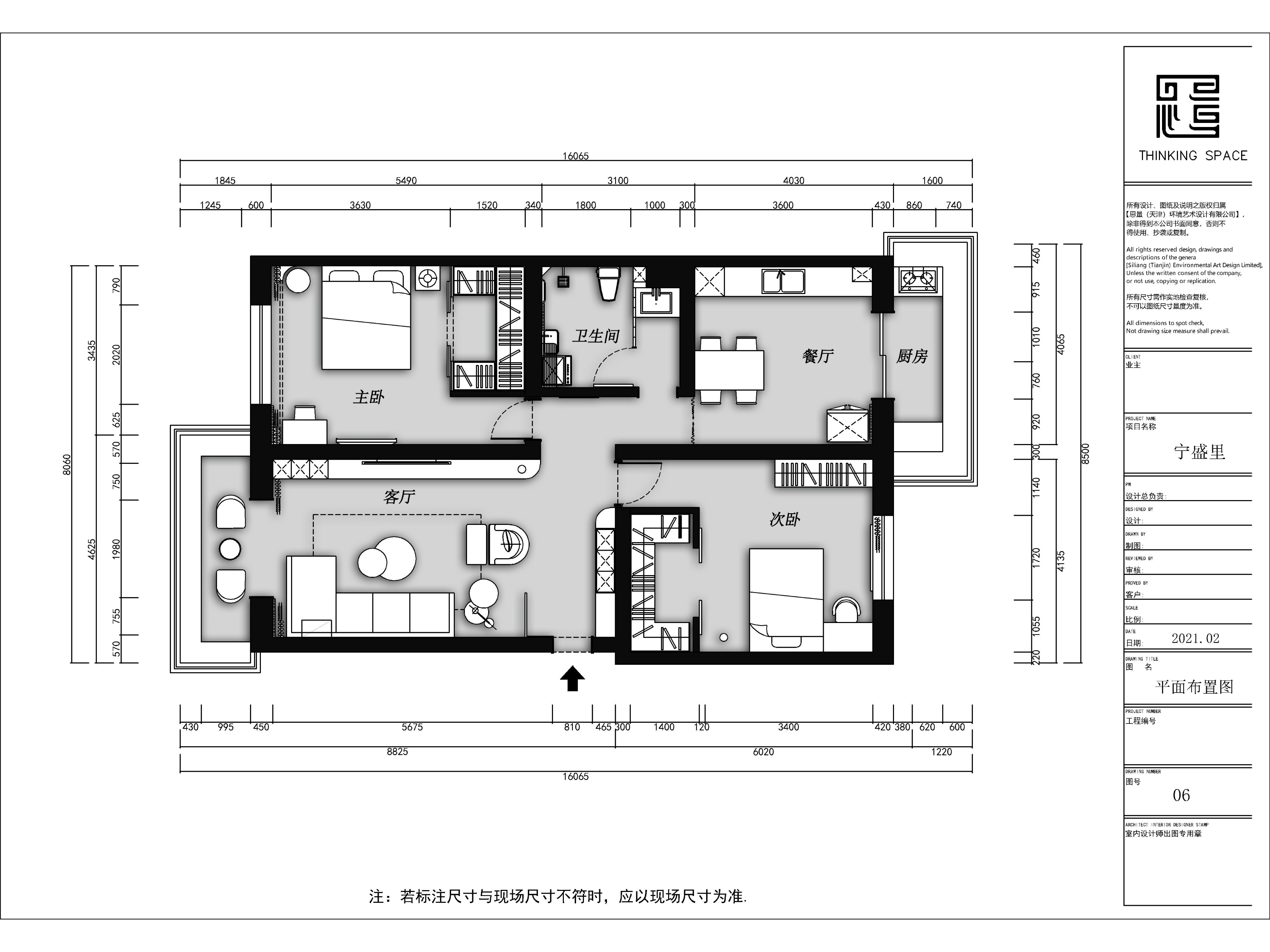
户型图:

原始户型 1:需要解决厨房和餐厅规划,厨房的油烟问题 2:卫生间干湿分区的设计 3:两个卧室想要衣帽间

户型改造 1:做封闭式厨房 2:餐厅和西厨岛台成一个空间 3:卫生间做干湿分区 4:两个卧室衣帽间
玄关:



1.入户玄关柜,鞋柜与悬挂的衣柜做分区,并预留出卡座空间,让功能与色块协调统一,一块长虹玻璃屏风,划分入户玄关区与沙发区,并提升了隐私性
2.圆柱形的射灯,点光源做局部重点照明。
客厅:
将空间想象成是整个体块,根据空间的使用功能划分色块,并规划功能区,影视墙区域的灰,沙发区域的白,墙面背景色的黑。



利用颜色划分空间的功能区,以黑白灰色系布局整个空间,地面大面积的水泥灰色瓷砖,墙面黑色无缝壁布,作为空间里的背景色;影视墙的灰色亮光岩板,成为空间里的提亮板。


在硬装上利用色块与线条,构成空间里的色系体块,勾勒划分功能区,客厅地面选用瓷砖,很喜欢这种很有自然感的仿水泥纹理的瓷砖,既有工业风的粗犷又有自然随性的艺术感。



灯光设计上,采用了点光源的设计方式,原房屋保留了原顶面,保证层高,选取特定的点位,安装圆柱形的射灯,作为局部的重点照明,营造氛围感。


餐厅:
推拉玻璃移门,作为中式厨房的分隔,可以阻挡油烟。西厨岛台和餐厅规划到一个空间,方便就餐。

整体颜色依然采用黑白色系,与整体的色彩达到统一。餐桌背景墙用了手工砖满铺,使空间有了立体的层次感。


墙面一盏圆形的壁灯,与小吊灯呼应。在灯光设计上,选用了磁吸明装轨道灯,这样可以随意增加灯光模块。厨房的地砖与客厅地砖一致,满铺的效果让空间整体性比较好。


厨房:
将厨房的抽油烟机煤气罩外置于厨房阳台,推拉玻璃格子移门阻挡炒菜油烟。拆除掉原来的老房子的窗户,重新做了断桥铝窗,并将窗台做飘窗,覆盖石材台面,作为厨房操作台来使用。


卧室
主卧室的孔雀蓝色的壁纸,半圆弧的床头造型,给卧室空间增加一份静怡,用玻璃隔断规划出衣帽间,增加储物。




次卧
次卧选用了淡蓝色的壁布做背景,床是从老房子留下来的,放在这淡蓝色的背景前,正合适!



卫生间:
卫生间利用长虹玻璃隔断做分隔,形成干湿分区的空间。瓷砖依然用了地砖同款瓷砖上墙满铺,打上灯光,空间沉稳神秘感且具有隐私感。


效果图设计:



前后对比图:
装修前后对比图,老房改造之后,房间大变样!可以居住十几年二十几年的房子,一定按照自己喜欢的来,实现个性化家居
#装修设计





原创文章,作者:OHXULH,如若转载,请注明出处:https://www.beidanyezhu.com/a/98810.html
微信扫一扫