现在买一套房子十分的不容易,所以能够非常幸运地买到一套心仪的房子的话,我想很多人等不到交付的时候,就已经开开心心的开始计划要如何装修房子了吧。
大多数人在这个时候都会选择在网上寻找一些装修的案例,这样不仅能够降低踩坑的几率,而且也能够方便自己在交房以后装修出一个自己喜欢的家。
俗话说得好,厨房和卫生间是装修中一个比较重要的一部分,“金厨银卫”就能诠释这一点。

本期我要介绍的这个案例,房子套内面积57㎡,业主是一位50岁的独居阿姨。
阿姨的家不仅厨房十分的简约时尚,最关键的就是卫生间,宛如身处绿野仙踪之中,装修出来的效果令人非常羡慕。
装修前的户型图

整套房子的户型咋一看就像一把菜刀似的,真别说,这户型还挺别致。装修前的户型在区域划分上,看起来是比较固定的,但是这不代表不能够进行整改,所以让我们一起来看看装修后的户型图吧!
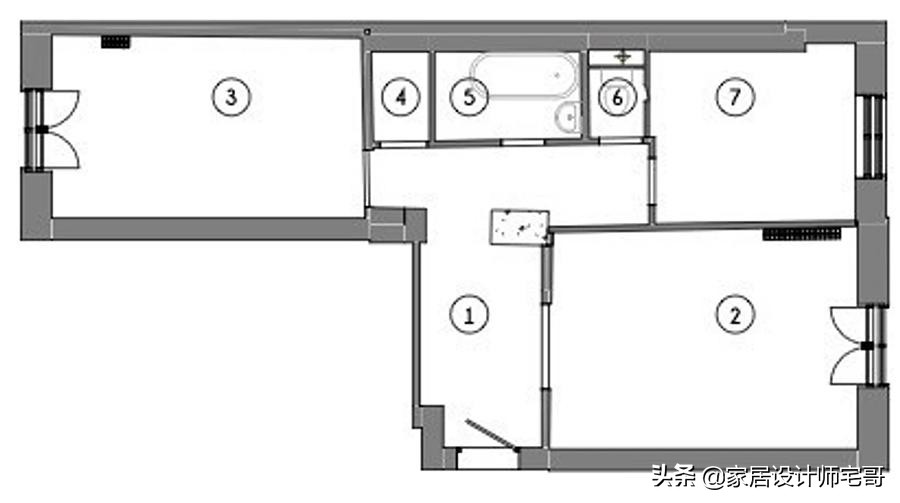
装修后的户型图

前面做对比的话,可以明显地看出来,很多内墙在装修的时候选择了拆掉,尤其是在厨房和卫生间这一块,在布局的整改上比较明显,但是整改以后住起来反而更加的舒服。
玄关

玄关的空间不是很大,整套房子的木板主要以木质地板为主,但是在玄关处这块不算大的地板上,贴了一层贴纸,这样看起来不仅更加的美观,而且有很强的防滑性。
因为一般下雨天地面都比较潮湿,如果家里有老人或者小孩的话,很有可能会摔倒,但是地板贴就会减轻这种情况。
左边的墙壁上安置着几个用来挂衣服的钩子,下面则放置着一个板凳,可以坐在上面更换鞋子。
右边的墙壁上安置着一个比较小的置物柜,里面可以用来放置物品。上面是一面壁挂式的镜子,出门之前可以照照镜子整理仪容,十分的便利。

距离玄关不远的地方,放置着一个置物架,置物架分为了三层,每一层都可以用来放置物品。
最上面放置着几幅画,还有一些装饰品,为室内增添了艺术气息。
客厅

从玄关到客厅的进门处的旁边利用墙体,设计了一个凹位,里面放置着一个置物架,上面摆放着很多的书籍和装饰物,非常高效地利用了空间。

客厅内放置着一个双人沙发,沙发整体为淡黄色,算上是一个比较鲜艳的颜色,使得客厅整体显得不那么单调。
沙发旁边放置着一个置物柜,里面可以用来放置物品,置物柜上摆放着一幅以及其他的装饰物,增添了艺术气息。
沙发下面铺着一层地垫,不仅起到防滑的作用,而且更加方便进行清洁。

双人沙发对面放置着一个通体白色的懒人沙发,坐在上面应该会是一件非常享受的事情,后面有一个颜色十分朴素的屏风,增添了美观性。
沙发旁边的墙壁上安置着一个竖着的暖气片,在冬天的时候,能够为室内进行保暖。
客厅与厨房、餐厅之间摆放了两扇藤编的屏风作为隔断,看上去高级感十足。
厨房、餐厅

厨房一眼给人的感觉就是极简中透露着时尚,橱柜是L形式的,能够用来放置物品的空间比较充足。
大理石灶台和水磨石瓷砖搭配,上面有一些色彩鲜艳的斑斑点点,看起来十分的美观,不单调。
橱柜下面安置着一个嵌入式的微波炉,可以对食物进行加热,只用几分钟就可以吃上热腾腾的饭菜。
餐桌餐椅就放置在橱柜的旁边,二者都是木制的,看起来非常的质朴,餐桌上面放置着一盆鲜花,为厨房内增添了美观性。
卧室

卧室里安置着一个双人床,床的旁边安置着一个通体白色的大衣柜,里面可以用来放置衣物,床尾的墙壁上还有一个壁挂式的镜子,可以用来梳妆打扮。

一边的床头处放置着一个柜子,柜子里可以用来置物,上面放着一幅画,为卧室内增添了艺术气息。
旁边还安置着一个暖气片,可以使卧室内更加的暖和。

床上面放了很多的颜色大小不同的抱枕,坐在床上抱着这些抱枕,或者是靠在上面,肯定会非常的舒服。
洗衣房

卫生间的旁边有一个小小的独立空间,里面放置着一个洗衣机,这是对卫生间进行了干湿分离。
洗衣机和卫生间是分开的,上方还有一个壁挂式的柜子,可以用来置物。
卫生间

浴室柜的台盆是一体式的,浴室柜配置了高脚的金属支架,比较方便进行清洁。

全屋最重点的设计就是浴缸,浴缸周围的墙壁是晶莹的绿色,旁边还放置着一些绿植,宛如身处大自然一般,给人极致的享受。

浴缸旁圆弧形设计的墙面上还有一个壁龛,可以收纳放置洗浴用品,随手就可以拿到,非常方便。
总结:在装修房子的时候,如果能把厨房和卫生间装修得十分美观舒适的话,那对于居住者而言,简直就是一种极致的享受。
对于这个50岁的阿姨来说,每天回家后自己下厨烹饪美食,睡前再美美地泡上一个澡,就足以消除任何压力和疲惫。
原创文章,作者:PIUYRA,如若转载,请注明出处:https://www.beidanyezhu.com/a/99506.html
微信扫一扫