人们说,上有天堂,下有苏杭,当越来越多的年轻人逃离北上广成为大势所趋,杭州就成了人们心中的理想天堂。
这里不仅仅是互联网电商的中心、网红的孵化中心,并且有着独特的吸引人的美景。
相对于北上广深来说,这里不仅节奏相对缓慢,而且比其他的中小城市又有更多的发展机会,所以才有这么多年轻人选择来到杭州发展。

本期家装案例给大家介绍的就是一个30岁的北方姑娘在杭州的家。
小姐姐大学是学传媒的,毕业之后考虑到北方的传媒经济发展的不是特别好,所以便毅然决然地选择了杭州。
小姐姐算是搭成了电商的红利期,加上她自己的努力,和朋友一起创业打拼。
虽然现在事业还处于逐渐地稳定扩大阶段,但是现在的她已经很有底气了,在杭州买下了一个属于自己的小公寓,过着高品质的生活,这大概是许许多多年轻女孩子梦寐以求的人生了吧!
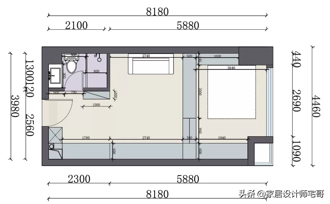
平面布置图

整个家的套内面积是35平方米,主体结构呈规则的长方形结构。

▲3D立体图
在小姐姐装修的时候,决定将客厅、卧室、餐厅以及厨房区域打通,设计榻榻米卧室,用半墙隔断隔开卧室和客厅,这样能够使小的空间看起来更加开阔,居住起来更加舒服。

小姐姐最喜欢的便是不同层次的蓝色,所以整个家在白色基底上面用了许多蓝色来点缀,显得十分高级,且治愈通体式的白色运用,让整个小家也格外的大气且敞亮。
这个家不大,但是却设计得格外实用且温馨舒服,第一眼看上去便是一个典型的都市白领的家,干干净净,富含着商务、现代时尚风。
玄关

整个玄关设计的还是很敞亮的,左侧是卫生间的门以及半高柜鞋柜,右边是厨房,很好地利用了空间。

白色和深蓝色的背景墙,拼接看起来格外的大气。
卫生间的门也是运用磨砂条纹质感,再加黑色的边框作为点缀,简简单单却很大气。
靠着外面的墙还摆放了一个半高柜,白色的柜子可以收纳各种各样的杂物以及鞋子,上面再用一些创意品和图片作为点缀,更加有一种丰富性的效果。
卫生间

卫生间的空间不大,却很时尚,最有创意的部分便是浴室柜区域。
深绿色的砖纹背景墙上面放置着圆形加LED光源的镜子,当光源打开之后,便营造出一圈绿色的光圈,看起来格外的高级。

整个洗手池是大理石质感的,整整齐齐地摆放着各种各样的洗漱用品,干净又整洁。
洗手池下面嵌入了洗衣机和脏衣篮,值得一提的是,洗衣机是带烘干功能的,洗衣烘干一步到位,既节省空间,又方便使用。

角落里安装的是智能马桶,马桶上方墙面上还安装了一个毛巾架,马桶右侧是用玻璃隔出的淋浴房,干湿分离,干净卫生。
厨房

厨房区域位于入户门右侧,白色和灰棕色的色彩搭配看起来很有质感,橱柜门把手也是精致又小巧。
各式各样的柜子设计创意巧妙又十分实用。
小姐姐是一个十分有生活精致感和品味感的人,所以她买的各种各样的小茶杯和餐具也都是极其可爱又美观的,显得整个厨房区域更加干净了。
不大的厨房区域也被小姐姐收拾得整整齐齐,利利索索,这样也能够给人营造一种很好的心情。

在电视柜和厨房中间,微波炉和冰箱很好地嵌入进去,既方便使用,又可以作为两个功能区的隔断,可以说是一种十分巧妙的设计。
整面墙的柜子极大地增加了家里的收纳空间,对于这种三四十平的小户型来说,大家完全可以借鉴这种设计。
客厅

客厅区在中间位置,灰色的沙发搭配一些创意抱枕,显得十分文艺,而黑色金属质感的小茶几搭配一些花束,小巧又精致。

沙发背景墙则是用几何的色彩拼接,粉色、白色、蓝色、灰色相得益彰,显得既温馨又营造出一种很丰富的效果,增加空间时尚度。

同时这个小沙发也是一张小床,撑起来便可以睡在这里,平时家里偶尔有客人留宿的时候,可以多出一个卧室,方便实用。

整墙的电视柜和厨房的橱柜吊柜做了一体化的设计,中间嵌入式的放了电视机。
电视柜打造了各种各样的储物空间,开放式的和封闭式的储物空间,设计得干净又整洁,可以很好地满足整个小空间的收纳及储物需求。
餐厅&工作区

在客厅和卧室中间设计了一个半高的柜子,台面既是小姐姐的工作就餐区,同时也是巧妙地做了一个隔断,整个设计可以说是十分实用。

木质色再加上一些绿植的点缀,清新又自然,上面还放置着各种各样的创意品,温馨又舒服。
卧室

卧室是榻榻米的设计,双人床垫直接铺在了榻榻米上,床上用品是白色加一些蓝色的点缀,干干净净。
背景墙同样是不同色度的蓝色拼接,高级又美观。

床头柜上还可以放置各种各样的创意品和画到了很好的点缀效果。

同时这张床还可以收纳起来隐藏到下面,另外可以抽出来一张正方形的小桌子,平时没事儿的时候或者家里来朋友,便可以坐在这里简单的休息、闲聊。
大的落地窗也是整个区看起来格外的舒服,窗帘也是蓝色的拼接,和整个主体色调保持协调和一致。

床尾部分是一组很大的白色衣柜,柜门上用了黑色的线条把手设计,简约又大气,收纳能力也是极强的。
结语:大家喜欢这个小姐姐高级现代又舒适实用的小家吗?
反正宅哥是特别喜欢这样的一种设计,现在有很多三四十平、四五十平的这种小户型的家,大家就可以参考一下这个案例的设计。
小姐姐的家不管是从色彩的搭配还是空间结构的设计,以及实用性的设计上都可以做一个很好的参考,相信大家会有不一样的收获~
原创文章,作者:WIXRCA,如若转载,请注明出处:https://www.beidanyezhu.com/a/99591.html
微信扫一扫