我们每个人对于家装设计都有自己的理解,喜欢的风格、样式和颜色都不一样,所以也才造就了形形色色的家装设计效果。
很多人可能对于某一颜色比较偏爱,就想方设法地在自己的家装设计当中体现,追求一种统一和整体性的效果。
在家装设计中,你喜欢融入绿色元素嘛?绿色是代表自然的一种颜色,代表着生机和希望,看到这个颜色便有一种心旷神怡的感觉。

家装设计当中可以融入的颜色多种多样,但是可能没有一种颜色能比绿色给人的感觉更加舒适了吧~
本期家装案例给大家分享的是一36岁大龄单身女孩的家,小姐姐从事园林设计工作,所以非常喜欢大自然,尤其偏爱绿色。
去年小姐姐刚买了一套新房,在装修的时候,小姐姐决定房子的整体色彩搭配上以绿色为主,装修出来后不仅在视觉上看着就很舒适,而且身心也让人感觉极其的放松。
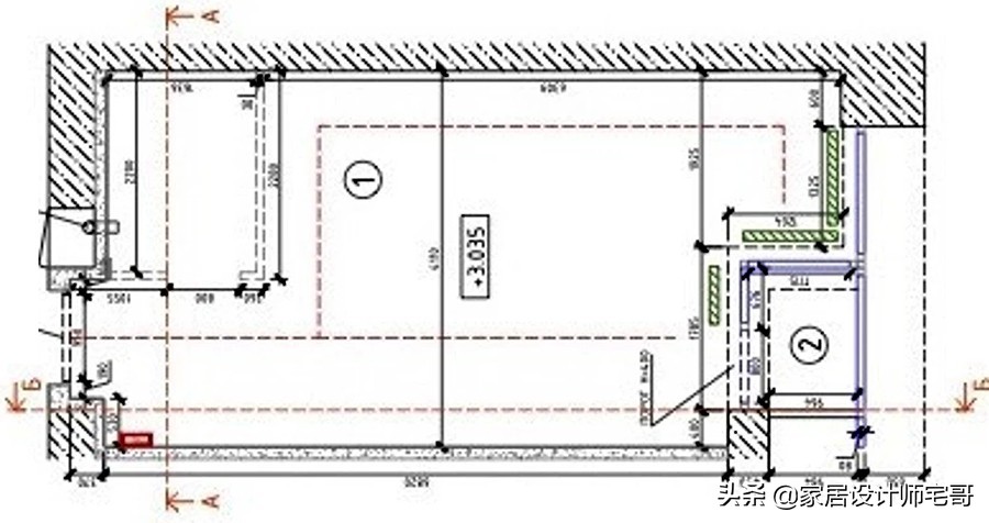
装修前的户型图

整套房子的面积不算大,只有32㎡,房子的户型比较接近于一个长方形,户型图上的右上角以及左下角的位置是两个比较独立的空间,其他的布局在装修前的户型图上并没有具体划分出来。
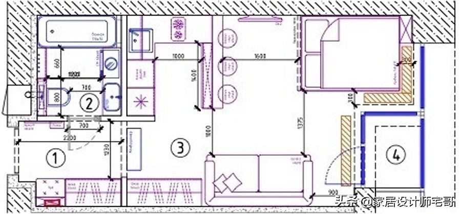
装修后的户型图

在设计的时候,为了能够满足小姐姐的要求,设计师也是费了一番心血,图上的空间布局一目了然。
因为空间比较有限,所以在装修的时候没有将卧室设计成一个完全独立的空间,在卧室右下角的位置就是阳台。
其实图上看似各个空间的布局都比较紧密,但实际上装修出来以后,因为设计得巧妙,不但没有浪费一丝一毫的空间,而且也一点都不显得拥挤。
玄关

玄关是长廊式的,空间比较宽敞,玄关的墙壁以暖色调为主,与室内绿色的墙壁连接在一起,更加显得贴近大自然。
玄关的地板是由一块块正方形瓷砖组成,并且每一块瓷砖上都有着同样的花纹,这样看起来不但不会显得花里胡哨,反而使得玄关显得不那么单调。

玄关的右手边是一面推拉式的壁橱,不仅在视觉上更加的美观整洁,而且更加的节省空间。

打开门以后里面是一个换鞋凳,换鞋凳下面是两个可以打开的柜子,可以用来当鞋柜使用。
厨房&餐厅

穿过玄关以后,左手边就是厨房,厨房的整体色彩搭配以绿色和米白色为主,在视觉上更加给人一种心旷神怡的感觉。

开放式的厨房会更加的节省空间,并且对于小户型而言,这种类型的厨房一般是最好的选择。
灶台后面的墙壁上贴着一层墙纸,上面画着一个很多空间的置物架,置物架上摆满了饮品,这些图案十分的惟妙惟肖。
灶台下方的橱柜以及上方的壁挂式置物柜,看起来空间十分的充足,可以放置餐具,厨具等等。
微波炉以及烤箱是嵌入式的,这样不仅在视觉上更加的美观,而且非常的节省空间,同时也充满了现代感。

餐桌是吧台式的,与灶台连接在一起,这样十分的节省空间,餐桌上方还放着一些蔬菜样式的装饰品,看起来非常的有生活氛围。
客厅

客厅的整体搭配及装修风格给人一种秋日的温馨感,有一种岁月静好的感觉。
沙发后面的背景墙上挂着一副画,画上的图案比较模糊,有一种年代感,给客厅增添了艺术气息。
沙发旁边放着一盆比较大的绿植,不仅可以让室内的空气更加清新,而且也可以增加空气的湿度。

沙发面前是两个一高一矮的小桌子,造型十分的独特,上面放着书籍,还有用来装饰的几盆盆栽。

沙发下面铺着一层厚厚的地毯,小姐姐平常就喜欢赤着脚踩在地毯上,不仅能够起到防滑的效果,而且踩在上面脚底也不会凉。
卧室

卧室与厨房、餐厅之间用一扇半透明的玻璃作为阻隔,这样就不会影响到客厅和餐厅的采光度。
卧室的墙壁是奶茶色的,这样显得卧室更加的温馨,墙壁上还贴着一幅画,起到了点缀的作用。

卧室旁边就是一个不算大的阳台,阳台的地板比室内要高出一截,这样使得空间更加的分明。
阳台就在卧室与客厅的旁边,这样大大增加了室内的采光度。
卫生间

其实卫生间虽然是比较私密的空间,但实际上却是装修的一大重点,设计师在装修的时候绝对是费了一番功夫的。
墙壁米色的砖块与绿色的砖块分层鲜明,看起来极其的具有设计感。

洗衣机被安置在浴柜的里面,这样更加的节省空间,洗手池旁边还放了一个绿植作为装饰。
卫生间的墙壁更是算得上是一个很别致的设计,色彩分明的墙壁,也更显得时尚高级和有层次。
总结:这个小姐姐的家虽然不算大,但是因为整体的色彩搭配比较贴近自然,不仅在视觉上给人极高的享受,在感观上也令人心旷神怡,让人仿佛置身于大自然当中,超级舒服呀!你喜欢这样的设计吗?快快学习起来吧~
原创文章,作者:AHETHX,如若转载,请注明出处:https://www.beidanyezhu.com/a/93830.html
微信扫一扫