来自网友的困惑:
家里的房子从客厅到餐厅有个2米左右宽的走廊,一直空荡荡的,墙面一面用的墙纸,一面用的木饰面,挂了点装饰。这样的一个走廊如何装饰设计好呢,才不会空荡荡的?如图:
走廊其实还真不少见,很多都是为了分离动静空间,又或者是作为功能区的过渡地带使用。
小户型的走廊在1-3平,中大户型走廊甚至能达到6-8平,再想想房价,还真不是轻易能浪费的!
走廊的设计方法有很多,可以收藏参考!
1.非承重墙——拆墙改造
如果你家走廊的墙是非承重墙,如果它非常碍事,不妨拆了它,拆完将走廊并入其他空间。
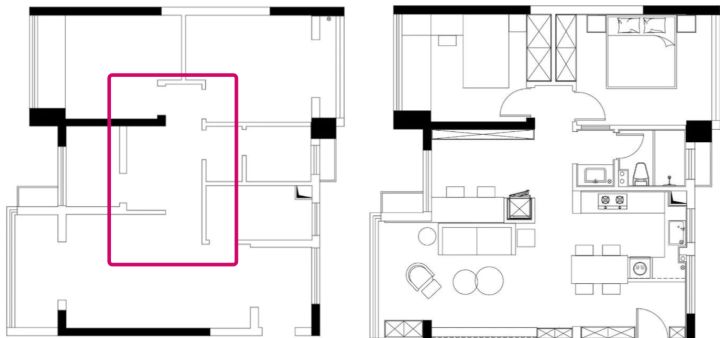
比如拆掉储藏室和厨房之间的非承重墙,增加客厅与餐厅的使用面积,让整个空间更加连贯,动线也得到了优化,积累走廊没有了,行走也更加舒适。
原本走廊太长,小面积的卫生间和多功能房利用率不高,于是将布局重新规划,调整门洞的位置,洗手台外移,一部分走廊并入主卧和多功能房,增加收纳空间。
走廊改造一定要优先考虑空间的实用性和动线的合理性,不能浪费走廊面积,也不能影响日常行走。
2.承重墙——
如果你家走廊是承重墙,那你肯定是不能动的,设计优化才是主要方法。
①用画装点
直接挂上装饰画,增加空间立体感,可在视觉上削弱走廊的长度,非常方便省事。
挂画风格要与整体装修风格相符,才会有画龙点睛的效果。
一般的走廊都存在采光差的问题,所以照明很重要!这里建议用筒灯或灯带代替主灯,打造光线柔和的走廊,还能丰富空间的层次感。
②用绿植装点
除了用画点缀走廊,还可以换用绿植点缀,在走廊处放上喜欢的植物,给宁静的空间增添一丝活力,美化了环境也净化了空气。
决定在走廊养大型绿植,那么一定要提前做好防水!
③用黑板漆装点
家里有孩子的,墙面都免不了被涂涂画画,在走廊处刷上黑板漆,给他们一个自由的涂鸦空间,尽情发挥他们的创造力!
④打造阅读区
喜欢阅读的小伙伴,可以将走廊利用起来,在走廊处做上书架,建立一个阅读区也是非常棒的选择!
走廊书架可以子一定程度上解决家里没有独立书房的困扰,营造一个书香满满的家庭氛围。
⑤增加收纳空间
玄关有走廊还挺常见的,一般我们都会做上玄关柜,在不影响行走的同时,增加收纳空间。空间比较狭窄的建议做嵌入式的柜体。
开放式的收纳也不错,进出门取衣服更方便,视觉效果看上去也更轻薄美观,只是可能会有灰尘的问题,需勤打扫!
玄关处的廊道再狭窄一点的话,可以用洞洞板或简单的挂钩做收纳,节省空间,收纳能力也不小。
其他位置的走路做收纳,如果空间足够的话,可以打上顶天立地的收纳柜,利用起来,收纳空间翻倍!
卧室进门有走廊的话,设计成衣帽间是个不错的选择。
走廊可利用的空间还是很大的,不论是装饰还是增加功能,都能为生活带来光彩。
PS:部分图片来源于网络,如有侵权,请联系删除!
原创文章,作者:WBQEPI,如若转载,请注明出处:https://www.beidanyezhu.com/a/94446.html
赞 (0)
夫妻两二次装修(房子二次装修)
上一篇
2025-07-07
莫斯科法式酒类公司办公室设计(办公室欧式装修)
下一篇
2025-07-07

微信扫一扫