持续了「好些年」的装修
「宅家」对我来说是最舒适的娱乐方式,八年来我生活过五个城市,七次租房从小单间到 Loft 公寓,再而和朋友长达两年的套房整租经历,这些「别人的家」却总是有各种各样的不如意,在过去宅家的每一刻里,与这些不适对抗的同时,我都零零散散地勾画着未来属于自己家的样子,所以在买房后,从设计、施工到添置,所有的思考和规划它不是从施工经理拿着礼炮大喊「开工大吉」那一刻开始,而是从好些年前就一点一点成型。
我很喜欢日本料理生活家渡边真纪的一本书《家的样子,你的样子》,我认为家不仅是居所,也是自我审视后的映射。这次装修我花费了很多心思,山本耀司曾在一次访谈中说,「『自己』这个东西是看不见的,撞上一些别的什么,反弹回来,才会了解『自己』。所以,跟很强的东西、可怕的东西、水准很高的东西相碰撞,然后才知道『自己』是什么,这才是自我。」
如果你足够重视家所能带来的愉悦,装修工程就像是一场严峻的战役,和自己打,和设计师打,甚至和施工师傅打,你要在有限的空间、时间和金钱中最大化的实现自己的愿望,但事与愿违也是常有的事儿,往复取舍,拿捏轻重,解决意外,不停面对选择快速判断决策,这件事很辛苦,但每一个新的阶段看向过去时,却总是觉得有趣。
所以我决定把这个过程中一些重要的节点记录下来,希望能给想要装修或者正在装修的你一些帮助和启发。
精力总是有限,而信任是基石
许多人认为装修只是费钱,但最损耗更多的其实是精力,当精力消磨殆尽后,不仅容易做出错误的决定,还会枉费更多的金钱。
越是欠发达的地方,林立着越多形形色色的装修公司,因为信息不对等和问题凸显的延后性,装修几乎是最为暴利和缺德的行业。市面上不乏指导读者如何避坑和讨价还价的「装修宝典」,但我认为与施工方「交战」没有什么诀窍,前期多花点儿心思挑选一个靠谱的合作伙伴,并彼此尊重,这是最省事儿的做法。因为已经有过两次非常遗憾的装修经历,所以筹备装修之初,我就决定不与传统的装修公司合作,尽管它们看起来好像更规范也更便宜。
我合作对象是一个独立设计师,她与装修公司的区别在于自己的主业还是室内设计,有一笔直接且不菲的设计费用,而进入施工期后,设计师的「员工」也只是施工经理,施工经理再自主协调下属的施工工人,类似于工作移交,设计师只负责工程验收、建材采购和支付工人工资。看似复杂,这却有一个好处——利益交结却又责任自负——设计师的责任是作出好的设计,施工经理的责任是实现它。
举个例子,因为事先有沟通过很讨厌突出来的灯具,所以家里几乎所有的顶灯都是嵌入式的,而当地的施工工艺普遍落后,最后的安装非常费劲甚至气走了原本的安装师傅。之后在装门窗、墙砖和柜子的时候都有类似的情况,设计师都和我战线一致的解决问题,而非传统装修公司那般为了业务推进而劝说我忍一忍。

我的设计施工流程
我几乎每天下班都会去一趟工地,也都常和各个工艺师傅聊天,他们都是和我的施工经理合作多年的老搭档,在我临时提出一些改动要求的时候,经理都能很快处理好。而一些我能感知的施工环节,例如水电走线、墙地砖铺设和墙粉涂刷的时候,很明显体会到成品都是要优于「别人家的装修」。

水电开槽
这种合作模式下,我在建材选择上自由度也更高,装修公司因为利益捆绑,很多建材都必须指定,设计师尽管在开工之初就已经给了我一份详尽的工程预算表,但是其中的任何东西我都可以自行调整。

强弱电交接处锡箔纸屏蔽
第一次见面的时候我就和设计师开门见山的介绍自己及合作态度:该花的钱我不吝啬,该赚的钱我也绝不多问,但选材一定要够好,报价也要在我力所能及,我不擅讲价,如果不行那么就是真的不行了。最后我除了执意升级六类日线外,没有对她给出的工程报价啰嗦过一句,也懒得去四处咨询了解比价,从某种意义上来说,我是做好被「占便宜」准备的。
装修是一次买卖,但装修还一次性决定了未来十数年甚至更久的生活质量,所以我与其纠结哪哪儿吃亏,哪哪儿不对劲的时候,更宁愿如果多五百块钱能让新建墙更扎实,多五千块钱可以让施工经理更认真、师傅更细心的话,何尝我才不是一种便宜占尽;再而我作为一个非常的行外人,尽管可以了解到多乐士五合一是目前市面上的优质漆,也可以打探到电线买玉蝶水管上伟星,但是吊顶上的石膏,墙面装饰用的木工板,甚至一根龙骨架一袋平墙干粉乃至它们的施工工艺我都是无力去判断优劣的,正如我最常和设计师说的玩笑话「您才是我的上帝」,我所给予设计师的信任除了信任本身,更是不希望用无知和无谓来挤占自己有限的精力。

地砖及美缝
开工以来不少朋友同事问我装修花了多少钱、靠不靠谱以及是不是有点贵的时候,我都不会正面回答他们,我没法儿也不想去考究自己赚了还是亏了,我只知道直至此刻,所有的支出都尚在我可承受范围,目所能及也都还挺满意。
砸掉不想要的墙
接着我想聊聊拆砌墙,原计划是把它归置到下一篇设计部分,但在构思的时候却认为它更当是一个独立、全局和自由的考量,所以还是放在这里。
很多人在收获新居之前,首先会受制于户型,在设计规划时还要被设计师和别的声音——可能是并不会来同住的父母长辈、还有多年成长积累下来的刻板印象等——左右,所以很容易作出妥协和退让,可在此之前,我们为何不思考自己真实的需求和生活习惯是什么?正如前文所说,装修是一次性买卖,底层结构不搭好,踩在上面的自己只会是未来无数时日的遗憾和沮丧,所以在前期规划布局时,我尽可能地放大自己的需求和喜好,因为我知道往后开始推进时,只会是不断地做减法。
除了繁华城市中的板楼建筑,日本很多住所有一个令人羡慕的特点是它们通常都由屋主自建,所以早期我常看一些日本室内设计的书,因为它们大都是在一个没有边界的框架内去谈「家的设计」,所能传递出的信息也更为自由和自我。
在《设计你的家,就是设计生活》这本书里,作者反复强调一个很重要的观念——「当你不知所措时,不如停下来,整理思绪,认真思考一下自己最初想要的是什么。」作为日本知名建筑设计师的他,对家的设计视点越高,反而越摒弃一些华丽和主流的宏观设计观念,引导读者从个人立场出发去思考。在书的前部分,作者设计了一些问题建议读者自我作答,我精简并融合成了五个简单的小问题,如果你正在筹备装修,不妨也问问自己:

《设计你的家,就是设计生活》中作者建议装修者自问的问题
带着以上问题的答案,再回过头去看自己曾经的想法,是否会意识到尚在雏形的家莫名林立了很多堵墙,有的是房开给你的,有的是旁人给你的,或许更多的那些墙是自己给自己挡住的。
转移注意力也是保持专注
相比中文语境下用以娱乐待客的「客厅」,我更喜欢由英文 Living Room 直译过来的「起居室」——非睡觉时间长期停留的地方。但是相比现在家装设计热门的 LDK(客厅、餐厅和厨房) 一体化,我家的分区更特别些,姑且称之为「L&K&B(起居室、餐厨区和卧室) 三大坨」。

原始户型拆改前后的布局
我是一个宅且孤僻的人,所以我想要的起居室应该是一个综合性的空间,并且不用纠结隔音和隐蔽。
The brain gradually stops registering a sight, sound or feeling if that stimulus remains constant over time. For example, most people are not aware of the sensation of clothing touching their skin. The body becomes “habituated” to the feeling and the stimulus no longer registers in any meaningful way in the brain.
如果这种刺激在一段时间内保持不变,大脑就会逐渐停止对一种视觉、声音或感觉的记录。例如,大多数人都不会意识到衣服接触皮肤的感觉。身体变得 「习惯」了这种感觉,而这种刺激在大脑中不再以任何有意义的方式记录下来。
2011 年的时候《认知》杂志社发表过一篇文章《Brief diversions vastly improve focus, researchers find》:过去很多学者研究一直认为注意力是有限的,会随着时间的推移下降,但这篇文章却指出当我们逐渐表现不佳的时候并非是注意力被消耗,而是在无意识间失去了对这件事的关注;而我们总是在关注一些东西,它和注意力的容量并无太大关系。
我很小的时候就意识到自己有这个问题,彼时自知无法长时间沉浸学习并非是疲倦,就是纯粹的容易走神儿,所以多年来也养成了一个不太被主流讨喜的习惯——不想做就不做了,换个别的待会儿再回来。
拥有一个可以在上面做任何事的「大书桌」是我自小以来的夙愿,所以我堵住了厨房门,在原来餐厅的区域安置了张 2m 长的大书桌和一整面墙的书架,它是起居室也是我在家里最常驻的活动空间。

起居室中融合却又隔离的娱乐和学习(工作)区域
于是和我在执行日常管理的分类一样,起居室被我分成了两个部分:input 和 output,前者有一张舒适的沙发和 75 寸大屏,配置 B&O Stage、Apple TV、全局 Free Network 和 NAS,是我对内信息输入的最舒适区域;相对的 output 区域除了前文介绍的大书桌的满墙书架,我还分布安装了支持无极调光的智能射灯,让我无论是纸笔书本还是电子屏幕都能拥有不同且合理的照明支持。
——当然最重要的是当我不想努力了就可以最短路程的滚一边玩儿去。
一个人也要好好吃饭
从文首应该能猜到,厨房是这个家里最高贵的地儿。
要不是厨房的那几堵墙都是承重墙,而且受限于煤气管道和烟道,我真的想要做一个除卧室以外的全开放活动区域;最终我也只能拆掉与厨房相邻的房间,做了一个半开放式的餐厨区。

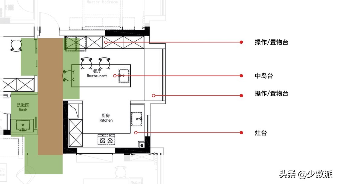
几乎占据了整个餐厨区的大岛台
其实除了功能性改造,我在拆砌墙的时候也考虑了一些视觉上的优化。上图棕色部分是原始户型中的过道,左侧卫生间和次卧,右侧是另一个次卧,终点则是主卧,观感非常的狭长。我内推了卫生间的门,将洗手台开放在外面;同时拓宽了相邻次卧的门,将预留的传统平开门改成了双推拉门;右侧则完全拆掉次卧的隔墙,现在再从起居室朝主卧看过去,原户型的棕色视域扩展到了整个绿色部分,与之带来的也是我对「厨房不该被孤立」的执念。

扩宽客卧室门洞后换上了长虹玻璃门
我在起居室实现了书桌自由,餐厨区则圆满了我「大岛台」的执念。几乎我去过的所有中国家庭的厨房永远是整个空间最逼仄的区域,巴掌大的台面要么挪开砧板搁碗要么擦擦水渍摆上电饭锅开始煮饭,所以当我第一次看到欧美家庭常见的岛台设计后,就深埋心里日日想念。从装修工程真正开始落地的时候,家里就有些东西是在我脑中不断细细碎碎拼凑的,而这个 3m 长的岛台也是我自学 SketchUP 一横一竖勾出来的。

我亲手设计的岛台
无比期待最后组装出来的成品。
不买省钱,或许买了也是省钱
家里另一个不太寻常的改动就是我重组了主卫的功能。
几年前做客朋友家 300+㎡ 的大平层,五个卧室的独立卫生间都配置了标准的浴缸马桶,彼时我突然清楚了自己为什么对很多即使是两室一厅户型都捯饬个主客卫而感到的别扭——即使并没有那么多常驻人口,即使转不过身,也要拼着命弄出两个完整带洗浴功能的卫生间,美其名曰「客人用的卫生间」。

将原来的主卫生间改成了洗衣房和淋浴间
我认为家首先是一个私密的空间,理当充分考虑自我的需求后,在有盈余的前提下再去顾及所谓的亲朋好友做客甚至留宿,我和我的朋友们都是礼貌且自觉的,所以我通常不用太担心卫生和留宿的问题,所以我家里的两个「卫生间」功能都独立不重复。
临近客厅的卫生间则是一个普通厕所配置,不太常见的就是我在马桶旁安装了一个小便斗,这个操作可以算是从源头解决了厕所的卫生问题;而主卧的卫生间我则间隔成淋浴间和洗衣房两个部分,我叠放了两台独立的洗烘机,节省了晾衣服的空间成本(专门浪费一个阳台的地价)也提高了洗衣的效率。中国家庭似乎对烘干机的接受程度还不是很高,这里推荐浪潮工作室的一篇推送《我要吹爆烘干机,南方人的大救星》,我就不再赘述衣物烘干的优势了。不过我也考虑到了部分材质的织物不适合烘干的问题,所以我买了一个不占空间的隐形晾衣绳,目前我还没有想好安装在什么地方,之后再和大家分享。
最后的话
这是装修笔记的第一篇文章,我主要想分享我对「装修」这件事的思考。我是一个很清楚自己想要什么需要什么的人,所以我在这事儿上花了非常多的心思,希望它最终成型而我不留遗憾。
但装修一定是和遗憾并存的,在我焦虑了很长时间后终于接受了这件事。有很多原因的遗憾:施工遗漏、交接失误、工艺瑕疵等,但更多的是「不够完美」,可能是当初没有考虑周全,可能是想法过于天真,也有可能是自己的善变。正如前文所说的,装修是一次很好的反思,对自我的理解,如果你足够重视它的话。
我会在接下来的一系列文章中尽可能地还原自己在装修过程中的思考和解决方案,希望能给阅读时的你更多启发,多一些思考,少一些白费功夫。但无论如何,装修更应该是一件自我且独立的事儿,在大部分时候少问别人的建议,多听自己的想法,家不应该有主流也不可能被圈缚,因为你的样子是这世上独一无二的。
我们下期再见。
原创文章,作者:BCUCPO,如若转载,请注明出处:https://www.beidanyezhu.com/a/94784.html
微信扫一扫