经历过装修的朋友们都知道,绝大多数的室内设计师在设计方案的过程中,总要改过一两次方案甚至更多次才能最终定稿,并且在施工过程中以及在最后的软装进场环节,还会因为各种原因在原始方案上进行改动,导致最后完工的实景总是和最初的效果图大相径庭,也就是我们常说的“买家秀”与“卖家秀”的结果。但是今天的设计师关晓宝,他做到了从设计图纸到平面图到最后的效果图、施工图都是一次定稿,更难得的是,在后面的施工中也没有做多大的改动,才得以让我们的今天看到的案例能够一比一的还原,真正做到让所见即所得!

每个人心中都有一个海滨生活梦,一望无际的海洋、绚烂的夕阳景致、沙沙作响的海浪,以及相伴左右的家人……棕榈滩别墅位于奉贤海湾旅游开发区,临杭州湾,面向东海,享有得天独厚的自然优势。在本套方案中,设计师关晓宝遵循业主的喜好,以美式乡村风格为主调,为业主打造一所浪漫、典雅、复古、归于自然的居所。今天,我们结合本套案例来看一看,设计师关晓宝是怎么做到精准抓住客户的需求,让设计稿一次就过的!



小区:棕榈滩别墅
面积:580㎡
设计风格:美式乡村
设计师:关晓宝
客户需求:营造一个休闲、自然、安逸、宁静的居住环境。
你的性格,决定了你适合什么样的室内设计风格。
业主朱先生是一位小有成就的企业家,他的工厂就在离小区不远的地方。一家妻儿老小,过着三餐四季的生活,其乐融融。小孩在上初中,需要接送,家里的老人因为年龄比较大,也需要更多的照顾。相比灯红酒绿的繁华生活,业主反而更希望每一天都有新的体会,远离闹市的嘈杂,多一些与家人亲近的时光。所以,这个居所对于朱先生来说,有着重大的意义,这里既是一家三代人共享天伦之乐的地方,也是将来孩子成长的港湾,因此,在装修公司与设计师的选择上,朱先生也是格外地谨慎。


设计师关晓宝说“我们跟客户的第一次接触,沟通很愉快。客户接触过很多装饰公司与设计师,他说相比其他家装修公司,我们更能理解他的想法他的要求,能带给他更适合的设计。”设计师在考虑到业主的家庭背景与性格特色后,将居家风格定位为美式乡村,美式乡村风格摒弃了过度的繁琐与奢华,强调自然、轻松、舒适的生活氛围。既符合业主本身的社会地位,同时也满足了业主“回归自然”的生活方式与生活状态。


没有不好改造的户型,只有不用心的设计。
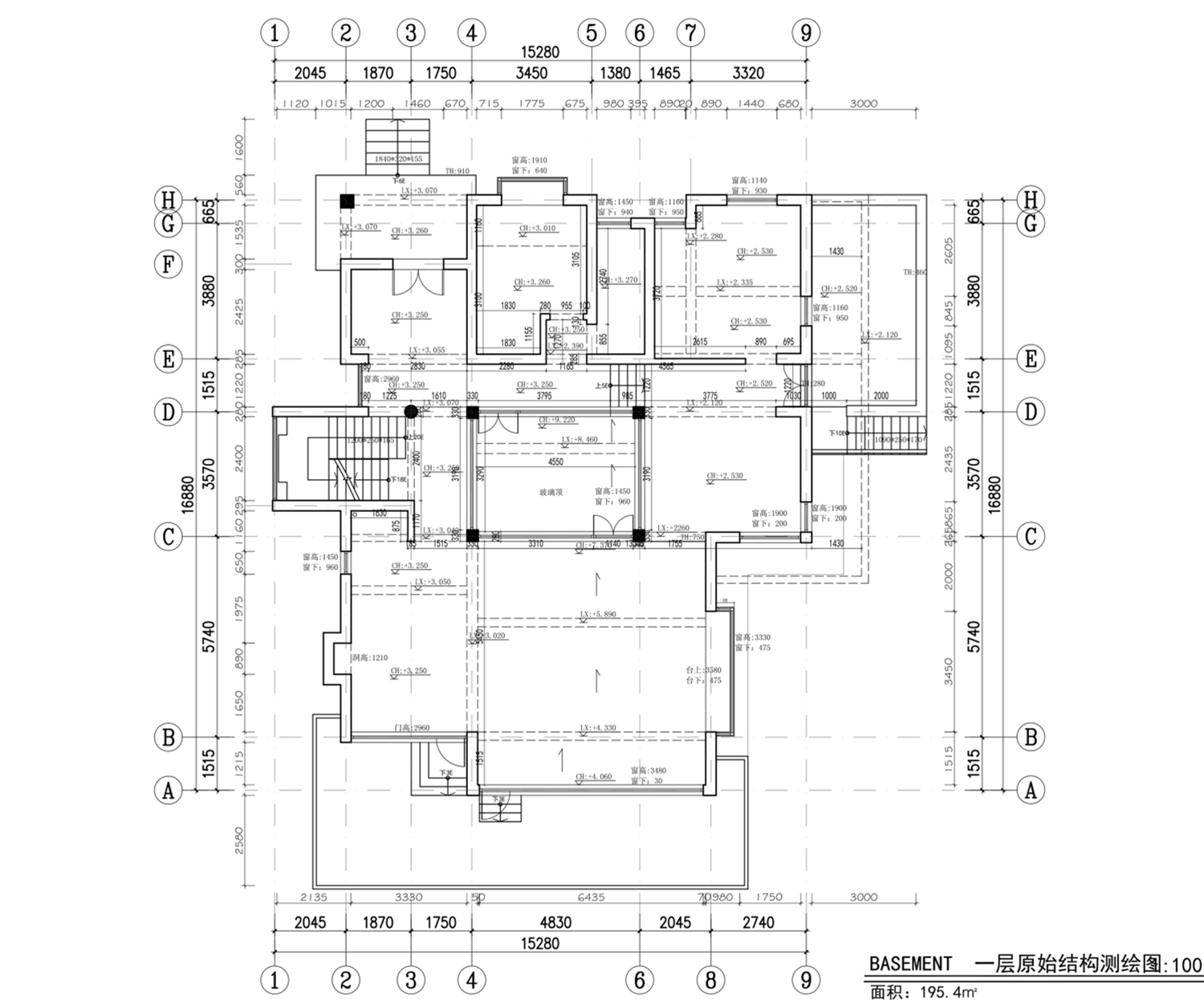
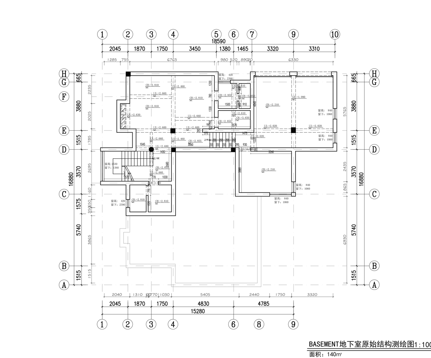
关晓宝设计师,十五年的设计沉淀,拥有着丰富的别墅设计经验。当他拿到一套别墅案例的原始户型图,他能立马分析出房型的优缺点,并进行合理的改造。这栋别墅其实是一栋建成已有十多年的二手毛坯房,设计师关晓宝针对房子不合理的地方进行了改造。原先地下室的面积很小,而且阴暗潮湿,通风很差。设计师关晓宝利用了原采光的天井做了纵向动线,直通地下层。在扩大了地下室的使用面积的同时,也增加了地下层的采光和通风。

▲地下室改造

▲一楼改造

▲二楼改造
原有的楼梯在中厅的位置,这样就浪费了很多的空间。设计师在经过精心考量后,他将楼梯原先的位置移开,在西向楼上楼下做出了四间房,这样大大地增加了房子的利用率。同时,把门厅设置在房子的中心位置,入户更加方便。考虑到风水学的布局,进户门的朝向也由原先的北进改为东进,符合“紫气东来”的美好寓意。在有限的空间里,设计师通过合理的规划改造创造出了无限的可能,大大提高了空间的利用率。

▲效果实景对照

客户的需求,你有没有做到面面俱到?
设计师关晓宝从业主一家人的生活习惯与实际情况出发,考虑了一家三代人的需求,力求让每一个人都住得舒适、安逸。考虑到家中的老人生活起居的方便,设计师将老人房安排在一楼,这样既不用上下爬楼梯,又可以方便出入花园。又考虑到老人出入门的方便,设计师在原有的门框的基础上加宽了径宽。不仅如此,老人床也采用的是那种直接可以升降移动的床。细节上的考量,是设计师关晓宝匠心的体现。关晓宝设计师说“房子是用来居住的,我希望不管是什么样的房子,都是很阳光、很温暖,能够满足每个人的需求,而不是单单某一个人的喜好。”

远离市区虽然足够清静,但偶尔也需要一些娱乐休闲,适当的放松。关晓宝设计师在地下室设计了一间影音室,这方小小的空间承载了业主与家人们亲密无间的美好时光,成为业主和孩子最喜欢的一个空间。虽然足不出户,业主依然能享受到高端的生活体验。好的室内设计不只体现在风格上的刻画,更多的恰是所处的环境赋予生活的品位与滋养。


衣帽间不仅承当了归置衣物的收纳功能,还装载了无数女人的美丽梦想。能拥有一个格调十足的衣帽间已经是一个梦寐以求的梦法,但如果能拥有两个衣帽间,那你一定要惊叫了。没错,关晓宝设计师贴心地为女主人规划了两间衣帽间,满足了女主人海量的收纳需求。


每一个细节的处理,都源自设计师的精心考量!
设计师在墙面材料的选择上,并没有在利益驱使下向客户推荐大理石或板材等昂贵建材,反而选择的是涂料漆。关晓宝设计师说“相比一个漂亮的业绩,一个‘合适’的居家才是最重要的”,客户本身并不是那种浮夸高调的人,他更倾向于过着平和的生活,所以,在墙面材料的选择上,我更倾向于涂料。”但因为小区坐落在海边,海边湿气大,防潮是设计师在设计过程中不得不考虑的一个因素。所以涂料就需要使用具有防霉性能的。包括在门窗的选择上,也要选择能应对台风天气的具有防风、防水、防震及隔音功能的材料。


为了让美式乡村风格能体现的更加地道,设计师关晓宝翻阅了大量的资料书籍,借鉴西方圆形吊顶的设计手法,将其还原到业主的家中,将所有墙面与吊顶接缝处的阴角处理成凹进去的圆润的圆角,消除了直角给人的坚硬感,使空间更有家的柔和及舒适感。房屋中类似的细节处理很多很多,看似是不经意的设计,却饱含了关晓宝设计师满满的用心!设计师希望客户回到家后的每一分钟,小到客厅摆设大到家电搭配,都能感受到是关晓宝设计师精心考量过的。



全案设计,真正让所见即所得
空间设计既要满足其千罗万象的功能需求,同时也要在视觉感受上到达一种美的享受。这套房子的最终实景也基本都是一比一按照关晓宝设计师的设计方案去实现的,包括房子里的软装配饰都是按照效果图来搭配装饰的。设计师关晓宝告诉我们“我们在施工前就已经把所有的细节,包括户型解析、功能布局、风格定位、风水规划、主材产品搭配、设备选购、家具选购、软装配饰和园林景观等内容都考虑进去,进行全方位细致的设计,也就是我们星杰正在在推崇的一种全案设计。全案设计其实是一种更省心省时省力,甚至是省钱的一种做法,这也是为什么,我们能保证效果就是实景,所见即所得的这样一个结果。”




室内的每一处都将美式乡村发挥到了极致,对每一个细节都追求精益求精,美式乡村布艺沙发与木质家具碰撞出典雅的气质,花艺、挂画、花砖和饰品更是别出心裁,精美的雕栏玉砌等,不只是体现其豪气,更多的是韵味和雅致,打造出了乡村美式风格的独特浪漫。在美式格调的低吟浅唱里,静诉美好时光。精美的物件,是品味,也是温暖,更体现的是对家人的长情陪伴。楼梯转角处的地毯就是关晓宝设计师亲手挂上去的,这也算是为他的这个设计画上了一个圆满的句号。


编辑留言:奢华有度、简约有型,满足每位业主最心底的需求便是一种对美好生活空间最好的描绘。为什么关晓宝设计师的设计作品能够精准抓住业主的需求?为什么他的设计方案能够一次就过?最重要的是为什么他的案例就能够保证所见即所得呢?用设计师关晓宝的一句话结尾“我希望每个设计师都能真正的、在用心地做好设计。”如果大家想找别墅设计装修公司的,欢迎私信编辑获取微信二维码,我一定会为大家推荐。也欢迎大家关注这套案例的设计与施工公司星杰设计的公众号(ID:xingjie_4006802550),他们做为一家专业的别墅大宅设计施工企业,在全国有7个分公司可以为大家服务。装修中遇到什么问题,可以私信编辑聊一聊,或者点击文末的[了解更多]加入社群与@我的河畔小城@雄大评装修唠一唠。
原创文章,作者:TIPLMJ,如若转载,请注明出处:https://www.beidanyezhu.com/a/95875.html
微信扫一扫