记得点击关注“装个好房子”哦~
每天为你带来装修干货、改造新灵感与美好生活故事
探寻美好居住方式,我们值得更好的生活!———————————————-
我们每个人小时候,大概都曾在傍晚的街头巷口,逆着落日低沉的光,傻傻地去追那些抓不住的风。
后来一下子就长大了,一头扎进大城市,才发现“儿时的家”才是我们渐渐抓不住的乡愁。

今天屋主@小C也不例外。

说起小C其实很多人并不陌生,她的老家在福建连江,是《梦想改造家》第3季里一期很有名的房子:悬崖上的房子——船长之家。

建筑师:董功 摄影:陈颢 版权@直向建筑
没错,今天的主人翁小C正是船长女儿,她的新家位于福州市区,是一套普通的三居室,寻觅了很久也没找到合适的设计,总感觉少了些温度,最后庆幸遇到了懂她的设计师阿加。
阿加巧妙地将屋主老家的开阔、自由、海风等融入到了这里,形成了专属小C的个性空间,像一种连接,又是传承。

新家实景
一起来看下这次精妙绝伦的改造吧~

房屋户型:3室
使用面积:120㎡
房屋坐标:福建福州
装修费用:50万元
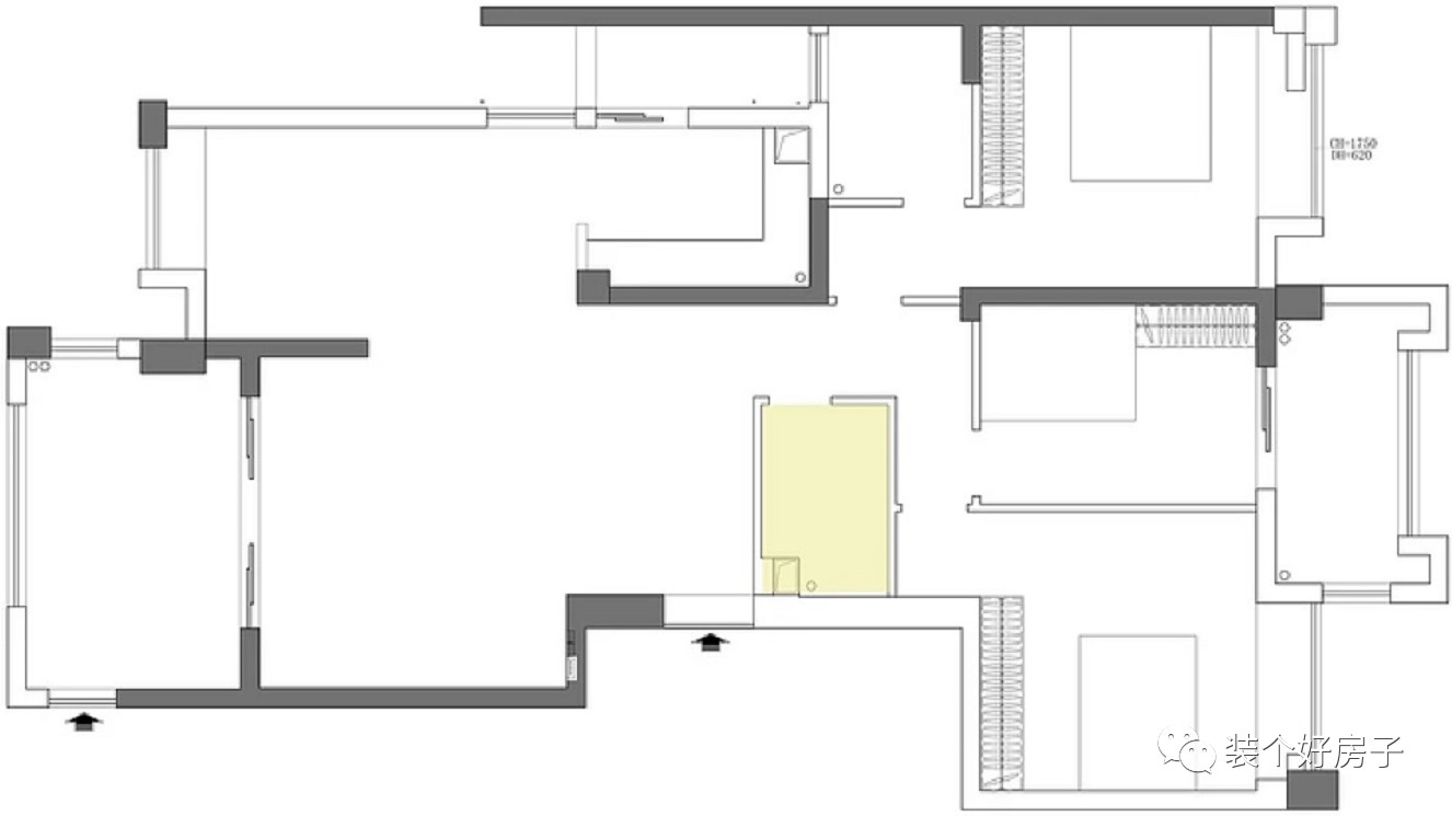
房屋改造前是一个普通高层套房,南北进深达17m,仅在两头有窗,中间的区域(客餐厅、走廊)均为暗室,且卫生间位于房屋中间,将房屋一分为二,空间缺乏互动,且造成空间浪费。所以设计的重点也就显而易见了:
1、改造各空间采光及通风问题。
2、从小长在海边,有着海一样的直爽性格,空间也尽可能为“打开”状态。
3、提升空间利用率的同时,优化整屋动线。
4、与儿时记忆船长之家的精神相契合,新家更有温度。

改造重点:
1、将卫生间长宽互换,并“偷”出通体玄关柜出来。
2、打通北阳台,并入客厅,临窗做开放式书房;将南边次卧尽可能打开,用推拉门代替墙面,将自然光尽可能引入室内。
3、将与厨房相连的设备阳台一份为二,一部分并入厨房,另一部分做了主卫的扩充。
4、尽可能优化动线,保证空间开阔的同时,各空间尽可能地增设了收纳空间。

▲原房屋户型图
色彩搭配

整屋大量采用了与老家相近的樱桃木家具,并选用了“减龄”的浅杏仁色作为墙面基色,来中和“猪肝色”的老气,并小面积用金色、橙色点缀,再搭配清新的米白、绿色来提亮,营造出复古、沉静又不失精致的氛围。


为了强化玄关区域同时柔化看客厅的视线,隔断选用樱桃木搭配长虹玻璃,木色温润、造型简洁最大程度的減少对空间的遮挡,透过玻璃的盈盈绿影又增加了轻盈和通透感。

在鞋柜上方增添圆镜和台灯,进门时轻轻拉动链条,迎接回家的是温暖的光。
“搬家后,每天的期待就是回家,看到玄关的一瞬间,门外的一切情绪都消失了,只剩下了平和安静。”

进门右手边一整排嵌入式柜体的位置,是从客卫“偷”过来的,保证了入户足够的收纳空间。

为了增加玄关的储物能力,入户门对面利用凹陷处也设置了储物柜,墙面的挂画不仅很好的装饰了墙面,也奠定整个家休闲舒适的基调。

入户门对面

玄关连接两条动线,右边连接较为私密的主客卧、儿童房、卫生间等。左边是根据小C的直爽性格,设计成的开放式的公共区域(包括客厅、餐厅、厨房、厨房,仅用自然的光影和墙柱的存在,让空间自然地形成区域划分。)整屋动静分明。
家具以胡桃木色为主,特意选了颜色较浅的木地板,拉开了空间的层次感,而且还可以充分利用老家装修剩下的竹钢地板和脚线,省钱又不浪费资源。

浅灰底色地毯可以说也很有“心机”了,焦糖色几何图块呼应家具形成错落感,条纹又提到了提亮的效果。

为了符合客厅整体调性,电视柜量身打造,格栅亦中亦西,配上金色拉手,在细节中体现品质。
用石膏线条做的电视墙造型,让空间的格调up up,色彩活跃的装饰画有种画龙点睛的效果,不对称式的摆放增加的许多趣味性。

利用沙发旁不能敲掉的墙柱,内嵌一个小书架,分担客厅和书房收纳,也装饰了单调的墙面。
莫兰迪色系花瓶恰如其分地点缀了空间。

书架旁边放置一盏落地灯,自然形成一个休闲阅读角。
客厅的家具都是特意选用的细腿立地式的,整体看上去更加“空旷”,而且轻便易挪动,也方便后期清洁打扫。


这个角度可以看到客餐厅之间的关系,去掉部分格调做成开放式,还增设了小型吧台,墙面做成了浅灰色几何图样,层次、线条感很强,视觉宽敞利落,还可以摆放花草饰品。
沿窗做了一排内嵌式矮柜做餐边柜,台面上还可以摆放一些小盆绿植,清新舒畅又生气满满。

虽然自己住,但父母和弟弟会时常过来,全家都很享受这种LDK的布局模式,可以一边吃饭一边看电视聊天。
朋友来了,大家也可自由选择沙发、餐椅或者在地毯上席地而坐,大家围坐一圈,还可以时不时地跟做饭的小伙伴交流,很亲切。

背景墙来自英国
餐桌旁的小型吧台带有上水系统,方便洗水果、茶杯,还能边洗菜边看电视,不用再走到更远的厨房,方便又有趣。
餐厅旁边墙面墙面也做了个壁龛展架,让船长女儿的各种摆件有了归属,造型与客厅的壁龛书架相呼应,与厨房门框齐高。

岛台的下面做了开放式拉篮,方便拿取,而且收纳能力一点也不减少,纸巾、牙签、零食等各种随手物品都可以放在这里,随拿随用又能保持台面整洁。


厨房做了L型橱柜,红褐色柜门搭配竖贴满墙的亮面条砖,再以金色五金做点缀,精致又复古。
台面的一角用作咖啡区,墙面特意用隔板代替了橱柜,方便拿取咖啡、茶叶以及精致的杯具风,也可以减少大面积橱柜给小空间带来的压迫感。


进门左拐,拱形窗特别抓人眼球,它与老家最大特色的三楼拱相应,白色纱窗无比温柔,刚好遮住外面的城市的钢筋铁瓦,微风透过薄纱吹进来,一瞬间有种住在海景房的感觉,给了小C从海边搬到“水泥森林”很大安慰。

开放式书房是由原客厅阳台改造来的,空间的视觉面积扩大了不少,也有效解决了客厅的采光问题。
书房虽小,但是储物功能很强大:整面内嵌式通体柜+飘窗书柜。

虽遮挡了一点窗户,但因是北面
对光线和风影响其实很小,好处却很大
临窗也打造的收纳柜,随手拿取书本非常方便。

铺上书卷气满满定制明式书桌,深沉的木色让人内心笃定,窗台随意摆几件装饰品就艺术感十足~
闲暇时刻,临窗阅读、习字,感受风从时光深处习习拂过,这儿成了小C最爱的角落。

夏日,坐在沙发上小憩,一阵风吹来,那是夏日特有的风,炎热中带着慵懒的气息,一瞬间仿佛穿越到了小时候,又在家门口和邻居们一起吹着海风纳凉聊天了,这真是城市高楼里的奢侈品。

种草了很久的吊灯,精致又温柔
黄昏时的书房,总是带着极其梦幻的光影,让人能在这个时候静下心来,即使在这繁忙的都市,也能享受片刻的独属自己的时光。


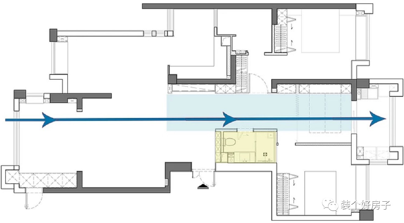
将卫生间长和宽调换位置后,这个连接了南北的窗口,走廊几乎连接了家里的所有空间,没有过多的装饰。

将卫生间调头,乍一看是浪费了面积做通道,却一次性解决了采光差、不通风、动线受阻、通道过长等所有问题。要知道,采光、通风和动线是最重要的因素,是决定一个家住得舒适、方便的基础。打开了光与风的通道,就盘活了整家。

幽长的过道带有一种沉静感,恍愡中感觉回到了老家。内嵌式顶天立地柜体收纳能力也是杠杠的~

走廊尽头便是“空无一物”的客卧

客卧
将客房与走廊之间的隔墙打掉,用折叠门代替,打开时可完全内嵌至柜体里,看似“空无一物”的客卧其实暗藏玄机。
这里藏着吊环和壁床等“机关”,壁床里还暗含床头柜,父母偶尔来小住时放下壁床,拉上隐形门,就能迅速变身为温馨的卧室。
与客卧相连的阳台,现在是洗衣区和晾晒区。

正面壁床柜是35cm深度(标准尺寸),而衣柜是55cm深度,利用后背多出的20cm空间做了一个床头背靠,可以放置台灯和水杯等随手物件,非常方便,左侧留出20cm空隙隐藏折叠移门。

壁床和柜体都是整屋定制。设计很多时候不需要看起来多么华丽繁复,而是用简单的方式满足生活的多样性。

小C喜欢练习空中瑜伽,在客厅预埋吊环,挂上瑜伽带,可承重400斤,收起客卧床铺,秒变瑜伽室。不使用时直接取下,不占用任何空间,很方便。

在繁杂的都市里,每天处理着怎么也忙不完的工作,难免有心烦意乱的时候,在这里静坐或荡个秋千,飞起来时像是回到儿时的纯粹和美好,屋外的一切琐碎也就暂且放下、被清空了。

主卧
打开主卧门里面又是另一番景象。墙面刷成墨绿色是真的喜爱,倒不是刻意追随复古潮流。
墨绿墙配豆绿色丝绒床,同色系的深浅差异使空间层次更丰富。墙壁上的画作来自厦门的旅行插画师,着色是去厦门时意外偶得《粉色的回忆》系列之《摩洛哥》画面带有一丝微甜的粉色调,营造属于女孩儿的惬意小世界。
床头面积小,采用了壁挂式床头柜,不影响使用,节省空间,也方便后期清洁。

临窗飘窗台打掉订做了书桌,可以作为安静的阅读角,又有充足的光线可以用作梳妆台,桌子左侧利用空间做了层架,可以展示各种心爱小物,最底层的纸模是热爱建筑的船长女儿从西班牙带回来的,自已一块块拼起来的米拉公寓。

将主卫包进主卧后,卧室的空间也得到了扩充,隐形门后的空间也得到了利用,两面通体式柜体收纳小C一年四季的衣物绰绰有余。


儿童房与客卧相邻,现在家人或朋友要留宿,首要考虑的就是这个房间,墙上贴了童趣满满的小狐狸壁纸,与其他空间的设计形成反差萌。

透过白色薄纱的阳光,有种岁月静好的美好~

(说明:由于拍摄当天特殊原因,没有拍摄卫生间图片)
这个120㎡的房子,对于小C来说不仅仅是家,更是她儿时记忆的缩影和温存,它就像一个传送门,经历了都市的繁杂拥挤,见证了这里的喜怒哀乐。
打开门,抬脚迈进家,这里有温暖熟悉的一切,一天的风尘与烦恼都将不复存在,特别温暖,特别美好。
—— [END] ——
案例及图片来源:阿加空间设计
感谢设计师阿加接受好房君的采访
【延伸阅读】
上海90后男生买下上海最烂户型,45m²爆改后谁来了都不想走
被《人民日报》表扬,1000万姑娘都想嫁,他将家变成热带雨林
小户型最神设计!卧室衣柜竟然是楼梯?
美食控和技术宅的家,超大中西厨,80㎡法式风装出100㎡既视感
装个好房子原创
我们致力于分享好案例、好攻略、好经验,每日更新,值得您长期关注~
如果觉得好,欢迎转发分享,并在文末留下您想说的话
如需转载,请联系好房君的女秘书(W-X:haofangjun666)授权。
人生在世,值得更好的活,值得更多居住方式的可能性!
原创文章,作者:IGVNPZ,如若转载,请注明出处:https://www.beidanyezhu.com/a/96620.html
微信扫一扫