80㎡的房子打造两室两卫的格局,很别致的家装方式,呈现的效果很惊艳,空间被利用得非常充实,白色调为主简约干净,落落大方又现代别致,特别主卧衣帽间独特而又时尚,让人看后不禁感叹,原来还可以这样设计。
餐厅

进门就是餐厅,实木餐桌搭配亚克力的桌腿,简约时尚,结实耐用,餐边柜和厨房的冰箱柜连为一体,占满整面墙,大气十足,柜门简约的平板纯白色,无把手设计,完整美观,中间开放收纳空间,满足餐边柜收纳需求。
厨房


开放式的厨房设计,让空间显得更加宽敞明亮一些,C型布局的厨房将空间利用的很充实,收纳空间更宽裕,橱柜和台面都是纯白色的,干净整洁,设计高低台使用起来更加轻松舒适,最有特点的就是在靠近餐桌一侧的橱柜边缘,设计了一个凸出来的吧台,别致独特的设计,为生活增添了时尚品位和更多乐趣。
客厅


客厅和入户门之间安装了一个到顶的长虹玻璃隔断,不复杂的设计,呈现的效果却很惊艳,时尚美观,提升整体的家居品位。客厅无主灯的风格,更显简约大方。


沙发背景墙是简单的大白墙,没有其他装饰,电视背景墙则是设计成一整面墙的柜子,完完全全的收纳柜,没有电视的那种,同时和正对入户门的柜子连为一体,形成完整大气的效果,整个设计都是纯白色,干净利落,简约纯洁,主卧的隐形门和柜体、墙体完美融合,看着特别舒服。做了隐藏式投影布,分分钟打造家庭影院氛围。
阳台




阳台不算很大,但因地制宜地进行了设计和布局,两侧分别融入洗衣机柜和水池柜、吊柜,都是很实用的设计,和墙体都完美结合,看着很舒服。窗户做了中间断桥铝落地窗的设计,采光充足,美观实用。除了满足生活需求,还设计了一个吧台,满足休闲放松的需求,阳光明媚时晒晒太阳,细雨纷纷时想想事情,夜色璀璨时赏赏景色。
主卧



主卧一进门就会被衣帽间的样子惊艳到,原来衣帽间还可以这样设计。U型布局的衣帽间,在梳妆台的位置做了开放式的设计,瞬间让整个衣帽间变得宽敞明亮很多,衣帽柜的设计也很贴心,各种收纳空间,满足各种收纳需求,柜门到顶则显得大气十足。

主卧选择奶咖色墙壁,温馨感十足,床和窗帘也都是奶咖风格,统一的色调,让整个空间变得完整舒服。
卫生间

主卫做了干湿分离,淋浴间显得很宽敞,二字型的浴室柜,简约实用,收纳效果更好,上面台下盆可以完整融入石英石台面中,台面的收纳效果更好,下方的实木收纳柜使用方便,中间的收纳空间也变得更宽敞,最下方则可以收纳各种盆。

客卫比较小,但也做了干湿分离,简约实用,地砖上墙美观方便。
次卧

次卧作为儿童房,风格上和主卧一致,以各种简单的收纳柜为主,随着孩子的长大,房间可以随时进行重新布局。
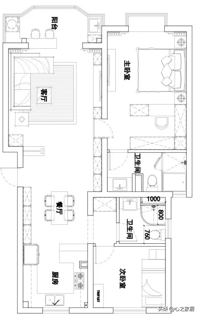
户型图

80㎡选择两室两卫的布局,也算是一种很大胆的尝试,家装的效果非常不错,空间利用充分,几乎没有浪费任何空间,除了拥有家的舒适和温馨,生活的品位与浪漫也很彰显,让人看后就爱上的家居风格。#家居#
原创文章,作者:GXUQPU,如若转载,请注明出处:https://www.beidanyezhu.com/a/97337.html
微信扫一扫