
Carlsberg Central Office
嘉士伯中央办公室
可持续设计一直是设计界的热点话题,这个位于哥本哈根市中心的嘉士伯总部,就很好的诠释了这一点。

该总部由 CFMøllerArchitects 设计,面积为 23200㎡(15500㎡为以办公空间,7700㎡为地下室和停车场),其最大的特点是应用了大量可回收的黄铜作为中庭外墙和天桥的饰面。
其设计理念是想借由建筑表现品牌文化,构建出现代且富有活力的办公场所,支持身份识别、知识共享和创新,且还与周围的环境和建筑相互融合呼应。

01.
建筑设计

整个办公楼共四层,由三个不同面建筑结构组成,包含了一个大中庭、办公室、会议室和临时工作站。

△建筑手绘草图

朝向街道的外立面以由垂直镀铜的板条和玻璃材料为主,将可持续理念运用到每一处。

将金属面板做镂空设计,可以调节建筑物的温度,双层玻璃窗与顶部的太阳能电池、节水装置,这些设计能有效的减少资源消耗,朴素的外观也能节约不少后期的维护费用。

绿色的金属面板,呼应了嘉士伯啤酒瓶的颜色▽

办公楼内部的饰面设计,模拟了啤酒的样子,金黄的色泽加上细密的气泡,带来别样的沉浸式体验。
饰面的主要材料是可回收的黄铜,上面的气泡图案由密密麻麻大小不一的孔组成。这一设计看起来铺张,却一点不浪费,这些黄铜是可再生利用的资源,拆除后还能制成黄铜管、黄铜板、黄铜箔等产品。


02.
室内设计

走进办公楼,大堂采用了明快的材料色板,以白、金色为主。


△室内结构手绘草图
大堂左右两边各拥有一部楼梯,中间的区域做成非正式的社交互动区。

加宽的楼梯配上柔软的棕色坐垫,可以让员工和来访的客人坐下来短暂休息。斑驳的阳光从窗外照进室内,明与暗的光影交织非常有氛围感。

坐在大堂休息区,还能透过大面积的玻璃幕墙欣赏到院子里的美景▽

站在楼上俯瞰大堂休息区▽

仰视大堂顶部可以看见球形、条形的吊灯和散布在各处规律排列的吸顶灯,犹如漫天繁星一般▽

通往上层的楼梯,做成上下错位的折叠式设计,采用可回收的黄铜作为扶手,不仅呼应了环保可持续的主题,也为整个办公楼增添了一抹靓丽的装饰色彩。


办公楼内的工作区形式多样,开放式封闭式的空间都有,大量落地玻璃幕墙的应用,也为室内带来了绝佳的视野和采光▽


设置在办公楼各个区域的座位也很有特色▽

V 型支柱▽

供员工们工作之余休息的茶水间,黄色调的应用,带来了明快、惬意的氛围感▽

员工餐厅▽


03.
花园设计

办公楼内侧设计了一个花园,可将办公室附近的私人区域进行了自然的衔接和隔离。


△设计草图
这里也是嘉士伯创始人 J.C. 雅各布森和他儿子卡尔·雅各布森的故居。
嘉士伯(Carlsberg)就是 J.C.雅各布(JC Jacobsen)森在 1847 年以当时 5 岁儿子卡尔·雅各布森(Carl Jacobsen)的名字为灵感命名创立的品牌。

△卡尔·雅·各布森(Carl Jacobsen)
花园是对外开放的,绿意盎然的绿植,蜿蜒的小路,是很多人散步、遛宠物最常来的场所。



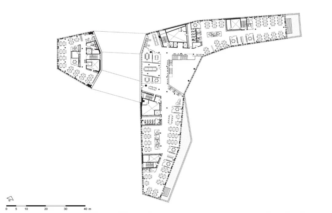
一层平面图▽

二层平面图▽

三层平面图▽

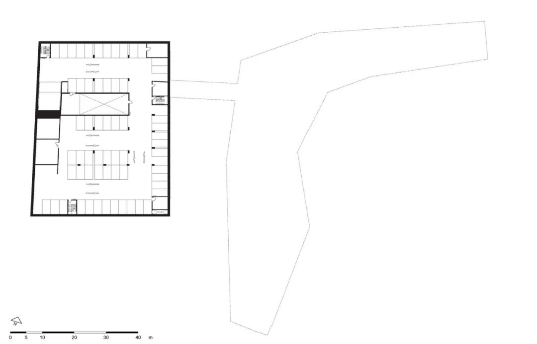
地下层平面图▽

立面图▽




建筑模型▽


事务所介绍

Møller Architects 建筑师事务所由 Christian FrederikMøller 于 1924 年在丹麦成立。他们的设计简洁、明快、现代,会针对每一个项目的具体情况作出回应,同时也注重方案的可持续性与创新性,在过去的 90 多年中,该公司在北欧和国际建筑行业中也屡获佳绩。
原创文章,作者:FQZWBE,如若转载,请注明出处:https://www.beidanyezhu.com/a/98102.html
微信扫一扫