我们知道在买房的楼层鄙视链中,一楼和顶楼一直处于最末端,尤其后者,光一个冬冷夏热还渗水,就足以劝退多数人。
但本案女主不一样,不仅很有眼光的,买下了这套被人嫌弃的顶楼,之所以这么说在价格上要更为经济实惠,而且装修效果出来,凭一个客厅就圈粉无数,难怪被超多人羡慕!加之作为职住一体的房子,满足了居家休息和学习办公两不误的效果,住起来实在是太爽了!不信我们一起来这对夫妻家中的高级场面吧。
一楼平面图
坐标四川成都,这是一套建面175㎡,楼龄已有20年的顶楼复式,女主买下这套二手房,主要是离公司近,这样无论上班还是休息,都更为方便。(通勤时间短,不用担心挤地铁和路上堵车)

一楼原始结构图
户型结构上,一楼为客餐厨这样的公共区,外加一间卧室,存在问题有:
1、无独立玄关,进门左侧虽然可以定制鞋柜,但由于房门正对着客餐厅,导致私密性不强;2、厨房太小,作为职住一体的房子,屋主希望有个大大的烹饪空间,且餐厅能同时容纳8~10个人一起吃饭;3、原楼梯空间太过狭窄,且动线和主空间有一定的冲突。

一楼平面布置图
基于此,改动如下:
1、进门右侧定制一组L形的拐角柜体,以此围合出一个独立玄关的同时,拥有强大的储物空间;2、餐厅空间有些大而不当,就靠墙定制了带有操作台的橱柜和电器柜,进而作为西厨兼水吧台使用,能够有限缓解中厨空间过于紧凑的问题;3、楼梯间改到客厅的南面,充分提高利用率,且屋主喜好阅读,就结合挑高的空间定制了书柜。下面我们来看实景。
入户

进门左侧定制了底部悬空的免拉手鞋柜,好处在于显得干净利索,且弱化了体积感的同时,还能便于码放鞋子。
其它是方便进出门整理衣着形象,和仪容仪表的穿衣镜,以及摆放绿植插花的置物边几,这些东西不仅让玄关设计变得更为人性化,而且也增强了回家的仪式感。

站在餐厅看玄关,为了不让进门右侧定制的L形柜体,阻挡来自客厅的自然采光(上图为左侧),就预留了拱形门廊。
另外可以发现玄关是铺贴了,立体感比较强的瓷砖作为落尘区,好处在于卫生打理变得更加方便一些。
餐厅

餐厅做了弧形吊顶,再嵌入灯带,看着满满的高级质感。

其它是沿着墙面定制的橱柜,选用墨绿色的模压门,配上金色的拉手,看着复古时尚又精致。
同时中间预留操作台,作为西厨使用,加上右侧的水吧台,无论是烹制简单糕点,还是用来烧水泡茶,以及研磨咖啡等等,都能提高生活的便利性和幸福感。

家具方面,餐厅选用白色的岩板餐桌,搭配六把丝绒质感的餐椅,效果也不错,既精致又有品。


这个角度可以看到中厨,选用透光不透人长虹玻璃推拉门,配上细窄的金色边框,同样充斥着满满的高级质感。至于内部装修,隐约可见以白色的橱柜为主,加上明亮的空间氛围,相信做起饭菜来,心情都会变得更加的愉快。
客厅

舍弃电视墙后的客厅,沙发不再对着某某背景,而是改成这种以及茶几为中心,正对两把藤编单椅的布局,好处在于有利于创建一个沟通与交流无碍的氛围出来。

原电视墙改为现在的装饰性背景,比如白色石膏雕花的壁炉造型,加上三处拱形元素和6米的挑高,看着真的极尽优雅、浪漫,与大气。


看到这,很多人疑惑影音方面的需求怎么办?答案是,女主在顶部预留了收纳投影仪幕布的暗槽,加上吧台右侧安装在三角支架上的电视机,无论是用来观影、收看电视节目,还是用来培训开会啥的,都能解决。

不过相比较而言,个人更喜欢楼梯间的设计,白色的旋转结构所带来的优美弧线,结合垂落而下的吊灯,看着太漂亮了。

不仅如此,为提高利用率,还定制了书柜作为书墙,如此便有种,身处图书馆般的感觉,书香雅韵弥漫其间,实在是太有品味。


总之,以一楼客餐厨为主的公共区,不仅满足了居家休闲、聚会聚餐,还有工作培训和阅读办公的需求,难怪凭一个客厅就圈粉无数,不得不说这种职住一体的房子,住起来实在是太爽、太香了!
客卧

客卧在一楼的北面,氛围还不错,选用复古绿的丝绒靠背床,配上柔美的床品,并在优渥的采光和柔美窗帘的衬托下,就有了一种干净澄明的基调。
当然床头右侧定制的白色衣柜也不错,中间预留了一个豁口,充当床头柜,放些诸如手机类的临时物品正好合适。
客卫

一楼客卫选用深色的防水漆和下面的墙砖做分区设计,这样看着更加高级。
当然,小便池和壁挂式马桶也不错,尤其后者,不留清洁死角,这样打理卫生也方便一些。再就是最右侧的钻石型淋浴房,除了起到干湿分离的作用,对提高利用率也很有帮助。
二楼平面图

二楼原始结构图

二楼平面布置图
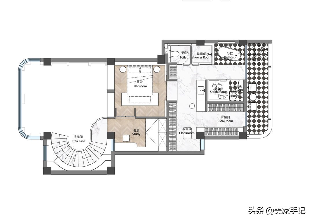
二楼是女主的私密空间,考虑到住职一体的需求,就在主卧的基础上,增设了一间书房,另外还预留一部分空间作为衣帽间和主卫。
书房


书房沿着楼梯上来就到了,除了靠墙设置了底部悬空的隔板式书桌,来满足基本的办公需求,还在左侧设置了翻板式的折叠床,以便于以后有了宝宝,也能得到及时有效地照料。而在这之前,这里还可以摆放瑜伽垫做一些无器械的运动。
主卧


主卧与书房相邻,不过设置了双开门来划分空间。至于内部装修,在左侧靠近一楼挑高的地方,设置了相应的窗户,这样既有充沛的自然采光,而且和下面的客厅形成了一种奇妙的互动。家具方面,选用柔软舒适的深色床品,加上相应的窗帘,还有其它的软装家具,整体营造了一个慵懒舒适的氛围,非常适合休息。

另一面的房门,往左通往马桶间、淋浴房和浴缸区,往右通往衣帽间,中间是洗漱台,而从平面图来看,洗漱台背面还有桑拿房和洗衣房。


来看具有效果,往右的衣帽间分两组,一组为爵士白石材纹理贴皮的衣柜,配上黑色拉手,看着很时尚,另外是带有玻璃柜门的衣柜,好处在于可以起到一目了然地拿取效果,而且金色的边框看起来也轻奢精致。


另一面从左至右分别是如厕区、淋浴区和浴缸区。

最后是二楼的阳台,摆放了绿植盆栽加上休闲椅,前者为空间注入了源源不断的生机与活力,后者用来休闲观景也不错。至此本案就分享到了这里,感谢大家阅读。
(注:本案文字原创,图片来源于@吾隅设计,如有侵权,请联系删除)
想了解更多精彩内容,快来关注@美家手记
原创文章,作者:NSZYTI,如若转载,请注明出处:https://www.beidanyezhu.com/a/99567.html
微信扫一扫