在空间设计中,虽说小户型会受到很多限制,但若能做到合理布局规划,功能性以及居住舒适性,是完全不比大户型差的。当然,巧妙的空间布局,也并不需要过多的结构改动,有时候只需要一些简单的调整,就能让空间与生活方式结合,从而打造出一套具有品质感的居住空间。
像本期带来的这套小户型案例,布局改造这块就十分巧妙,哪怕称其为“装修指南”都一点不为过。虽说面积只有60㎡,但功能性却做到了应有尽有,且还特别的宽敞。
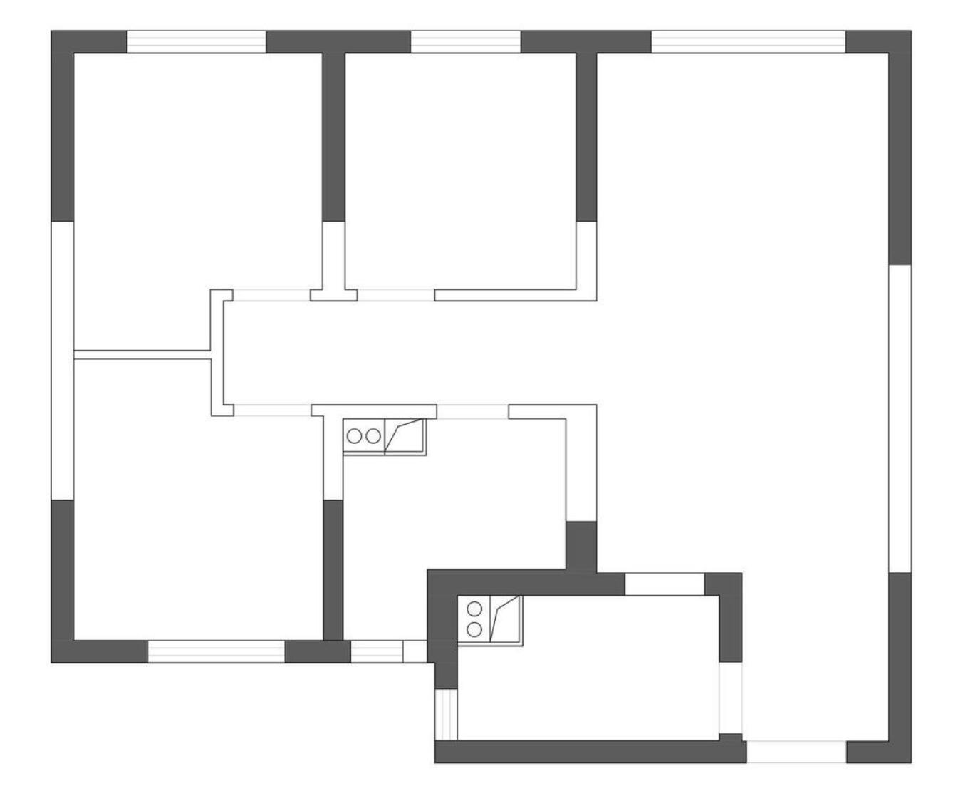
平面结构图

新房位于北京,套内面积60㎡,三室一厅一卫的格局,屋主是一对小夫妻。原户型看似比较工整,实际上每块空间都比较小,导致动线十分局促。再加上没有独立的阳台,所以功能性也存在缺失的问题。而屋主对新家的需求,则希望是在保持实用的基础上,让空间尽可能表现出品质感,并符合当下年轻人的审美。
平面方案图

结合现有的空间情况,以及屋主需求,布局改造如下
1、玄关设计整面墙的储物柜,并延伸至餐厅,满足不同的收纳需求。
2、考虑到“刀”字型的卫生间使用率比较低,将墙体做内退处理,一来可以弱化过道的存在,二来也可以拓展餐厅的使用面积。
3、次卧采用移门隔断,再一次弱化过道,并为室内起到引光的作用,让空间更加通透。
4、主卧采用套间设计,延伸出衣帽间、书房的功能,让面积分配更加合理化。
玄关

玄关侧面设计整面墙的储物柜,在最大化利用空间的同时,也兼具了不同的收纳需求。比如一体式的鞋柜设计,就满足了换鞋、挂衣、鞋子及包包的收纳需求;再比如旁边的展示柜,就满足了手办及头盔的收纳。
而给门板做无拉手处理,以及给展示柜安装上玻璃门,既在视觉上做到了简洁,也加深了储物柜的层次。
厨房

进门左手边就是厨房,墙面铺上凹凸感十足的白色瓷砖,地面铺上水磨石饰面的地砖,不仅带来了整洁、干净的视觉表现,也让空间变得更加立体了。而墨绿色的橱柜门板,搭配上金色的拉手,也为空间奠定下了复古的基调。
餐厅

通过玄关就是餐厅,当卫生间墙体内退之后,餐桌不仅实现了横向摆放,还满足了一个中岛台的配置。这样一来,不仅让空间功能更加丰富了,还为生活增添了一抹情调。
侧面一组成品的餐边柜配置,则与玄关柜做到了工整,并解决了餐厅的日常收纳,以及小电器的使用空间需求。

考虑到该户型没有独立的阳台,在餐桌后面定制一组到顶的家政柜,巧妙解决了冰箱、洗衣机、烘干机的收纳,并且在关闭柜门后,也让空间做到了整洁、干净。同时,上方吊柜的存在,还方便了一些杂物收纳,真的是非常的实用。
卫生间

卫生间缩小之后,采用隐形门设计,再一次保证了墙体的工整性。利用凹角设计的台盆区,也让卫生间做到了干湿分离,且方便了生活使用。

来到卫生间内部,绿白色的小花砖,搭配上半墙的复古绿,在和谐统一中,强化了复古的空间主题。而独立的淋浴间,以及悬挂的马桶设计,也在保证使用舒适的同时,让空间做到了整洁、干净。
客厅

客厅没有做过多的设计,以留白的方式,赋予了空间一丝简洁、灵动的气息,以避开拥挤。同时,少量的复古元素运用,也在呼应空间主题的同时,做到了克制。

拼色的沙发背景墙、做旧的皮面沙发、以及一幅油画装饰,让空间充满了复古的气息,且丝毫没有压抑感。
次卧室

拆掉次卧隔墙,并采用转角的方式,设计成玻璃移门隔断,立马就为室内引入了充足的光线,并实现了自由开合。由于该房间目前用不到,所以在布局上,也赋予了它办公、储物、客房、休闲等多变性。

主卧室

主卧延续了外面的基调,不过藤编床头、格纹墙布、以及金属、水晶等元素的穿插,也在优雅的气息中,透露出了屋主对高品质生活的追求。

当北面的小房间纳入主卧之后,利用一组L形衣柜来隔断,既在空间功能上让办公与休息,做到了互不打扰,也带来了大量的储物空间。

纵观整个案例,虽说结构改动并不多,但却十分地巧妙。尤其是给卫生间做墙体内退,以及将次卧改成玻璃隔断,更是让整个公共区的面积得到了释放,并带来了充足的光线。同时,在空间功能定位上,也做到了应有尽有,并且十分符合屋主的生活方式,真的太棒了。
图源:云深空间设计
原创文章,作者:BRTHNI,如若转载,请注明出处:https://www.beidanyezhu.com/a/93483.html
微信扫一扫