户型应方正合理,是我们对房子的普遍认识,但那些看上去不怎么方正好用的空间,却也是容易带来惊喜的地方。
因地制宜地对每一个空间进行设计,尤其是在给不规则空间一个准确的功能定位后,它们往往会瞬间散发出一种打破规矩的趣味。
这个家里的人形屋顶,便给家里的孩子准备了一个天然的儿童房,且妙趣横生。
户型解析
1 基本信息
– 楼盘:昆明·滇池俊府
– 面积:140㎡
– 户型:三层复式
– 风格:新中式
– 设计:刘建圣
2 业主需求
这是一个三代同堂的家庭,业主喜欢简单、有质感的新中式风格。因为常住人口较多,所以还需要考虑储物功能的完善。
3 设计师说
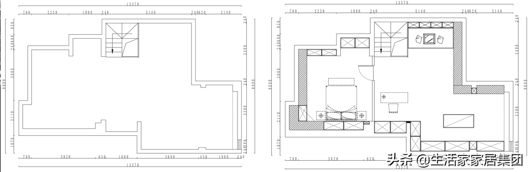
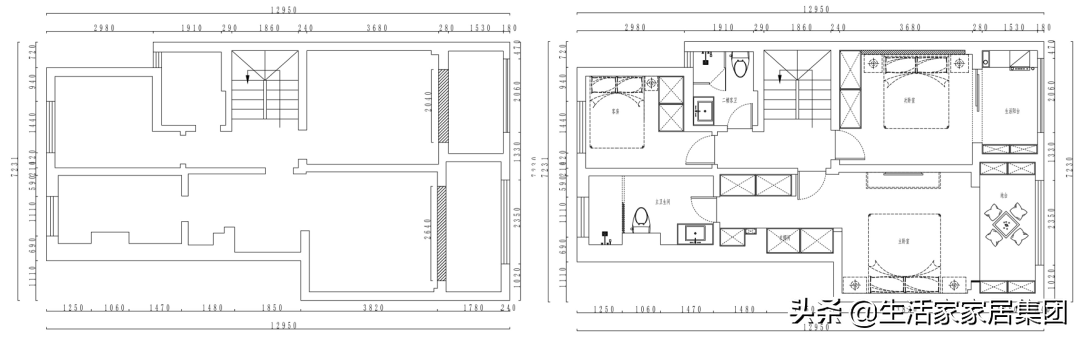
这是一套三层复式户型,一梯两户,两面采光,整体采光较好。缺点是结构比较复杂,且三楼处于顶层,为不规则人字顶,虽然是精装修房,但值得改进的地方不少,尤其是顶层,基本是拆掉重装。
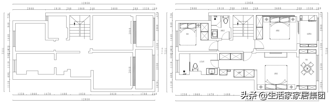
4 改造前VS改造后

△一楼改造前后对比 图源©生活家家居

△二楼改造前后对比 图源©生活家家居

△三楼改造前后对比 图源©生活家家居
户型改造
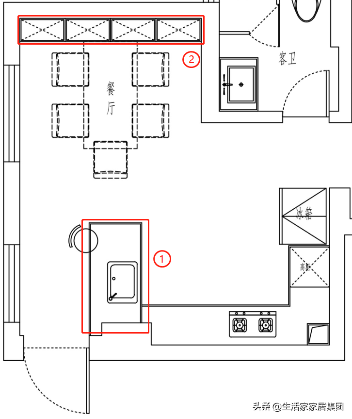
1 餐厨/这一大家子人,一定要互动起来
原先的餐厨空间被隔断成一个奇怪的格局,考虑到家人比较多,更需要能沟通的空间,一家人饮食也比较清淡,所以设计师与业主商定将厨房改成了开放式。

△餐厨改造前。图源©生活家家居
拆掉墙体后,在原处搭建岛台,开放式厨房让整个餐厨区成为了通透的一体,厨房也有了足够的空间嵌入大冰箱等厨电。餐厅的墙面打造了整面通天柜,可用作展示和收纳。

△餐厨改造后。图源©生活家家居

△餐厅效果图。图源©生活家家居
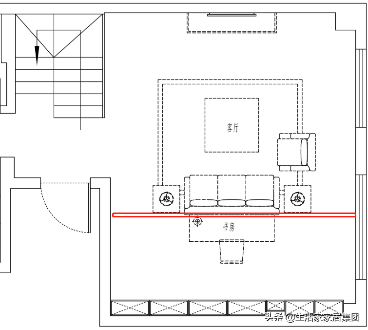
2 客厅/保持方正和通透
客厅是一个50多平的大方正空间,但为了保持业主喜欢的通透和简洁,整个房间没有增加任何隔断,只是通过沙发和书桌的摆放,将客厅区分为会客区和书房区。

△客厅改造前。图源©生活家家居
原来的楼梯拆掉重新安装了石材楼梯和黑玻扶手,更好地满足了客户对光线的要求。而整个客厅的收纳功能,全部集中在了书房区背后的整个墙面,储物力极强,且做得比较隐形。搭配无主灯设计和流线形的新中式家具,这个空间很好地体现了禅意。

△客厅改造后 图源©生活家家居

△客厅效果图 图源©生活家家居

△客厅效果图 图源©生活家家居
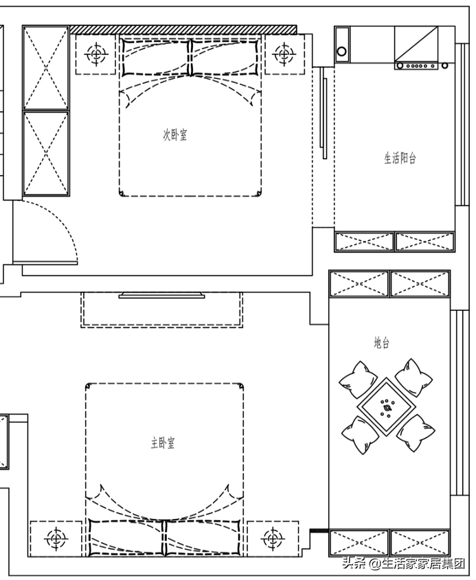
3 卧室/要和阳台连通
二楼主卧和次卧的改造方法都是将打通阳台扩大空间。其中次卧是将门改为更具通透性的推拉门,主卧则是完全拆除了卧室和阳台间的隔断,并在阳台上搭建地台,打造出一个休闲区。

△卧室改造前。图源©生活家家居

△卧室改造后。图源©生活家家居
这两种做法都很好地改善了卧室的采光,也让空间利用率得到了提高。
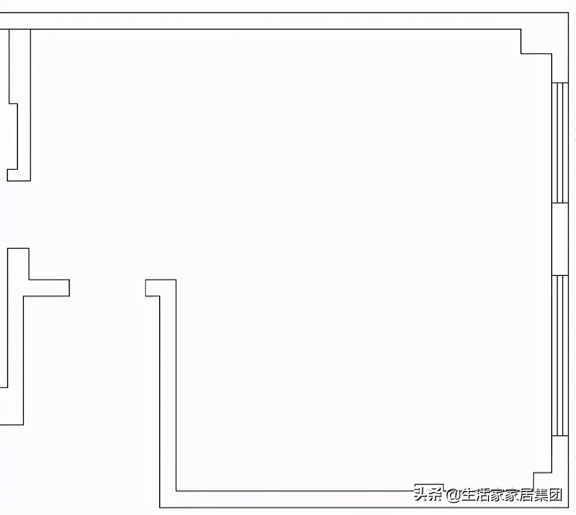
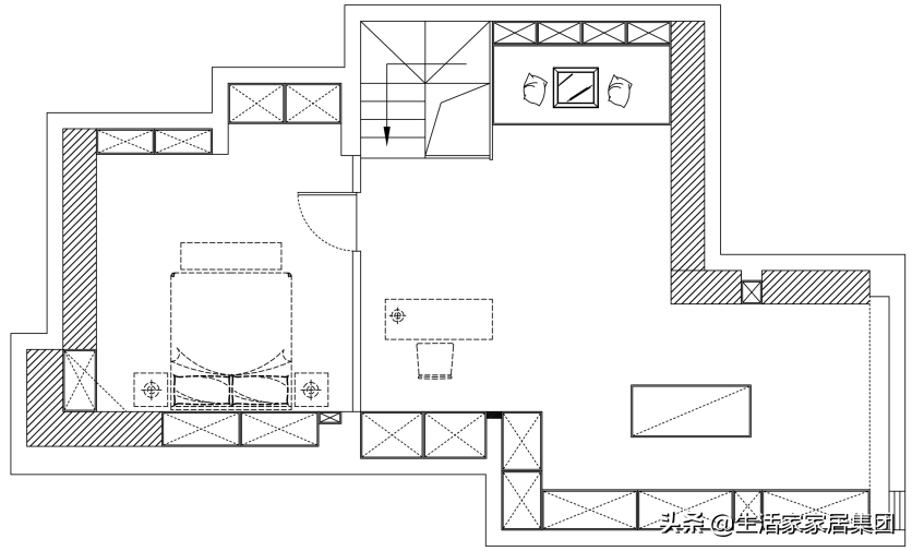
4 顶层空间/人字顶“阁楼”的趣味
顶层整个空间没有隔断,墙面拐角也比较多,而且因为是人字顶,如何将矮小和不规则空间利用好是一个难题。
这样的异形空间,对于孩子来说,充满了天然的趣味性,因此设计师首先便是将这里定位成儿童房,然后增加一面薄墙,从功能上将这里分隔成卧室和亲子区。

△三楼改造前 ©生活家家居
人字形顶层房间最常见的问题就是屋顶和地面相接的部分层高太低,不便利用,因为设计师对图中阴影部分进行了补平,以便于重点打造适宜居住的空间。
对于墙面凹陷或有凸起的地方,设计师全部用设置收纳柜的方式进行了改善,一方面增加了储物功能提高了房间实用性,另一方面也将空间调整得更加方正。

△三楼改造后。图源©生活家家居
右边的亲子区,设计师进行了清晰的功能划分,学习区、亲子区、阅读区一应俱全,且每个区域都在独立的收纳柜,让孩子从小就养成将东西归位的好习惯。
设计小结
这套滇池俊府顶层复式的户型,结构比较复杂,但主要空间的面积都比较宽敞。最大的问题就是三楼人字形屋顶所导致的空间利用率问题,而本案的设计师给出的解决方案则很有参考意义。
厨房改成开放式能让空间结构更合理。原始户型中厨房墙面与阳台间形成了一条过道,尴尬又没有什么实用性,所以这面墙完全可以拆掉,要么做成开放式厨房增加与餐厅的互动,要么可以将厨房延伸至阳台进行扩大。本案则是采用的前一种方法。
二楼的主卧和次卧都配有阳台,将阳台连通进卧室则成为常用的改造方法。尤其是主卧,因为是一个长条形,中间的衣帽间采光很弱,打通阳台更有利于改善内部采光。
发挥人形屋顶房间的趣味性。三层的不规则空间可能会让大人头痛它的利用率,但对小孩来说充满乐趣,所以对有小孩的家庭来说,这里是最佳的儿童房。需要解决的问题,则是屋顶与地面相接部分的层高太低,以及墙面有较多凹陷和凸起。本案设计师的办法,是通过增厚低层高部分的墙体,实现增加层高,同时用通天柜让凹凸不平的墙面变得规整。

原创文章,作者:VFDJSI,如若转载,请注明出处:https://www.beidanyezhu.com/a/96154.html
微信扫一扫