北京的南三环马家堡,
一对北漂母女蜗居花瓶形状的家,
将在设计师的妙手中改造成现代化智居。
一起来看看~

改造前
三角形进门厅、凹字形阳台、梯形客厅和厨房,各种几何图形的奇葩房子,窘态百出。

母女俩“花瓶形状的家”,
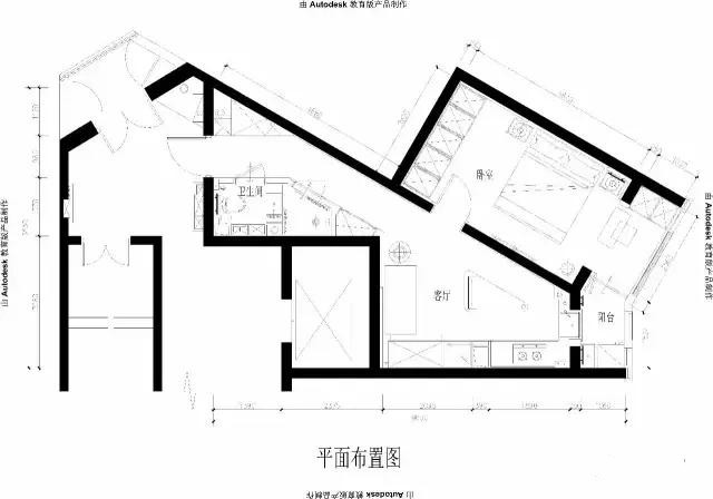
总面积47㎡,
是由13㎡三角形的进门厅、
14㎡梯形的客厅厨房、
5㎡凹字形的阳台和15㎡长方形的卧室组成,
一面斜墙将整个房间一分为二,
使房间产生5个钝角和3个锐角。

而户型之所以这么奇怪,
是因为房子位于整栋单元楼中间的犄角位置,
所以买这样的房子会比周围的房子便宜很多,
这也是业主坚持买下它的原因。
但当这对母女搬进房子之后,
才真正体验到了这个奇葩户型带来的种种不便。
装修改造前
① 客厅 × 无法同时放下沙发和电视
梯形客厅里放不下沙发和电视,电视和沙发东西方向放置的时候,会挡住厨房、卧室、入户三个门口的进出。而当南北放的时候,电视和沙发之间只有1.5米的距离,看电视离的太近。

② 厨房 × 油烟问题亟待解决 没有储物空间
小卜家的厨房在整个房子的最中间的位置,被客厅、阳台、卧室包围,加上阳台靠近厨房的窗户无法打开,使油烟无法迅速排出。
厨房面积不小,但实际可用面积却不大,厨房杂乱,没有切菜位置。

③ 卧室 × 母女两没有各自的私密空间 储物空间过少
不是正南正北朝向的房间,空间面积小,应用不合理,导致母女两没有各自的私密空间。

空间收纳不足,在卧室里随处可见衣物的丢置,家中也摆满了母女两的鞋子。

④ 卫生间 × 无法使用,老旧
老旧的卫生间,马桶早已坏掉,平日里母女二人只能去楼下的公共卫生间。而家中的卫生间位于一进门的右手边,占据了三角门厅的直角部分。

⑤ 进门厅 × 门厅与电梯间一墙之隔,声音嘈杂
设计师在小卜家住了一晚,但当天夜里却被电梯的开合声音所吵醒。原来小卜家的门厅与电梯间只有一墙之隔,所有电梯的开合声音,家中均能听到。且一进便是视线压抑的三角形门厅。

在硕大的北京城里,让北漂母女小卜一家有一块儿小而温馨的空间,设计师脑洞大开、绞尽脑汁。
装修改造后:
在设计师别具匠心的改造之下,原先奇葩户型的老房子,变成了一厨一卫的时尚前卫智居。
改造前平面图:

改造后平面图:

改造后
① 客厅 × 时尚前卫,宽敞明亮

原先狭窄拥挤的客厅瞬间宽敞明亮。

② 厨房 × 增大可利用空间,造作自如,智能化
厨房增加了做饭时的活动空间,操作更加自如。同时安装了电动的升降窗帘,整个房间更加智能化。


③ 卫生间 × 面积扩大一倍,实现干湿分离
还记得改造前简陋老旧的卫生间吗?在设计师的魔法下,改造后的卫生间面积比之前扩大了一倍。并且实现了干湿分离,淋浴间与洗手间可以同时使用。

还能看得出这是之前的那个卫生间吗?
④ 卧室 × 温馨舒适,巨大衣柜
设计师通过合理的规划,将之前凌乱繁杂的卧室变得温馨舒适。并且在房间中安置了300公分长的巨大衣柜,极大改善了母女两用吊绳挂衣服的窘境。

⑤ 进门厅 × 宽敞明亮动感时尚,隔音效果好
设计师拆除了位于小卜家进门厅和电梯间隔墙位置的隔音保温层,用只有0.8公分同样具有保温隔热性能的一种新型材料陶瓷大板代替。使小卜家三角形门厅增加了0.3平方米的空间,且更加隔音保温。


设计师的妙手改造,使原先的怪房子巧变现代化时尚智能宜居。而其中更有哪些暖心设计的部分,让我们一起来看看~
一、隐藏的升降电视:
原先母女两只能在屋子里侧躺着看电视,为了满足客厅看电视的功能,设计师专门安置了一个可以升降的电视。

二、巧妙改造梯形客厅
改造前客厅没法摆下电视,门背后的区域也无法利用,空间利用率极低。改造后将向内延伸挤压的一侧折叠成三角形。


三、创意霓虹灯
卧室中墙上的那副画寓意着“家和妈妈”。在小卜的家中,有了属于自己的专属标志。

四、可以写字的镜子

五、随处可见的储物空间
卧室中的大衣柜、客厅的收纳等等,家里处处都是储物空间。

虽然房型奇葩,不过在设计师的巧手之下,让母女俩能更加温馨幸福的生活。也祝愿正在打拼的你,拥有属于自己的小窝。
蜗居也能变豪宅 ↓↓↓ 点下方“了解更多”,立领设计师300名业主免费设计报价↓↓↓
↓↓↓
原创文章,作者:BQQLXV,如若转载,请注明出处:https://www.beidanyezhu.com/a/97361.html
微信扫一扫