
小宅设计
Anastasiia Zagrai新作,面积40㎡的小宅,经过合理的空间规划及考究的装饰陈设一衬托后,最终呈现出来的效果非常的精致高级,让人眼前一亮。


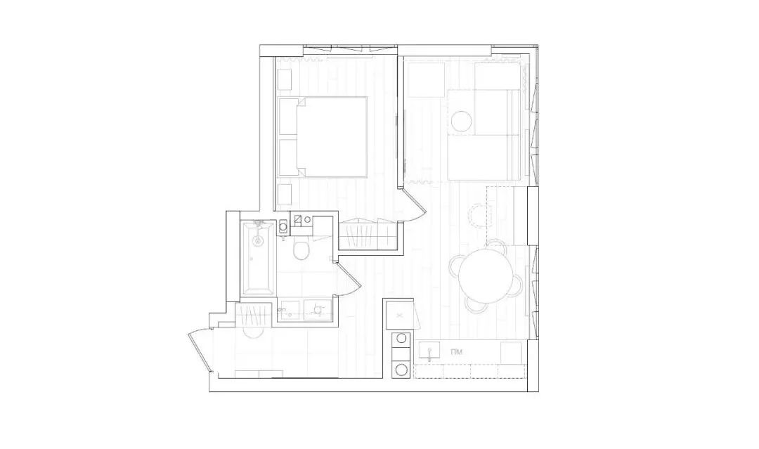
平面布局
▽

设计师用自己的理念和非标准的解决方案,在大都市的一个小公寓里创造一个舒适的项目,并强调了这房子的主人的独特个性。















设计师
Anastasiia Zagrai

其他新作
NK36

36㎡的小宅,由Anastasiia Zagrai设计,整个空间以米色和灰色为主,合理舒适的房间布局,呈现出简约、休闲的都市格调。










原创文章,作者:IIKQBR,如若转载,请注明出处:https://www.beidanyezhu.com/a/97689.html
微信扫一扫