这套位于昆明西山区290㎡的底跃是屋主第二居所,只因自己和父母都比较喜欢云南的天气和自然环境,每年冬天都在来到这边旅游小住就买下了它。
房子距离滇池不远,开车大概10分钟就能抵达,然后漫步湖边,放松身心。
装修的话,屋主选用了“侘寂风”,并且光费用就花了113万,当然效果出来也是不俗的,不仅温柔舒适、素净高雅,而且还美到了登上家居杂志。
总之,这是我见过最有品位的家,全屋温馨又高级,不信一起来看看吧。
平面图

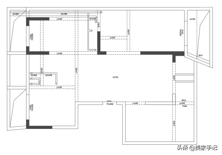
一楼原始结构图

一楼平面布置图
一楼为三室两厅的户型,后来根据需求改动如下:
1、考虑到父母上了年纪腿脚多有不便,便把采光更好的一楼让给父母住;2、父母房附带的卫生间改为三分离的结构来提高使用效率;3、将厨房左侧的次卧改为餐厅,并进行一体化的设计,这样获得更加宽广的烹饪空间,同时便于两者之间的联系和互动。至于卧室,只保留一间卧室作为客房就可以了。

负一楼原始结构图

负一楼平面布置图
地下室的整体采光虽然不如一楼,但毕竟附带了三个天井,所以主卧、主卫还有乐器房这三个空间的光线还是不错的,至于剩下的一间暗室作为影音室正好。需要补充的是,主卫是次卧改过来的,因为空间比较大,就布局为四分离的结构,并且有主卧和楼梯间两个入口。
入户


没有独立玄关,进门就是客厅和通往地下室的楼梯间。另外,因为进门右侧是电视墙,屋主便在进门的左手边,设置了一组上不封顶、下不接地的悬浮式鞋柜,好处在于,除了满足基础的收纳需求,还能让空间看起来更加地轻盈灵活,以及便于打理卫生。鞋柜侧面的话,靠近入户门的地方预留了30%的开放式收纳区,这样可以便于进出门随手物品的存放和拿取。
(ps:鞋柜之所以不封顶,主要原因在于吊顶同样为四周留槽,然后嵌入灯带的悬浮式结构,如果封顶就会破坏空间的整体性。)
客厅

客厅并入阳台后,可以引光入室让空间变得更加敞亮。软装方面,这里以弧形结构的羊羔绒沙发为主,配上圆形地毯,以及结构轻巧的茶几和藤编靠背的座椅等等,再在微水泥质感的背景墙衬托下,整体就有了一种慵懒闲适的温柔氛围,置身其中,令人极度放松!尤其下午时分,阳光透过百叶窗帘洒落一地的光斑,此时拿本书坐在阳台边安静地阅读,无不透着岁月静好的模样。

右侧电视墙同样采用了上不封顶、下不接地的造型,然后中间内凹嵌入电视机,配上地台式电视柜,这样富有层次感的同时,整体性也比较强。
其它是不设主灯的悬浮式平顶,结合温润自然的木地板,看着干净利索又极简高级。
另外沙发附近摆放的花草绿植也不错,和室外绿意盎然的窗景相连,既能净化空气,也能为室内注入无限的生机与活力,这样的家显得朝气蓬勃,更有生命力。


阳台右端设置了置物隔板+地台。
其它是改为弧形收口的墙体,这样过渡更加地柔和自然,事实上,这样的设计还有很多,比如阳台左侧的门洞垭口,以及电视墙右侧的收边等等,都是如此。

梳理一下,这是无主灯设计的照明效果,无论是局部照明还是全景照明,无论是烘托空间氛围还是烘托空间情绪,都没有问题。
餐厨

餐厅是打通了厨房左侧的次卧而得来的。至于装修,除了摆放爵士白纹理的岩板餐桌,配上藤编餐椅,还在窗户边定制了一体成型的不锈钢种植花槽,再植入虎皮兰,这样显得更有生机与活力,同时与室外的绿化相连,进而打造出一个具有花园般氛围的餐厅,当真满满的仪式感。


对面是兼具西厨作用的餐边柜,之所以这么说是因为它除了满足基础的收纳需求,还预留了操作台面,这样加上提前预留的插座还有左侧高柜嵌入的蒸烤箱等等,这样像茶饮和轻食什么的在餐厅就能完成,不用再总是往厨房跑了。

餐厅与厨房相接驳的地方设置了带有水槽的岛台,这样显得通透敞亮的同时,可以便于两个功能区之间共用。另一面是中厨烹饪区,总之整个大空间构成了西厨+餐厅+岛台+中厨的模式,而一体化的设计可以便于这几个功能区之间的联系和互动。
老人房


老人房在床头墙刷了干净清爽的乳胶漆,只是这样难免显得有些单调,就点缀了一字形的壁灯用于辅助照明和烘托氛围。其它是兼具床头靠背的护墙板,加上简约大方的寝具还有松软舒适的床品等等,整体还是显得比较温馨,且富有层次感的。

飘窗选用可以营造丰富光影效果的卷帘,再在台面上摆放茶几,用来盘坐或跪坐品茗,那真叫一个素净高雅,同时木质的飘窗实用性也不差,因为底部设置成了储物空间。

卧室床的左侧是这么一个“7字形”的衣帽间,主要避免“床对厕”的尴尬。
需要补充的是,衣柜底部不仅做了挑空处理来达到“隔而不断”的效果,还预留了部分空间设置挂衣杆来作为次净衣区。其它就是对面的梳妆台了,特意嵌入灯带,配上格栅样式的柜门显得挺有韵味。


衣帽间的左侧是父母房附带的卫生间,布局上,这里以洗漱台为中心,左侧是淋浴房,右侧是如厕区,总之构成了一个三分离的结构,这样各个功能区就可以独立使用、互不耽误。
装修上,墙面统一色调采用水磨石样式的灰色瓷砖,配上干净利索的大平顶,还有结构轻巧且便于清洁的壁挂式马桶等等,效果整洁时尚,颜值很高。
客房

一楼客房的装修很简单,在只刷乳胶漆的床头墙上点缀相应的装饰画就可以了,再配上简约高颜值的软装家具,同样可以达到简约却不简单的温柔舒适效果。
客卫

为提高使用效率,客卫将洗漱台挪出卫浴门外布局为双分离的结构,这样洗脸刷和上厕所可以做到两不耽误。
负一楼

沿着白色的钢构楼梯拾级而下,就到了作为地下室的负一楼。装修上,楼梯之所以设为螺旋式结构,就是因为比较省空间。
会客室


负一楼的公共空间屋主设置成了会客厅,所以居中摆放了胡桃木质感的桌台,再配上四把软包单椅就可以了。当然,这里不仅用于会客交流,作为书房以及茶食区都是可以的,所以我们可以看到对面的柜体除了满足基础的收纳需求,还在中间的黑色镂空区预留了插座,并整合了水吧台的功能。左侧则是通往杂物间的隐形门。
主卧


考虑到主卧位于负一楼,采光什么的先天不足,就刷了明度更高的艺术漆,右侧的话是采光天井,光线洒落进来再经由漫反射,看着就敞亮多了。所以我们可以看到除了大平顶,硬装几乎可以“四白落地”来形容,就是为了更好地达到这种效果。至于软装方面,摆放松软舒适的浅色系床品和寝具就可以了。
衣帽间



床尾是通往主卫的走廊,为提高利用率,两侧设置了柜体作为步入式衣帽间。设计上也有所侧重,左侧为开放式结构,收纳一些当季常用的衣物便于拿取,右侧则是封闭式柜门,主要用来防尘和存放换季衣物。
主卫


主卫的空间比较大,就布局为四分离的结构,即在洗漱区、如厕区和淋浴区三分离的基础之上,再增设一个独立的浴缸区用来泡澡。


需要补充的是,浴缸区与采光天井相邻,这种与自然为伴的感觉让泡澡也变成了一种不可多得的享受。
乐器房


最后是对面的多功能房,因为屋主喜欢乐器,就暂定为乐器房。
当然,作为健身房也是可以的,毕竟空间足够大。目前的话,屋主@Fayer从北京的家,搬来了不少藏品,比如字画什么的,从而让空旷的空间显得更有生活气息。
需要补充的是,由于影音室设计师并没有提供过多的细节,所以这里也就无法分享了。
至此本文就讲到了这里,感谢大家阅读。(注:本案文字原创,图片来源于@吾隅设计,如有侵权,请联系删除)
想要了解更多精彩内容,快来关注@美家手记
原创文章,作者:LWNDQQ,如若转载,请注明出处:https://www.beidanyezhu.com/a/98762.html
微信扫一扫