
业主笑笑是做建筑相关工作的,这是她的第一套房子、也是她的婚房;因此她格外重视设计方面的追求,一直希望能找个靠谱的设计师来把控新家的装修设计。
项目资料:
面积:86平米
户型:2房1厅1卫1阳
风格:简约北欧
常居人口:小夫妻,偶尔家人来住下
设计师:林富强/simon
所在地:江苏省南京市栖霞区
平面方案
在初步方案的基础下,经过进一步的沟通,最终确定了如下平面方案:

客厅
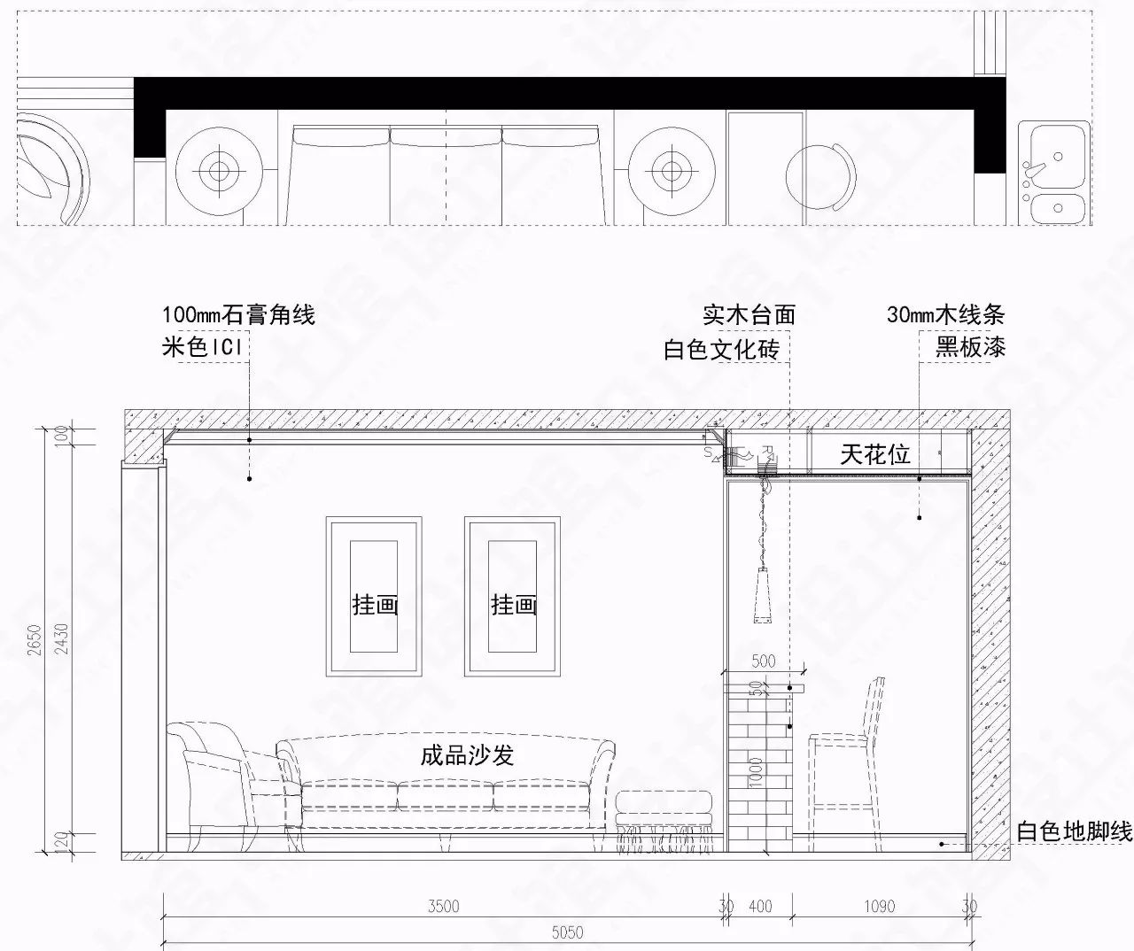
客厅电视墙是两侧木饰面+中间白色文化砖的搭配,木质的电视柜搭配一套现代舒适的布艺沙发,结合灰色的窗帘,整体给人以简单自然的氛围感;

电视墙对应施工图:

沙发墙整体以干净整洁为主,一旁的角落还装了个小吧台一旁则是以黑板漆刷出一面黑板墙,方便在上面记录一下小故事或做备忘;同时吧台后方是酒柜,平时闲暇了可以在这里喝喝小酒,也可以把这个位置作为办公空间;

沙发墙对应施工图:

餐厅
餐厅的面积较小,因此设计师在墙面上设置了两块隔板架方便收纳,搭配上简约实用的小餐桌,在简单的硬装基调下,加入实木的地板与简约的家居搭配,整体给人以轻松的氛围;而入户旁的鞋柜后,也设置了一个换鞋凳跟全身镜,方便又实用;

餐厅背景墙施工图:

厨房
小面积的厨房,设计师把部分电器嵌入出橱柜里,同时把冰箱组合布置在这个大收纳柜上,整体布局简洁实用;

厨房施工图:

主卧
卧室床头背景墙贴上米白色的壁纸,同时挂上黑白装饰画,整体简单的空间,通过木质的家居等自然舒适的元素搭配,衬托出轻松惬意的空间氛围;

卧室施工图:

次卧
次卧床头后方是书桌打通过来的台面,平时睡前阅读或玩手机后可以随手把书籍手机往后搁;整个台面连贯到飘窗位置,坐在这里办公的时候就能眺望窗外世界,很是惬意舒适;

次卧施工图:

卫生间
卫生间干湿分离的格局,洗手盆区域的地面贴着六边砖,而洗手盆上方的镜柜,也是简洁实用,两侧都是收纳格,而柜门则是可以推拉的,可以把镜子遮挡住;

卫生间施工图:

设计完成,开始落实!
设计圆满完成,前文展示的仅是部分设计图纸,整套方案的设计图包括施工图、细节大样图、效果图等累计设计图30多张;

拿到这套方案,笑笑就踏上了找施工队报价的旅程;在拿到装修公司的报价后,笑笑第一时间发到我们的服务群里,让我们来把关;

因为有了详细的设计方案,设计师一眼就看出了漏项与猫腻的地方;看到我们这样客观的分析,不知道这家装修公司会不会又后悔又生气了呢…

在寻找装修公司的同时,也开始跑建材市场开始选择主材,并把自己挑的主材拍照咨询设计师选择。

11月份,该设计方案就已完成,
目前已经按照方案开工装修;
共同期待作品的最终实景图!
原创文章,作者:TVMOVV,如若转载,请注明出处:https://www.beidanyezhu.com/a/99161.html
微信扫一扫