
地址丨Address:淄博绿城紫薇园
面积丨Area:141㎡
户型丨Door model:三室两厅两卫
风格丨style:现代风格
施工丨Road Work:蓝钻工程
设计丨Design:行知空间设计
设计师丨The designer:陈行知
预算丨The budget:14万
服务模式丨Service mode:全案设计
该案例是一套比较简单的现代简约风格,业主是一对90后的小夫妻,刚结婚不久,主要对装修材料以及施工工艺质量方面要求比较细致,通过与设计师多次的接触,设计师深入了解到业主的需求,因为一套房子入住下来就要十年甚至二十年,所以主要从储物收纳以及色彩搭配等方面需要进行合理的设计,下面跟随设计师的步伐来看看每个空间的不同效果吧!
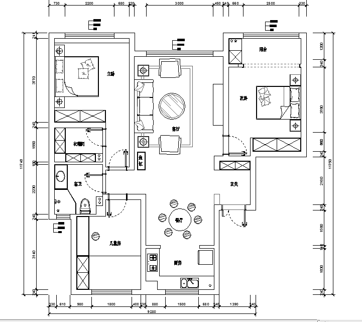
户型结构
确定好户型结构后,设计师就开始对确定好的平面结构进行设计,前期平面方案是比较关键的,为了后期居住起来舒适,我们前期要和设计师沟通哪些非承重墙体需要合理的拆改,为了增大储物空间,一些犄角旮旯的小空间,考虑如何利用才能起到最大化,提高空间收纳利用率。
入户玄关柜
玄关
入户的左手边做了一个到顶的玄关鞋柜,高度在2400mm,宽度在1200mm,深度600mm,中间留空位置方便钥匙 包包的方便放置,底部留空120mm方便常用的拖鞋放置。
选用全屋定制的模式选择制作的玄关柜,乳白色的吸塑门板烘托了整个家的氛围,看上去整洁大气,不显单调。
客厅
电视影视墙是选用吊柜增大储物空间,营造出一个独立的小天地。
选用布艺沙发,质感舒适,相比其他材质沙发价格占优势,墙面涂刷灰色色漆,相比大白墙不显单调,用三幅挂画进行做装饰,再不失奢华的同时,还比较美观出效果。
餐厅
考虑到餐厅空间与厨房空间相比比较大,把冰箱放置到餐厅,用简单的餐边矮柜+吊柜结合起来与冰箱一结合,增加储物提高收纳的同时还不显的单调。
餐桌选用木质四人桌,聚集在一起就餐,其乐融融。
因为热爱、所以喜欢
行知空间设计,更多案例欢迎关注
淄博设计师陈行知、一个才华高于颜值的设计师
原创文章,作者:JMQIBK,如若转载,请注明出处:https://www.beidanyezhu.com/a/99180.html
微信扫一扫