这次给大家分享装修主题:79平现代简约风格,三代同堂生活很幸福,软装全部网购便宜又好看!
对于我们很多年轻人来说,网购已经成为了不可缺少的一部分,网购价格相对便宜,而且款式样式都比较多种可以选择,足不出户,轻松挑选合适自己的东西。尤其是对于现在新房装修来说,室内很多东西都可以网购,轻松搭配出想要的效果。
很开心给大家带来屋主他家这套79平新房,装修现代简约风格,虽然简单,但是花了很多心思,考虑周到,而且整体搭配出来的效果真心不错。父母一起生活,并且还有小孩,拥有一套属于自己家的新房子,三代同堂生活在一起生活真的很幸福,太让人羡慕了!值得一提的是,平时比较喜欢网购,家里软装部份都是来源网购,价格便宜而且又好看,太让人羡慕了!下面,给大家分享一下,欢迎大家点评!
户型图

这是原始户型图,属于比较典型的三居室小户型的房子,也能满足三代同堂了。户型方方正正,动静分区合理,客餐厅是在一个空间,显得空间宽敞很多。家里这样的户型,还是蛮不错的呢!

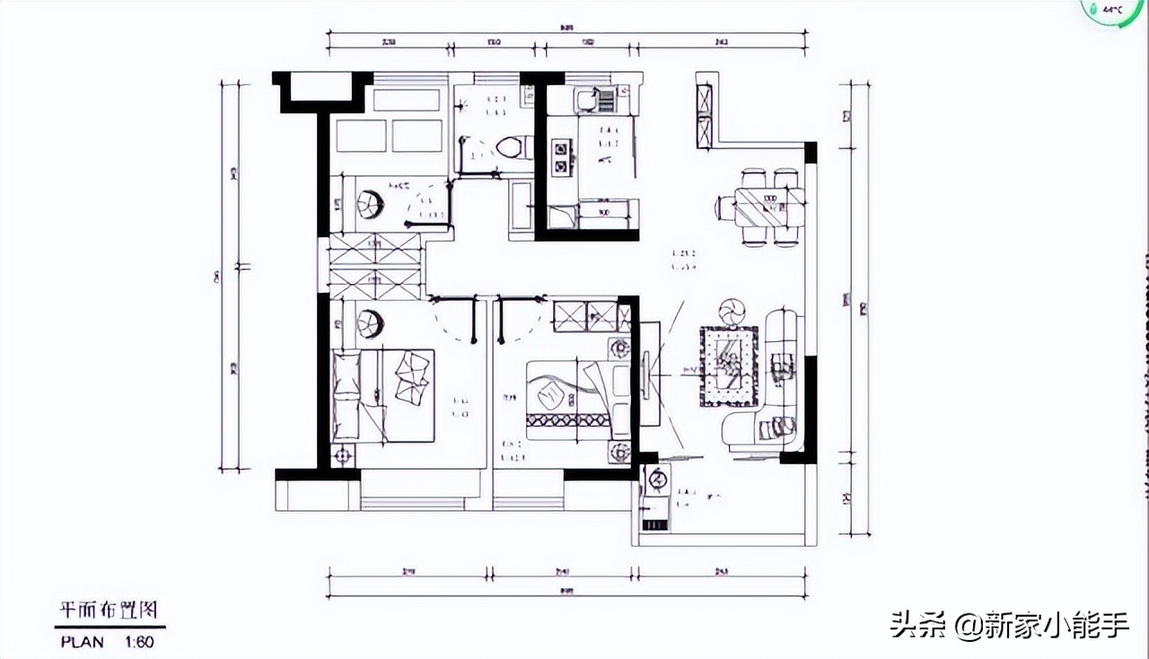
这是家具平面布置图,最大的变动就是卫生间的浴室柜独立分开出来,其他都是按原户型去布局与搭配了。虽然属于比较紧凑型的户型,但是也能满足三餐四季了,还是蛮不错的呢。
入户玄关

从入户门进来拥有独立的小玄关,站在这个角度可以看到,右边设计了上下两层的鞋柜,左侧门洞进去就是厨房了。对于这样的户型布局,真的比较典型了,家里如果也是这样的户型,可以参考一下!猪肝红的大门重新换了防盗门,质量更好,与整个空间更好搭配起来,看着都很喜欢!

站在这个角度,可以更清晰把入户鞋柜看完整了。玄关鞋柜分为上下两层,中间留空位置,可以放一些常用的小东西或者其他的装饰品摆件,特别棒。最底下留空位置,一些常穿的鞋子可以方便收纳起来,不需要经常打开柜门那么麻烦。全白色的鞋柜,特别干净,漂亮,看到就很喜欢!

鞋柜布置了很多的摆件,其实最满意就是招财猫钥匙收纳摆件了,蓝色特别好看,而且很有质感。网购的话,价格便宜很多,也比较漂亮,视觉上显得很抢眼。大嘴,可以方便收纳家里钥匙或者车钥匙,归类收纳起来,细节可以看出生活品质。招财猫钥匙收纳摆件,装饰性很强,颜色也比较漂亮,不仅仅可以放在鞋柜,还可以放在客厅或者其他空间,都是很实用的呢!
餐厅

从入户玄关走进来,就来到了餐厅区域了,布置了一张方形餐桌,旁边布置了餐边柜,可以适当增加蛮不错的储物空间,特别实用。小小方形餐桌,一家人坐在一起用餐,幸福感满满。墙面刷的是太空漫步,比白色的效果更耐看,不会让人觉得压抑或者不舒服的感觉!

餐桌是黑白搭配,经典又好看,特别棒。如果有需要的话,餐桌上可以布置隔热垫,会更合适,有了隔热垫可以适当辩护餐桌,觉得很有必要呀!

餐厅有个小细节,旁边布置了小小的餐边柜,可以适当增加一些储物空间,很实用。旁边的位置还布置了创意造型的换鞋凳,可以非常方便坐着换穿鞋子,颜值还很高呢!墙上没有悬挂装饰画,可以起到“留白”的作用。
客厅

客厅与阳台没有选择打通,不影响室内采光与通风。布置了可以组合成“L”字型的灰色沙发,可以更为灵活使用。不管是坐着还是躺着,都很舒服,与整个空间完美搭配。一般来说,年轻人都比较喜欢这样的沙发,科技布料,即使脏了,都可以用水直接擦洗干净。其实装修的有点偏北欧风格,但是整体看的话,比较符合现代简约风格!


给大家看看沙发小细节,搭配了黄色的抱枕,包括格子的抱枕,视觉上特别棒,不会觉得单调。灰色调,给人一种非常宁静,舒适的感觉。坐在沙发与家人一起看看电视,或者一起聊聊天,都觉得很幸福!

沙发墙上的装饰画,可以起到很好的装饰效果,特别美!

中间布置的茶几两个组合式,不需要的时候可以拿到其他空间,都没有任何影响。简单搭配,效果还是蛮不错的呢。

客厅电视背景墙直接贴的是石膏线条,简单又不会显得单调。对于上有老下有小的家庭来说,做了电视墙,一家人会更喜欢。顶面安装了吊顶,打开灯带的效果,更具有空间感,晚上灯光照明亮度足够,不会觉得刺眼。


严格意义说,客厅和餐厅是在一个空间,通过布置家具划分两个空间,显得空间更宽敞,互不影响。地面选择铺贴灰色瓷砖,耐脏而且又轻松搭配出想要的效果,真心不错。
过道

过道顶面安装了筒灯,简简单单。很喜欢墙上的装饰画,其实挑选的装饰画与客厅的挂画基本一致,都是一样的风格,装饰性真的很强哈!
主卧


考虑到实用性,衣柜是做了嵌入式的额,刚好把空间利用起来。设计嵌入式的衣柜,更合理把空间利用起来,特别实用,而且可以节省一些空间,很有设计感。卧室门是白色的,很合适!


空间不大,加上个双人大床,基本没有什么多余的空间了。不过,如果把空调的位置换其他位置,会更合理。睡在床上,真的是一种享受呀!


主卧有一个飘窗,没办法打掉保留着没有任何影,放着飘窗坐垫,坐着会更舒服,效果更显得有档次!

顶面安装了吸顶灯,款式还是蛮不错的呢。家里如果也喜欢这种款式的吸顶灯,可以参考一下。也是网购的,价格非常便宜呢,而且质量也靠谱!
父母房


父母生活在一起,给家里父母准备一间比较温馨,比较舒适的卧室。床比较简单,加上一个定制的衣柜,基本没有什么空间了。对于休息的空间来说,也足够使用了。
小孩房


小孩房空间很小,为了将小小空间最大利用化,设计了非常实用的榻榻米。不仅仅方便休息,而且还有足够的位置方便家里小孩写作业或者看书。同时,考虑到是男孩子,选择了蓝色,非常合适,很漂亮!#全包圆一站式装修#
卫生间


做了非常实用的干湿分离,浴室柜是独立分开出来的,使用很方便。安装了柜式镜子,可以适当增加一些储物空间,牙膏牙刷都可以方便收纳起来,很合适!

墙上空间利用起来,安装了置物架,毛巾都可以方便收纳起来,很合适。
厨房


厨房空间比较小,根据结构定制了橱柜,布局还算比较合理,水槽安装在靠窗位置,特别合适。

厨房预留了位置可以放冰箱,冰箱不是很大,但是也足够使用了哈。在这样的小小厨房做饭菜,都很有心情,也能满足三餐四季!
分享到这里就结束了,整个空间属于现代简约风格,但是也很有北欧风格的味道,真心不错。特别喜欢软装部分都是网购的,质量不错,而且搭配出蛮不错的效果,很羡慕!
原创文章,作者:NNYMPV,如若转载,请注明出处:https://www.beidanyezhu.com/a/99502.html
微信扫一扫