在正常思维中,不管家里有几口人居住,一定少不了两个房间,一个是主卧,一个是儿童房。如果有需要的话,还得准备一个书房,或者客房,以满足不同的居住需求。书房和客房就不说了,并不一定是刚需,那么儿童房呢?一定要在装修中预留吗?
本案屋主的装修思路,就很值得我们来学习,哪怕写入教科书都不为过。在目前没有孩子的情况下,果断地弱化了儿童房的设计,并以此优化了其它空间。而从完工后的效果来看,也真的非常实用。
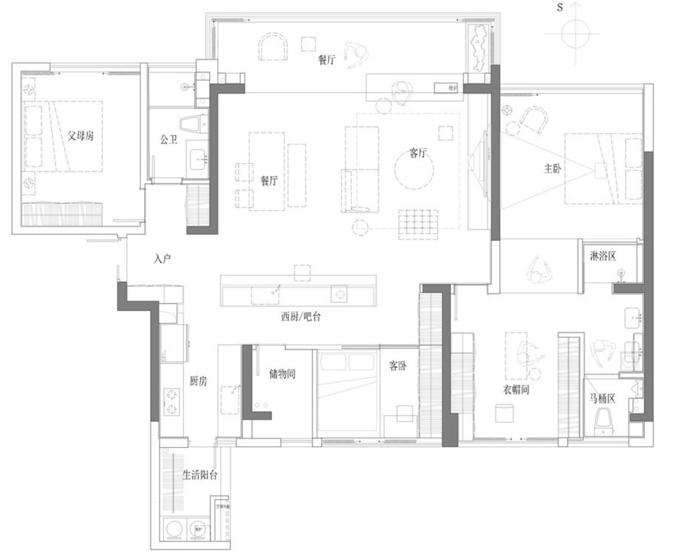
平面结构图

新房坐标成都,建面152㎡,四室两厅三卫的格局,屋主是一对90后小夫妻,喜欢旅行、音乐、跳舞,对生活充满了热情。虽说户型面积很大,但由于是精装房,现有的空间无法满足他们对高品质生活的追求,所以就进行了整体改造。
关于房间预留这块,屋主则希望保留一间老人房,并舍弃儿童房。因为就算用到儿童房,也至少是6、7年之后了,所以与其闲置在那里浪费,还不如取消掉。因此,空间结构也做了比较大的改动。
平面方案图

结合屋主的需求,设计师做出如下空间布局。
1、主卧采用套间设计,集合起居室、衣帽间、卫生间、睡眠区等多种功能性。
2、厨房采用开放式设计,与客餐厅实现贯通。同时,将旁边的卫生间改成储物间。
3、南边次卧作为老人房使用,方便他们偶尔过来小住。
4、缩小北面小房间的面积,为空间延伸出一块西厨区,提高生活品质。
入户

考虑到客餐厅为大横厅结构,入户并没有设计玄关隔断,以最大程度保留下通透、宽敞的视觉感。鞋柜则以悬空的方式,设计在了入户门右边,并与橱柜形成了连接。
这样既在视觉上,起到了动线指引的作用,也显得十分轻盈。而当厨房打开之后,也一改之前的逼仄,开阔了许多。
西厨区

超大的西厨区设计,算是全屋的一个亮点。长达4米的吧台,无论是聊天、简餐、料理、还是接待好友,都十分惬意。同时,还极大地缓解了厨房的空间压力。而吧台的背后,则分别是客房和储物间。当然,能这样设计,也得益于屋主对空间清晰的定位。


当客房墙体内退之后,则在吧台侧面的内陷空间处,设计了一组储物柜。柜体饰面与顶面保持统一,并给柜门做无拉手处理,既在视觉上做到了统一,也减少了空间的复杂性。当然,也带来了大量的储物能力。
餐厅

餐厅布局十分简单,一张质朴的长桌,一幅落地抽象画,简约又很有温度。同时,手工长凳与藤编餐椅的组合,也在视觉上带来了一些不对称的美感。

阳台

阳台整体做了抬高处理,摆上一张休闲沙发,以及一组边几,不管是用来阅读,还是喝茶,都十分惬意美好。
客厅

电视墙设计十分有创意,整体以大面积留白为主,再搭配上灰色地台,既有了立体的层次感,也彰显了细腻的质感。而旁边直接给木地板上墙,也让入户后的视觉有了一种无限延伸的感受。


主卧室

主卧同样以灰白调为主,再搭配上素净的床品,既静谧又舒适。同时,床头一圈的暗藏灯光设计,也烘托出了温暖的氛围感。

由于主卧采用了套间设计,所以在睡眠区不用再设计衣柜的情况下,整个空间也宽敞了许多。侧面与淋浴间相邻的隔墙,底部用玻璃做隔断设计,除了为生活带来了一些趣味,也在隐秘与通透间,有了一种捉摸不定。

衣帽间

衣帽间融合了储物、起居、梳妆、临时办公等多种功能性。同时,围合式的布局,也彰显出了极简的格调。

卫生间

卫生间做了三分离设计,这样可以让空间使用率最高,并提高空间的整洁度。尤其是双台盆设计,更是让生活使用做到了互不干扰。


客房

缩小后的客房,布局十分简单,一组衣柜一张榻榻米。这样就算后期给孩子居住,也一点问题都没有。当然,等到孩子大了,老人房的需求就会降低,所以孩子也可以搬进老人房居住。
整个案例看下来,其实我个人也是比较赞成这种装修思路了。不仅仅是儿童房,像家里用不到的房间,都可以进行弱化处理,从而提升居住的品质感。对此,你们怎么看呢?
图源:璞采空间
原创文章,作者:JZNOOW,如若转载,请注明出处:https://www.beidanyezhu.com/a/98459.html
微信扫一扫