繁华的都市之中,等到霓虹闪烁的时候,大概唯有家才是内心渴望的地方。但是要在一线城市买房,除了打拼之外,还需要面临“囊空如洗”的勇气。
在北京漂泊了6年的@Lilian小姐姐,是时尚杂志的编辑,也是北漂的第七年,她才拥有了自己的第一套房。仅有55㎡的家,却布置了两室一厅,阳台加入了庭院BBQ,在面积有限的公寓里,过出了无限的幸福感。

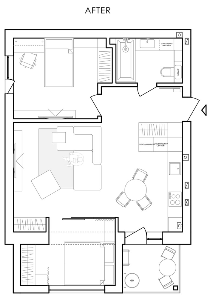
▼设计图纸
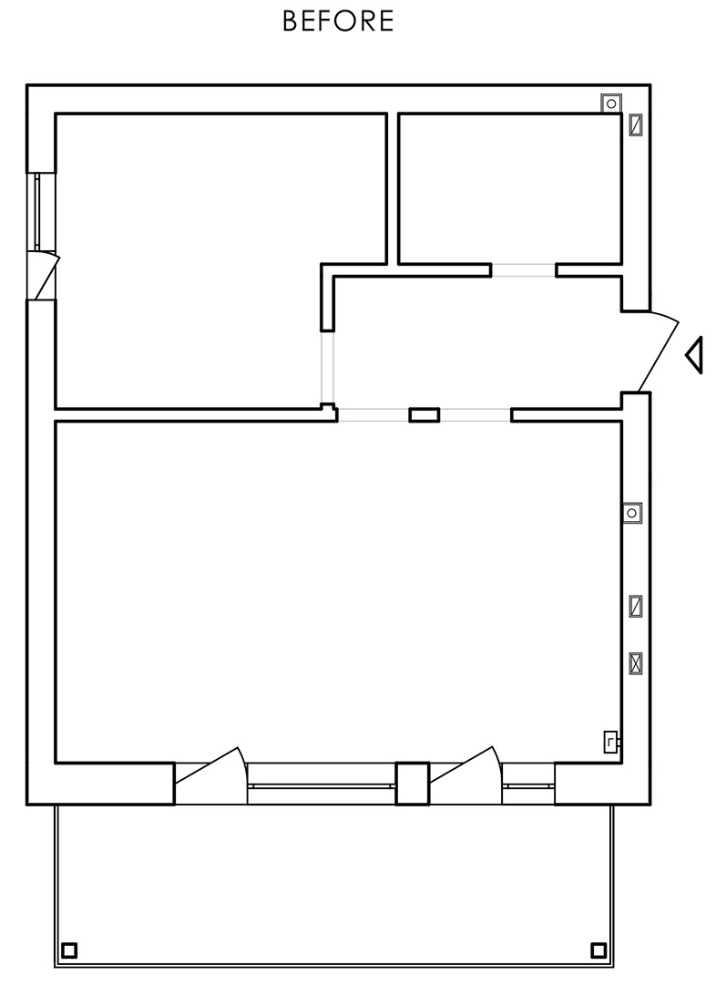
原有的户型是典型的一居室空间,如何在面积有限的空间里,拓展出“两室一厅”格局,成为了设计师需要考量的问题,因此在布局上,设计师花费了心思,力图完美重现@Lilian小姐姐理想中的家。

原始户型图

平面布局设计图
在平面布局上,进门右侧便是卫浴空间,左侧则加入了一组玄关柜,原有的客厅空间,被布置了开放式的餐厨+客厅区域,而2/3的阳台被改造成一间卧室,剩余的阳台则被布置成了庭院休闲区。

▼入户玄关
在玄关空间的设计上,设计师以一组集换鞋+储物为一体的玄关柜,作为空间遮挡,让入户感有了“曲径通幽”的意蕴,悬空式的玄关柜,底部多了一些收纳鞋物的空间。

▼而双门玄关柜,满足了@Lilian小姐的衣物收纳,门后方还甚至了一个一人高的穿衣镜,方便出门整理仪容,棕色的玄关空间,显得轻奢又高级,恰恰符合@Lilian小姐的“时尚编辑”气质。

▼原木客厅
相比于玄关的幽雅之感,步入客厅之中,可以感受到一派属于原木风的温润之美,简约的L型沙发,让客餐厅之间有了泾渭分明的界限,还有原木风的电视背景墙,显得雅致。


▼餐厨空间
厨房空间以一组深色的柜体进行了围合式设计,同时墙面上粉刷了一层爱马仕橙的墙面,形成了空间里的视觉焦点,也打破了小户型空间的沉闷感,让小家也能拥有时尚的氛围。


▼餐厅里的小轻奢
餐厅则以一组原木风的餐桌为主,搭配一盏清新的小吊灯,千鸟格的软垫餐椅,赋予了空间一丝时尚气氛,小小的餐厅,与客厅形成了和视觉上的联动。

▼阳台改造而成的次卧
而次卧空间,则是由2/3的阳台空间,拓展而出的空间,与起居室以一道玻璃拖拉门作为隔断,室内采光充盈,显得轻奢又自在,同时床头背景墙被改造成了一组白色吊柜,方便次卧空间的收纳。

▼白色吊柜+拼接木饰面,小小的次卧床头背景墙,显得自然又雅致。

▼而床尾位置,则利用了空间打造了一个小小的衣帽间,铁艺+圆木组合式的小空间,显得井井有条。

▼主卧空间
目前主卧空间是@Lilian小姐一个人居住的空间,因此在设计上更契合她的审美。墙面上以黑色的壁纸,打造了一个如同星河寰宇一般的既视感,再加上一组办公桌和小床,显得轻奢十足。


▼靠墙位置,布置了一整面白色烤漆衣橱+一组原木书架,足够收纳@Lilian小姐生活里的小日常。

▼一个人的小美好
在外漂泊的日子里,总是会试图问自己,什么是美好?或许对于Lilian小姐来说,所谓的美好,是床头的小鸟摆饰,是那盆绿油油的植物,是照射在床头的光,似乎有了家,一切都显得美好。

▼主卧空间之中,还加入了一组电视背景墙,黑色拼接背景板+顶部的线性吊灯,让这个小小的家拥有了一丝工业风的气息。


▼阳台里的小小庭院
而阳台空间,则被改造了一个小小的庭院休闲区,坐在这里晒晒太阳,喝喝下午茶,或者干脆邀请闺蜜和朋友,一起来举办一场小小的BBQ,这种惬意的小生活,大概是北京这座城市里每个人的向往。

▼一个小小的烧烤炉,一组铁艺架子,上面都是属于@Lilian小姐对生活的向往。

▼卫生间里的小轻奢
而卫生间的配色,与厨房的配色进行了呼应,爱马仕橙+黑色的墙面,还有隐藏式的洗衣机设计,让空间显得井然有序,而且为了提升生活幸福感,还加入了一组浴缸,下班回家泡泡澡,别提多幸福了。


▼而为了保持卫生间的利落整体之感,热水器也被设计师藏在了吊柜之中,整个空间的收纳区域,显得简单又有序,特别是每一个收纳柜都加入了灯带,在暖色的灯光下, 显得微醺自然。

在大城市里漂泊,拥有一个家是渴望,拥有一个理想中的家是梦想,或许正是因为对生活抱有期盼,所以这个仅有55㎡的家,也让人心动不已。
幸福从来不因为大小而“打折”,家也不会因为大小而“美好”。如果是您的话,你会选择在小公寓里,度过自己的小生活吗?
原创文章,作者:JWYXIH,如若转载,请注明出处:https://www.beidanyezhu.com/a/99927.html
微信扫一扫